Bénéficiez des services de nos partenaires locaux soigneusement sélectionnés
pour vous accompagner dans votre parcours d'achat immobilier

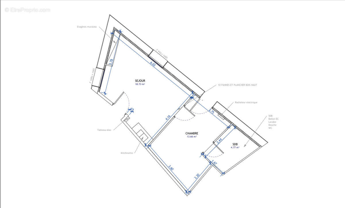
Appartement 37 m² à Montaigu

— Montaigu 85600 —
119 900 €
37 m²
2 pièces

Nos partenaires locaux
Iad France - Marie Cousin vous propose : Investissement locatif sécurisé - T2 rénové avec locataire en place - centre Montaigu

Appartement vendu occupé, destiné à un investissement locatif avec revenus immédiats et fonctionnement déjà en place.

Situé en plein cOEur de Montaigu-Vendée, à proximité immédiate des commerces, des services et de la gare accessible à pied, ce bien bénéficie d'un emplacement reconnu pour sa facilité de location et sa stabilité locative.

D'une surface d'environ 37 m², ce T2 a été entièrement rénové et propose un agencement cohérent, offrant un niveau de confort supérieur aux petites surfaces du secteur :

* pièce de vie avec cuisine équipée
* chambre indépendante
* salle d'eau avec WC

Le bien est actuellement loué 466,45 ¤ hors charges, avec un locataire en place et une échéance connue, permettant une visibilité immédiate sur les revenus.

Ce format, associé à son état général, limite les interventions à court terme et simplifie la gestion locative.

La copropriété, composée de 5 lots, présente un fonctionnement lisible, avec des charges annuelles d'environ 852 ¤, permettant d'anticiper facilement les coûts.

L'ensemble constitue un placement cohérent pour un investisseur recherchant un bien :

* déjà exploité
* sans travaux
* avec un niveau de confort favorable à la pérennité locative

Un produit adapté à une stratégie d'investissement simple, avec un équilibre entre sécurité et rentabilité.


La presente annonce immobiliere vise 1 lot situé dans une copropriété de 5 lots au total et ne faisant l'objet d'aucune procédure en cours citée à l'article L. 721-1 du code de la construction et de l'habitation. Montant moyen mensuel de charges déclaré par le vendeur : 71¤ par mois (soit 852 ¤ annuel). Honoraires d'agence à la charge du vendeur.
Information d'affichage énergétique sur ce bien : classe ENERGIE D indice 223 et classe CLIMAT B indice 8. Les informations sur les risques auxquels ce bien est exposé, y compris l'obligation légale de débroussaillement, sont disponibles sur le site Géorisques : http://www.georisques.gouv.fr.
La présente annonce immobilière a été rédigée sous la responsabilité éditoriale de Mme Marie Cousin mandataire indépendant en immobilier (sans détention de fonds), agent commercial de la SAS I@D France immatriculé au RSAC de LA ROCHE-SUR-YON sous le numéro 881294003, titulaire de la carte de démarchage immobilier pour le compte de la société I@D France SAS.Informations LOI ALUR : Soumis au régime de copropriété. Nombre de lots : 5. Quote part annuelle(moyenne) : 852 euros. Honoraires charge vendeur. (gedeon_6727_32594822)
Voir plus

Référence: 1941521
Bien en copropriété. Nombre de lots : 5. Charges de copropriété : 852 €.
Honoraires à la charge du vendeur.
Barème des honoraires
DPE
A
B
C
D
E
F
G
GES
A
B
C
D
E
F
G
Photo 1 - Appartement à MONTAIGU
Photo 1
Photo 2 - Appartement à MONTAIGU
Photo 2
Photo 3 - Appartement à MONTAIGU
Photo 3
Photo 4 - Appartement à MONTAIGU
Photo 4
Photo 5 - Appartement à MONTAIGU
Photo 5
Photo 6 - Appartement à MONTAIGU
Photo 6
Photo 7 - Appartement à MONTAIGU
Photo 7
Géorisques

Les informations sur les risques auxquels ce bien est exposé sont disponibles sur le site Géorisques : www.georisques.gouv.fr

Ce site est protégé par hCaptcha Politique de confidentialité et Conditions d’utilisation s’appliquent.

En poursuivant votre navigation sans modifier vos paramètres, vous acceptez l'utilisation de cookies susceptibles de réaliser des statistiques de visite. Cliquez ici pour plus d'informations