Bénéficiez des services de nos partenaires locaux soigneusement sélectionnés
pour vous accompagner dans votre parcours d'achat immobilier

Maison 185 m² à Bretignolles-Sur-Mer

— Bretignolles-Sur-Mer 85470 —
450 000 €
185 m² / 326 m²
6 pièces
parkingbalcon/terrassejardin

Nos partenaires locaux
Iad France - Alexandre MERCERON vous propose : * Magnifique Maison Familiale de 185 m² à Brétignolles-sur-Mer *

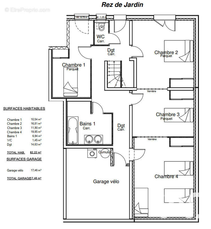
Cette superbe maison familiale de 185 m², rénovée avec soin, vous accueille à Brétignolles-sur-Mer, offrant un cadre de vie exceptionnel à seulement 400m de la plage. Construite en 2023, cette propriété spacieuse sur 2 niveaux bénéficie de 5 chambres, 2 salles d'eau, 2 WC, une cuisine ouverte équipée, un beau salon et une terrasse de 18 m² pour profiter des journées ensoleillées, une buanderie.

* Détails des pièces * :
- Suite parentale en rez-de-chaussée : 17 m² avec la salle d'eau
- Pièce de vie spacieuse : 75.45 m² avec cuisine équipée Porcelenosa
- Vestiaire au rez-de-jardin
- Chambre 1 en rez-de-jardin : 20 m²
- Chambre 2 en rez-de-jardin : 10.54 m²
- Chambre 3 en rez-de-jardin : 16.86 m²
- Chambre 4 en rez-de-jardin : 11.9 m²
- Salle de bain en rez-de-jardin
- 2 WC : 1 par niveau
- Buanderie en rez-de-chaussée : 17.46 m²


* Équipements & Caractéristiques * :
- Terrasse ensoleillée en RDC
- Stationnement pour 4 véhicules
- Exposition nord et ouest
- Connexion fibre optique
- Chauffage individuel
- TV câblée
- Ventilation mécanique

* Proximité * :
À proximité, vous trouverez les villes animées des Sables d'Olonne et St Gilles Croix de Vie à seulement 20 minutes en voiture. Les commodités locales se trouvent à 3 minutes à pied, offrant un accès facile à tout ce dont vous pourriez avoir besoin au quotidien.

Ne manquez pas cette opportunité rare d'acquérir une maison moderne, spacieuse et idéalement située à Brétignolles-sur-Mer. Contactez-nous dès aujourd'hui pour visiter ce bien d'exception.

Honoraires d'agence à la charge du vendeur.
Information d'affichage énergétique sur ce bien : classe ENERGIE D indice 191 et classe CLIMAT B indice 6. Les informations sur les risques auxquels ce bien est exposé, y compris l'obligation légale de débroussaillement, sont disponibles sur le site Géorisques : http://www.georisques.gouv.fr.
La présente annonce immobilière a été rédigée sous la responsabilité éditoriale de M Alexandre MERCERON mandataire indépendant en immobilier (sans détention de fonds), agent commercial de la SAS I@D France immatriculé au RSAC de roche sur yon sous le numéro 408083459, titulaire de la carte de démarchage immobilier pour le compte de la société I@D France SAS.Informations LOI ALUR : Honoraires charge vendeur. (gedeon_6727_32616915)
Voir plus

Référence: 1942152
Honoraires à la charge du vendeur.
Barème des honoraires
DPE
A
B
C
D
E
F
G
GES
A
B
C
D
E
F
G
Photo 1 - Maison à BRETIGNOLLES-SUR-MER
Photo 1
Photo 2 - Maison à BRETIGNOLLES-SUR-MER
Photo 2
Photo 3 - Maison à BRETIGNOLLES-SUR-MER
Photo 3
Photo 4 - Maison à BRETIGNOLLES-SUR-MER
Photo 4
Photo 5 - Maison à BRETIGNOLLES-SUR-MER
Photo 5
Photo 6 - Maison à BRETIGNOLLES-SUR-MER
Photo 6
Photo 7 - Maison à BRETIGNOLLES-SUR-MER
Photo 7
Photo 8 - Maison à BRETIGNOLLES-SUR-MER
Photo 8
Photo 9 - Maison à BRETIGNOLLES-SUR-MER
Photo 9
Géorisques

Les informations sur les risques auxquels ce bien est exposé sont disponibles sur le site Géorisques : www.georisques.gouv.fr

Ce site est protégé par hCaptcha Politique de confidentialité et Conditions d’utilisation s’appliquent.

En poursuivant votre navigation sans modifier vos paramètres, vous acceptez l'utilisation de cookies susceptibles de réaliser des statistiques de visite. Cliquez ici pour plus d'informations