Bénéficiez des services de nos partenaires locaux soigneusement sélectionnés
pour vous accompagner dans votre parcours d'achat immobilier

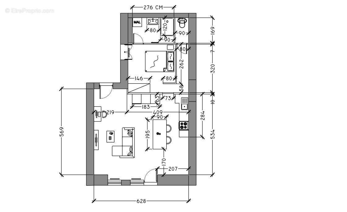
Appartement 53 m² à Nort-Sur-Erdre

— Nort-Sur-Erdre 44390 —
155 900 €
53 m²
2 pièces
parking

Nos partenaires locaux
Iad France - Jacky Petiz vous propose : Magnifique appartement T2 / T2bis entièrement rénové 2026 à Nort-sur-Erdre.
Idéalement situé à Nort-sur-Erdre, cet appartement T2 de 53 m² a été entièrement rénové pour offrir un espace de vie moderne, lumineux et fonctionnel. Parfait pour un couple ou une personne seule, ce bien saura vous séduire par ses nombreux atouts et sa localisation privilégiée.

Dès l'entrée, vous serez charmé par l'agencement astucieux de cet appartement. La pièce de vie principale sur parquet, comprenant une cuisine ouverte aménagée et de quoi accueillir un espace télétravail. La chambre au calme avec fenêtre sur cour, la salle d'eau moderne et le WC séparé ajoutent encore au confort de ce bien.

Côté pratique, cet appartement dispose de deux entrées distinctes, l'une donnant sur la rue et l'autre sur une cour intérieure, offrant ainsi plus d'intimité et de flexibilité. Chauffage individuel électrique performant.

Cet appartement se trouve dans une petite copropriété de 3 niveaux avec de faibles charges.
Sa rénovation offre un cadre de vie moderne tout en conservant le charme de l'ancien.
L'appartement dispose d'un parking privé pour deux véhicules, vous garantissant ainsi tranquillité et praticité au quotidien.
La livraison de ce grand T2 est prévue pour mars / avril 2026.

idéal pour un premier achat ou un investissement locatif avec une rentabilité > à 5 %. Loyer entre 700 et 750 ¤ / mois
Venez visiter cet appartement et laissez-vous séduire par ce bien d'exception à Nort-sur-Erdre.
* Photos non contractuelles dont la réalité est fortement inspirée.

La presente annonce immobiliere vise 3 lots situés dans une copropriété de 6 lots au total et ne faisant l'objet d'aucune procédure en cours citée à l'article L. 721-1 du code de la construction et de l'habitation. Montant moyen mensuel de charges déclaré par le vendeur : 6.67¤ par mois (soit 80 ¤ annuel). Honoraires d'agence à la charge du vendeur.
Information d'affichage énergétique sur ce bien : classe ENERGIE D indice 196 et classe CLIMAT B indice 7. Les informations sur les risques auxquels ce bien est exposé, y compris l'obligation légale de débroussaillement, sont disponibles sur le site Géorisques : http://www.georisques.gouv.fr.
La présente annonce immobilière a été rédigée sous la responsabilité éditoriale de M Jacky Petiz mandataire indépendant en immobilier (sans détention de fonds), agent commercial de la SAS I@D France immatriculé au RSAC de NANTES sous le numéro 519378731, titulaire de la carte de démarchage immobilier pour le compte de la société I@D France SAS.Informations LOI ALUR : Soumis au régime de copropriété. Nombre de lots : 6. Quote part annuelle(moyenne) : 80 euros. Honoraires charge vendeur. (gedeon_6727_32661514)
Voir plus

Référence: 1943724
Bien en copropriété. Nombre de lots : 6. Charges de copropriété : 80 €.
Honoraires à la charge du vendeur.
Barème des honoraires
DPE
A
B
C
D
E
F
G
GES
A
B
C
D
E
F
G
Photo 1 - Appartement à NORT-SUR-ERDRE
Photo 1
Photo 2 - Appartement à NORT-SUR-ERDRE
Photo 2
Photo 3 - Appartement à NORT-SUR-ERDRE
Photo 3
Photo 4 - Appartement à NORT-SUR-ERDRE
Photo 4
Photo 5 - Appartement à NORT-SUR-ERDRE
Photo 5
Photo 6 - Appartement à NORT-SUR-ERDRE
Photo 6
Photo 7 - Appartement à NORT-SUR-ERDRE
Photo 7
Géorisques

Les informations sur les risques auxquels ce bien est exposé sont disponibles sur le site Géorisques : www.georisques.gouv.fr

Ce site est protégé par hCaptcha Politique de confidentialité et Conditions d’utilisation s’appliquent.

En poursuivant votre navigation sans modifier vos paramètres, vous acceptez l'utilisation de cookies susceptibles de réaliser des statistiques de visite. Cliquez ici pour plus d'informations