Appartement 44 m² à Castelnau-Le-Lez

— Castelnau-Le-Lez 34170 —
290 000 €
44 m²
2 pièces
parkingbalcon/terrasseascenseur

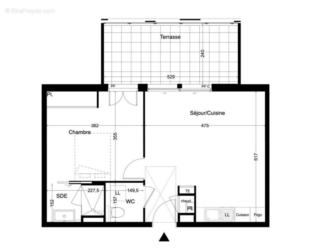
Iad France - Penelope Stoker ([Coordonnées masquées]) vous propose : Appartement T2 avec terrasse et garage sécurisé À CASTELNEAU-LE-LEZ Idéalement situé à Castelneau le lez, dans un secteur recherché et parfaitement placé à coté des commodités, des transports et de Montpellier, découvrez cet appartement deux pièces alliant confort moderne et extérieur. Ce bien propose une surface habitable de 43,7 m² environ, parfaitement optimisé. Vous serez séduit par sa belle pièce de vie avec cuisine ouverte de 24 m² environ, lumineuse, donnant directement accès à une terrasse de 12,69 m² environ. L'espace nuit se compose d'une chambre confortable de 13,54 m² environ, ainsi que d'une salle d'eau fonctionnelle et WC séparé. Garage sécurisé inclus, un véritable atout dans le secteur. Un appartement idéal pour une résidence principale, un pied-à-terre ou un investissement locatif de qualité. Contactez moi pour plus d'informations ou organiser une visite. Honoraires d'agence à la charge du vendeur. Bien non soumis au DPE. Les informations sur les risques auxquels ce bien est exposé sont disponibles sur le site Géorisques : www.georisques.gouv.fr. La présente annonce immobilière a été rédigée sous la responsabilité éditoriale de Mme Penelope Stoker EI (ID 83102), mandataire indépendant en immobilier (sans détention de fonds), agent commercial de la SAS I@D France immatriculé au RSAC de Paris sous le numéro 930194964, titulaire de la carte de démarchage immobilier pour le compte de la société I@D France SAS. Retrouvez tous nos biens sur notre site internet. www.iadfrance.fr.Informations LOI ALUR : Honoraires charge vendeur. (gedeon_6727_32681202)
Voir plus

Référence: 1906320-7
Honoraires à la charge du vendeur.
Barème des honoraires
Photo 1 - Appartement à CASTELNAU-LE-LEZ
Photo 1
Photo 2 - Appartement à CASTELNAU-LE-LEZ
Photo 2
Photo 3 - Appartement à CASTELNAU-LE-LEZ
Photo 3
Photo 4 - Appartement à CASTELNAU-LE-LEZ
Photo 4
Géorisques

Les informations sur les risques auxquels ce bien est exposé sont disponibles sur le site Géorisques : www.georisques.gouv.fr

Ce site est protégé par hCaptcha Politique de confidentialité et Conditions d’utilisation s’appliquent.

En poursuivant votre navigation sans modifier vos paramètres, vous acceptez l'utilisation de cookies susceptibles de réaliser des statistiques de visite. Cliquez ici pour plus d'informations