Appartement 45 m² à Uzes

— Uzes 30700 —
235 000 €
45 m²
2 pièces
parkingbalcon/terrasseascenseur

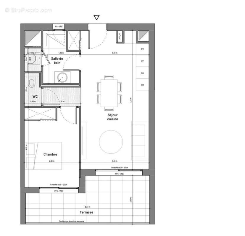
Iad France - Penelope Stoker ([Coordonnées masquées]) vous propose : Appartement T2 avec terrasse et parking à UzèsSitué dans un environnement calme et résidentiel, ce bel appartement offre un cadre de vie agréable à deux pas des commodités et du centre historique. D'une surface habitable de 44,7 m² environ, il se compose de : Une belle pièce de vie avec séjour / cuisine ouverte de 26,6 m² environUne chambre de 11,3 m² environ Une salle de bains Un WC indépendant Vous profiterez également d'une agréable terrasse privative de 12,6 m² environ exposée sud, parfaite pour profiter des beaux jours. Implanté à Uzès, cet appartement bénéficie d'un emplacement recherché, entre tranquillité et proximité immédiate des commerces, services et du coeur de ville. L'appartement est vendu avec une place de parking sécurisée. Pour plus de renseignements, merci de me contacter. Honoraires d'agence à la charge du vendeur. Bien non soumis au DPE. Les informations sur les risques auxquels ce bien est exposé sont disponibles sur le site Géorisques : www.georisques.gouv.fr. La présente annonce immobilière a été rédigée sous la responsabilité éditoriale de Mme Penelope Stoker EI (ID 83102), mandataire indépendant en immobilier (sans détention de fonds), agent commercial de la SAS I@D France immatriculé au RSAC de Paris sous le numéro 930194964, titulaire de la carte de démarchage immobilier pour le compte de la société I@D France SAS. Retrouvez tous nos biens sur notre site internet. www.iadfrance.fr.Informations LOI ALUR : Honoraires charge vendeur. (gedeon_6727_32717706)
Voir plus

Référence: 1906038-1
Honoraires à la charge du vendeur.
Barème des honoraires
Photo 1 - Appartement à UZES
Photo 1
Photo 2 - Appartement à UZES
Photo 2
Photo 3 - Appartement à UZES
Photo 3
Photo 4 - Appartement à UZES
Photo 4
Photo 5 - Appartement à UZES
Photo 5
Photo 6 - Appartement à UZES
Photo 6
Géorisques

Les informations sur les risques auxquels ce bien est exposé sont disponibles sur le site Géorisques : www.georisques.gouv.fr

Ce site est protégé par hCaptcha Politique de confidentialité et Conditions d’utilisation s’appliquent.

En poursuivant votre navigation sans modifier vos paramètres, vous acceptez l'utilisation de cookies susceptibles de réaliser des statistiques de visite. Cliquez ici pour plus d'informations