Bénéficiez des services de nos partenaires locaux soigneusement sélectionnés
pour vous accompagner dans votre parcours d'achat immobilier

Appartement 70 m² à Velizy-Villacoublay

— Velizy-Villacoublay 78140 —
280 000 €
70 m²
2 pièces
parkingbalcon/terrasseascenseur

Nos partenaires locaux
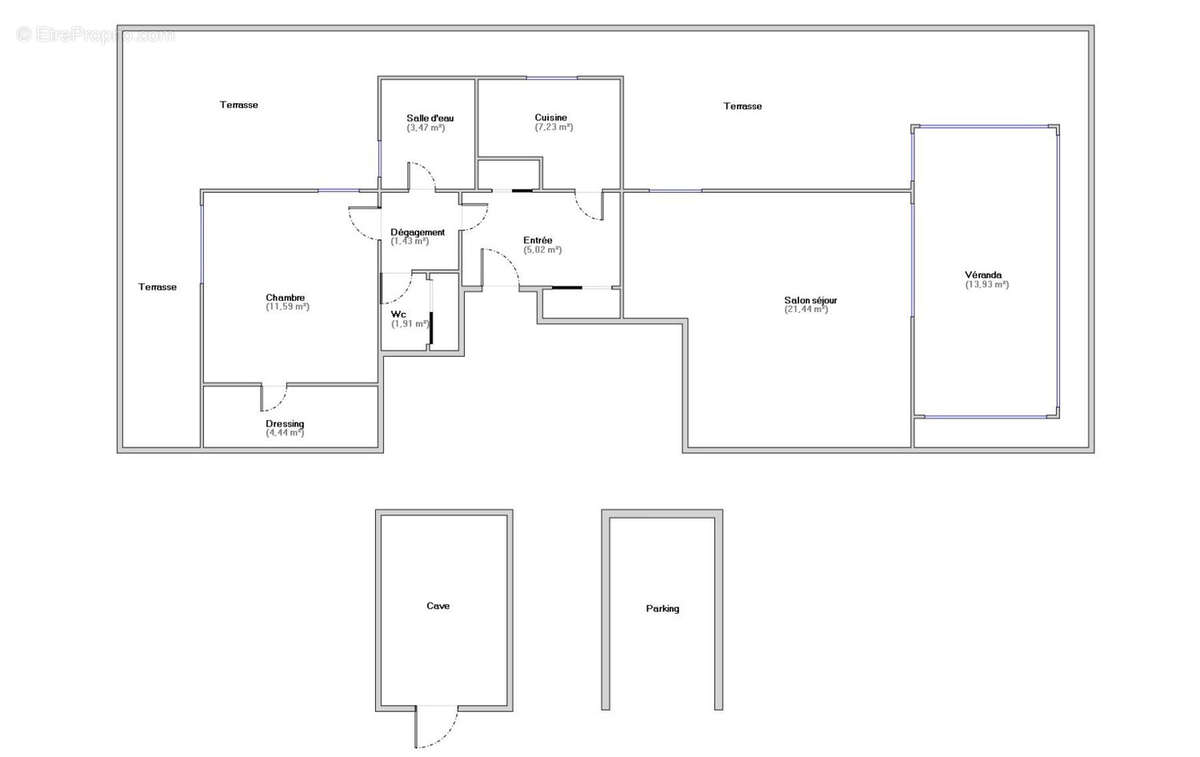
Iad France - Marlène Constant vous propose : Appartement dans une résidence sécurisée avec véranda, terrasse panoramique, cave et Parking en sous-sol à Vélizy-Villacoublay. Appartement de type T2 dans une résidence sécurisée, avec véranda, terrasse panoramique, cave et Parking en sous-sol, situé au 8ème et dernier étage. L'appartement se compose d'une chambre spacieuse avec dressing ouverte sur la terrasse, une salle d'eau avec fenêtre, un WC individuel, rangements, une cuisine aménagée et équipée ainsi qu'un séjour lumineux avec véranda et terrasse panoramique donnant accès à une vue dégagée sur les environs. Une cave et un parking en sous-sol complètent ce bien. La proximité des commerces, des transports en commun et des espaces verts ainsi qu'un accès rapide à l'A86 font de cet appartement un lieu de vie privilégié pour les personnes en quête de confort et de qualité de vie. Photos d'aménagement non contractuellesLa presente annonce immobiliere vise 3 lots situés dans une copropriété de 3 lots au total et ne faisant l'objet d'aucune procédure en cours citée à l'article L. 721-1 du code de la construction et de l'habitation. Montant moyen mensuel de charges déclaré par le vendeur : 253.67¤ par mois (soit 3044 ¤ annuel). Honoraires d'agence à la charge du vendeur. Information d'affichage énergétique sur ce bien : classe ENERGIE E indice 270 et classe CLIMAT D indice 31. Les informations sur les risques auxquels ce bien est exposé, y compris l'obligation légale de débroussaillement, sont disponibles sur le site Géorisques : http://www.georisques.gouv.fr.La présente annonce immobilière a été rédigée sous la responsabilité éditoriale de Mme Marlène Constant mandataire indépendant en immobilier (sans détention de fonds), agent commercial de la SAS I@D France immatriculé au RSAC de VERSAILLES sous le numéro 898231998, titulaire de la carte de démarchage immobilier pour le compte de la société I@D France SAS.Informations LOI ALUR : Soumis au régime de copropriété. Nombre de lots : 3. Quote part annuelle(moyenne) : 3044 euros. Honoraires charge vendeur. (gedeon_6727_32722716)
Voir plus

Référence: 1950440
Bien en copropriété. Nombre de lots : 3. Charges de copropriété : 3044 €.
Honoraires à la charge du vendeur.
Barème des honoraires
DPE
A
B
C
D
E
F
G
GES
A
B
C
D
E
F
G
Photo 1 - Appartement à VELIZY-VILLACOUBLAY
Photo 1
Photo 2 - Appartement à VELIZY-VILLACOUBLAY
Photo 2
Photo 3 - Appartement à VELIZY-VILLACOUBLAY
Photo 3
Photo 4 - Appartement à VELIZY-VILLACOUBLAY
Photo 4
Photo 5 - Appartement à VELIZY-VILLACOUBLAY
Photo 5
Photo 6 - Appartement à VELIZY-VILLACOUBLAY
Photo 6
Géorisques

Les informations sur les risques auxquels ce bien est exposé sont disponibles sur le site Géorisques : www.georisques.gouv.fr

Ce site est protégé par hCaptcha Politique de confidentialité et Conditions d’utilisation s’appliquent.

En poursuivant votre navigation sans modifier vos paramètres, vous acceptez l'utilisation de cookies susceptibles de réaliser des statistiques de visite. Cliquez ici pour plus d'informations