Bénéficiez des services de nos partenaires locaux soigneusement sélectionnés
pour vous accompagner dans votre parcours d'achat immobilier

Terrain 230 m² à Villejuif

— Villejuif 94800 —
300 000 €
230 m²

Nos partenaires locaux
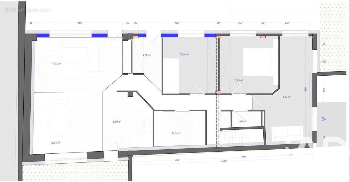
Iad France - Charlotte SAGON vous propose : Terrain de 230 m² Villejuif à 5 minutes du M7 et M15 Louis Aragon

Terrain avec batiment existant en cours de permis en cours pour transformer le bâti en maison individuelle.

Situé à 5 minutes de Villejuif Louis Aragon M7 M15 et T7 vous bénéficiez d'un emplacement privilégié, zone pavillonnaire avec commerces, écoles et services à proximité immédiate.

Projet de maison 100 m² avec jardin privé de 100 m² + place de parking.
Devis validé pour la construction : 100 000 euros.

Permis de construire en cours de validité, des plans disponibles sur demande et à titre indicatif.

Affaire à saisir rapidement !

Honoraires d'agence à la charge de l'acquéreur. Prix honoraires inclus : 300000 euros. Prix hors honoraires : 288000 euros. Honoraires TTC à la charge de l'acquéreur (4,17% du prix du bien hors honoraires) : 12000 euros.
Bien non soumis au DPE. Les informations sur les risques auxquels ce bien est exposé, y compris l'obligation légale de débroussaillement, sont disponibles sur le site Géorisques : http://www.georisques.gouv.fr.
La présente annonce immobilière a été rédigée sous la responsabilité éditoriale de Mme Charlotte SAGON mandataire indépendant en immobilier (sans détention de fonds), agent commercial de la SAS I@D France immatriculé au RSAC de Créteil sous le numéro 881276505, titulaire de la carte de démarchage immobilier pour le compte de la société I@D France SAS.Informations LOI ALUR : Honoraires charge acquéreur. Prix hors honoraires : 288 000 ¤. (gedeon_6727_32729664)
Voir plus

Référence: 1944653
Honoraires à la charge de l'acquéreur.
Barème des honoraires
Photo 1 - Terrain à VILLEJUIF
Photo 1
Photo 2 - Terrain à VILLEJUIF
Photo 2
Photo 3 - Terrain à VILLEJUIF
Photo 3
Géorisques

Les informations sur les risques auxquels ce bien est exposé sont disponibles sur le site Géorisques : www.georisques.gouv.fr

Ce site est protégé par hCaptcha Politique de confidentialité et Conditions d’utilisation s’appliquent.

En poursuivant votre navigation sans modifier vos paramètres, vous acceptez l'utilisation de cookies susceptibles de réaliser des statistiques de visite. Cliquez ici pour plus d'informations