Bénéficiez des services de nos partenaires locaux soigneusement sélectionnés
pour vous accompagner dans votre parcours d'achat immobilier

Appartement 71 m² à Quimper

— Quimper 29000 —
169 000 €
71 m²
4 pièces

Nos partenaires locaux
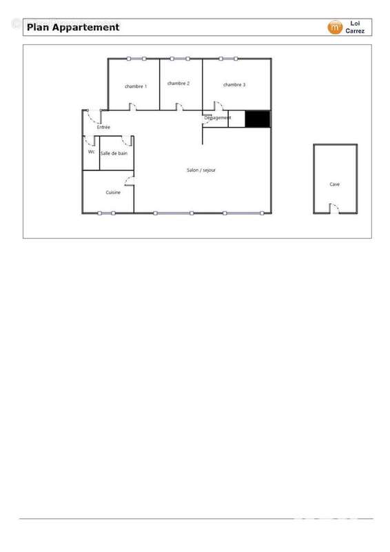
Iad France - Frédéric Thomas vous propose : À découvrir, appartement T4 traversant et lumineux de 71 m², proche centre-ville et commodités, dans un environnement verdoyant.
Situé au 2e étage sans ascenseur, il comprend un séjour, 3 chambres, salle d'eau et WC indépendant.
Beau parquet, chaudière gaz récente.
Cave.
Possibilité d'acquérir un garage fermé pour 15 000 ¤ supplémentaires.

La presente annonce immobiliere vise 2 lots situés dans une copropriété de 60 lots au total et ne faisant l'objet d'aucune procédure en cours citée à l'article L. 721-1 du code de la construction et de l'habitation. Montant moyen mensuel de charges déclaré par le vendeur : 70¤ par mois (soit 840 ¤ annuel). Honoraires d'agence à la charge du vendeur.
Information d'affichage énergétique sur ce bien : classe ENERGIE D indice 223 et classe CLIMAT D indice 48. Les informations sur les risques auxquels ce bien est exposé, y compris l'obligation légale de débroussaillement, sont disponibles sur le site Géorisques : http://www.georisques.gouv.fr.
La présente annonce immobilière a été rédigée sous la responsabilité éditoriale de M Frédéric Thomas mandataire indépendant en immobilier (sans détention de fonds), agent commercial de la SAS I@D France immatriculé au RSAC de QUIMPER sous le numéro 393464052, titulaire de la carte de démarchage immobilier pour le compte de la société I@D France SAS.Informations LOI ALUR : Soumis au régime de copropriété. Nombre de lots : 60. Quote part annuelle(moyenne) : 840 euros. Honoraires charge vendeur. (gedeon_6727_32730066)
Voir plus

Référence: 1950644
Bien en copropriété. Nombre de lots : 60. Charges de copropriété : 840 €.
Honoraires à la charge du vendeur.
Barème des honoraires
DPE
A
B
C
D
E
F
G
GES
A
B
C
D
E
F
G
Photo 1 - Appartement à QUIMPER
Photo 1
Photo 2 - Appartement à QUIMPER
Photo 2
Photo 3 - Appartement à QUIMPER
Photo 3
Photo 4 - Appartement à QUIMPER
Photo 4
Photo 5 - Appartement à QUIMPER
Photo 5
Photo 6 - Appartement à QUIMPER
Photo 6
Géorisques

Les informations sur les risques auxquels ce bien est exposé sont disponibles sur le site Géorisques : www.georisques.gouv.fr

Ce site est protégé par hCaptcha Politique de confidentialité et Conditions d’utilisation s’appliquent.