Bénéficiez des services de nos partenaires locaux soigneusement sélectionnés
pour vous accompagner dans votre parcours d'achat immobilier

Maison 63 m² à Frejus

— Frejus 83600 —
329 000 €
63 m² / 165 m²
3 pièces
parkingjardin

Nos partenaires locaux
Iad France - Eric Lamac vous propose : EXCLUSIVITÉ FREJUS ST LAMBERT - MAISON 63 m², JARDIN, GARAGE -
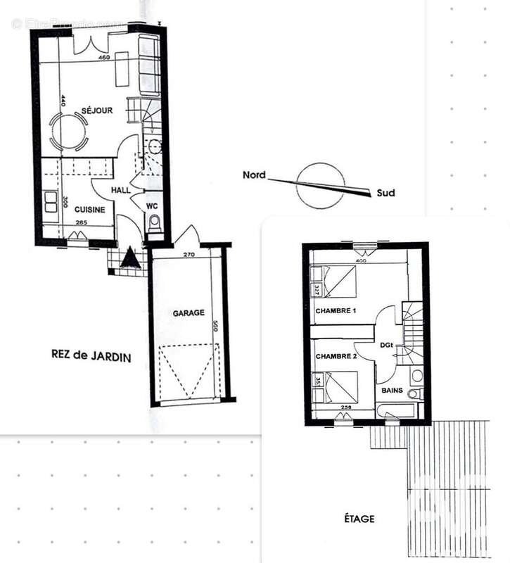
Dans une petite copropriété sécurisée et calme, maison de 63 m² édifiée sur un terrain de 165 m².
Cette maison se compose d'un rez de jardin comprenant : une entrée, un salon avec rangements ouvrant sur le jardin, une grande cuisine ouverte, WC.
A l'étage se trouvent : 2 chambres de 10 et 14 m² avec placards, 1 salle de bains avec WC.
Le garage mitoyen a été divisé en 2 : salle de jeux et buanderie. Stationnement privatif devant la maison.
Le jardin d'env 60 m² orienté à l'Est et sans vis-à-vis bénéficie d'un bel ensoleillement.
Belles prestations : volet électrique séjour, volets battants récents, chauffe-eau neuf, climatisation dans chaque pièce, double vitrage, ventilateur au plafond.
Les + : les panneaux photovoltaïques apportent 1000¤ / an, localisation idéale : centre hospitalier à proximité immédiate, collège et lycée à 500m, commerces à 800m.
A visiter sans tarder !

La presente annonce immobiliere vise 1 lot situé dans une copropriété de 30 lots au total et ne faisant l'objet d'aucune procédure en cours citée à l'article L. 721-1 du code de la construction et de l'habitation. Montant moyen mensuel de charges déclaré par le vendeur : 20¤ par mois (soit 240 ¤ annuel). Honoraires d'agence à la charge du vendeur.
Information d'affichage énergétique sur ce bien : classe ENERGIE B indice 105 et classe CLIMAT A indice 4. Les informations sur les risques auxquels ce bien est exposé, y compris l'obligation légale de débroussaillement, sont disponibles sur le site Géorisques : http://www.georisques.gouv.fr.
La présente annonce immobilière a été rédigée sous la responsabilité éditoriale de M Eric Lamac mandataire indépendant en immobilier (sans détention de fonds), agent commercial de la SAS I@D France immatriculé au RSAC de Fréjus sous le numéro 752444430, titulaire de la carte de démarchage immobilier pour le compte de la société I@D France SAS.Informations LOI ALUR : Soumis au régime de copropriété. Nombre de lots : 30. Quote part annuelle(moyenne) : 240 euros. Honoraires charge vendeur. (gedeon_6727_32742173)
Voir plus

Référence: 1952795
Bien en copropriété. Nombre de lots : 30. Charges de copropriété : 240 €.
Honoraires à la charge du vendeur.
Barème des honoraires
DPE
A
B
C
D
E
F
G
GES
A
B
C
D
E
F
G
Photo 1 - Maison à FREJUS
Photo 1
Photo 2 - Maison à FREJUS
Photo 2
Photo 3 - Maison à FREJUS
Photo 3
Photo 4 - Maison à FREJUS
Photo 4
Photo 5 - Maison à FREJUS
Photo 5
Photo 6 - Maison à FREJUS
Photo 6
Photo 7 - Maison à FREJUS
Photo 7
Photo 8 - Maison à FREJUS
Photo 8
Photo 9 - Maison à FREJUS
Photo 9
Géorisques

Les informations sur les risques auxquels ce bien est exposé sont disponibles sur le site Géorisques : www.georisques.gouv.fr

Ce site est protégé par hCaptcha Politique de confidentialité et Conditions d’utilisation s’appliquent.

En poursuivant votre navigation sans modifier vos paramètres, vous acceptez l'utilisation de cookies susceptibles de réaliser des statistiques de visite. Cliquez ici pour plus d'informations