Bénéficiez des services de nos partenaires locaux soigneusement sélectionnés
pour vous accompagner dans votre parcours d'achat immobilier

Maison 94 m² à Pompey

— Pompey 54340 —
173 000 €
94 m² / 446 m²
4 pièces
balcon/terrassejardin

Nos partenaires locaux
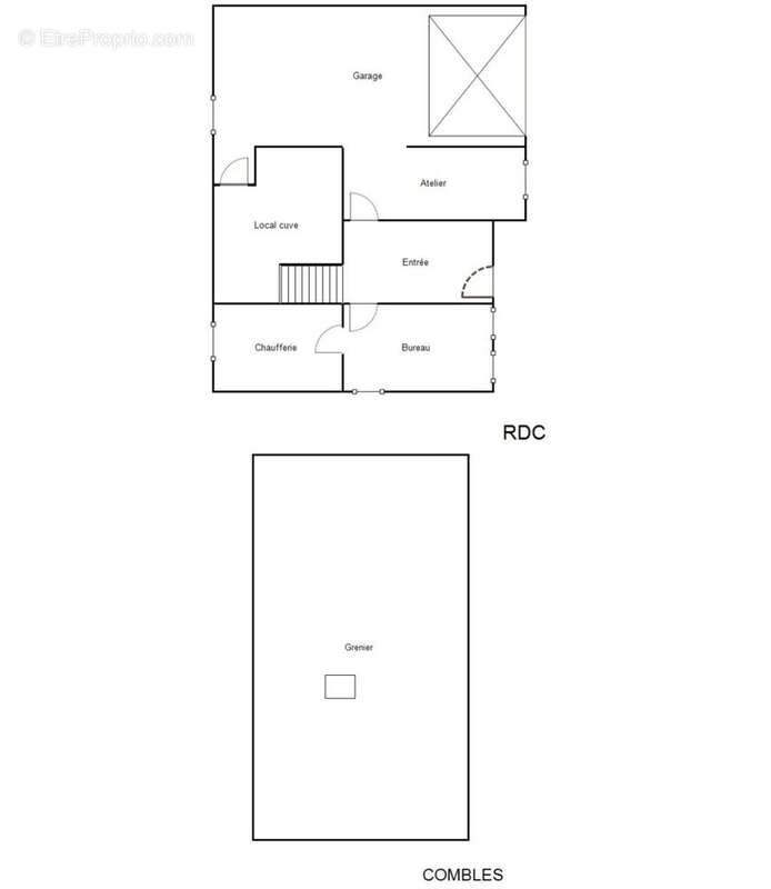
Iad France - Tony Santos vous propose : Charmant pavillon de 94 m² avec sous-sol complet sur terrain de 446 m²Découvrez ce joli pavillon lumineux et fonctionnel, idéalement implanté sur un terrain clos de 446 m², offrant un agréable jardin sur les quatre côtés de la maison. À l'étage principal : Vous profiterez d'un espace de vie convivial composé d'une cuisine, d'un salon et d'une salle à manger baignés de lumière. Deux chambres confortables, une salle d'eau et un WC indépendant complètent ce niveau. Un accès direct à la terrasse arrière, sans vis-à-vis, vous permettra de savourer pleinement les beaux jours en toute intimité. Au sous-sol : Un véritable atout ! Vous y trouverez : Une chambre supplémentaire (ou bureau idéal pour le télétravail) Une pièce attenante type chaufferie pouvant être aménagée en salle d'eauUn garage avec porte motoriséeUne buanderieUn atelierUne cavePrestations et confort : Double vitrage avec volets roulants électriquesPoêle à bois avec tubage récentDalle béton et plancherCharpente métalliqueÀ l'extérieur, le jardin agréable et bien exposé offre un bel espace de détente, avec possibilité de stationner un camping-car. Une maison saine, bien entretenue et évolutive, offrant de beaux volumes et de nombreuses possibilités d'aménagement. Honoraires d'agence à la charge du vendeur. Information d'affichage énergétique sur ce bien : classe ENERGIE G indice 532 et classe CLIMAT G indice 112. Les informations sur les risques auxquels ce bien est exposé, y compris l'obligation légale de débroussaillement, sont disponibles sur le site Géorisques : http://www.georisques.gouv.fr.La présente annonce immobilière a été rédigée sous la responsabilité éditoriale de M Tony Santos mandataire indépendant en immobilier (sans détention de fonds), agent commercial de la SAS I@D France immatriculé au RSAC de Nancy sous le numéro 980391148, titulaire de la carte de démarchage immobilier pour le compte de la société I@D France SAS.Informations LOI ALUR : Honoraires charge vendeur. (gedeon_6727_32758881)
Voir plus

Référence: 1946510
Honoraires à la charge du vendeur.
Barème des honoraires
DPE
A
B
C
D
E
F
G
GES
A
B
C
D
E
F
G
Photo 1 - Maison à POMPEY
Photo 1
Photo 2 - Maison à POMPEY
Photo 2
Photo 3 - Maison à POMPEY
Photo 3
Photo 4 - Maison à POMPEY
Photo 4
Photo 5 - Maison à POMPEY
Photo 5
Photo 6 - Maison à POMPEY
Photo 6
Photo 7 - Maison à POMPEY
Photo 7
Photo 8 - Maison à POMPEY
Photo 8
Photo 9 - Maison à POMPEY
Photo 9
Géorisques

Les informations sur les risques auxquels ce bien est exposé sont disponibles sur le site Géorisques : www.georisques.gouv.fr

Ce site est protégé par hCaptcha Politique de confidentialité et Conditions d’utilisation s’appliquent.

En poursuivant votre navigation sans modifier vos paramètres, vous acceptez l'utilisation de cookies susceptibles de réaliser des statistiques de visite. Cliquez ici pour plus d'informations