Bénéficiez des services de nos partenaires locaux soigneusement sélectionnés
pour vous accompagner dans votre parcours d'achat immobilier

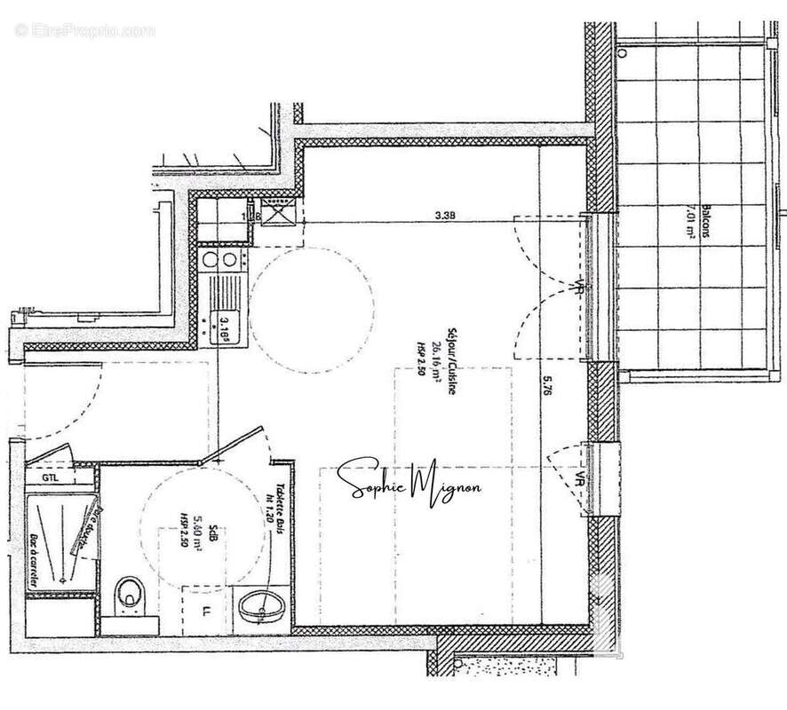
Appartement 32 m² à Biscarrosse

— Biscarrosse 40600 —
146 000 €
32 m²
1 pièce
balcon/terrasseascenseur

Nos partenaires locaux
Iad France - Sophie Mignon vous propose : À seulement 5 minutes à pied du centre-ville, des commerces et des écoles, découvrez cet appartement situé au sein d'une résidence récente, sécurisée et parfaitement entretenue avec ascenseur. Conforme aux normes PMR, ce bien se compose d'une entrée desservant un séjour lumineux avec cuisine ouverte, prolongé par un agréable balcon, idéal pour profiter d'un espace extérieur. Il comprend également une salle d'eau fonctionnelle avec WC. Vous bénéficierez également d'un emplacement privilégié, à seulement 10 minutes en voiture de l'océan et 10 minutes du lac, offrant un cadre de vie particulièrement recherché. Une belle opportunité dans un secteur attractif, adaptée aussi bien à un investissement locatif qu'à un premier achat. La presente annonce immobiliere vise 1 lot situé dans une copropriété de 128 lots au total et ne faisant l'objet d'aucune procédure en cours citée à l'article L. 721-1 du code de la construction et de l'habitation. Montant moyen mensuel de charges déclaré par le vendeur : 46.67¤ par mois (soit 560 ¤ annuel). Honoraires d'agence à la charge du vendeur. Information d'affichage énergétique sur ce bien : classe ENERGIE C indice 96 et classe CLIMAT C indice 17. Les informations sur les risques auxquels ce bien est exposé, y compris l'obligation légale de débroussaillement, sont disponibles sur le site Géorisques : http://www.georisques.gouv.fr.La présente annonce immobilière a été rédigée sous la responsabilité éditoriale de Mme Sophie Mignon mandataire indépendant en immobilier (sans détention de fonds), agent commercial de la SAS I@D France immatriculé au RSAC de Mont de Marsan sous le numéro 888186764, titulaire de la carte de démarchage immobilier pour le compte de la société I@D France SAS.Informations LOI ALUR : Soumis au régime de copropriété. Nombre de lots : 128. Quote part annuelle(moyenne) : 560 euros. Honoraires charge vendeur. (gedeon_6727_32771078)
Voir plus

Référence: 1954538
Bien en copropriété. Nombre de lots : 128. Charges de copropriété : 560 €.
Honoraires à la charge du vendeur.
Barème des honoraires
DPE
A
B
C
D
E
F
G
GES
A
B
C
D
E
F
G
Photo 1 - Appartement à BISCARROSSE
Photo 1
Photo 2 - Appartement à BISCARROSSE
Photo 2
Photo 3 - Appartement à BISCARROSSE
Photo 3
Photo 4 - Appartement à BISCARROSSE
Photo 4
Photo 5 - Appartement à BISCARROSSE
Photo 5
Photo 6 - Appartement à BISCARROSSE
Photo 6
Photo 7 - Appartement à BISCARROSSE
Photo 7
Géorisques

Les informations sur les risques auxquels ce bien est exposé sont disponibles sur le site Géorisques : www.georisques.gouv.fr

Ce site est protégé par hCaptcha Politique de confidentialité et Conditions d’utilisation s’appliquent.

En poursuivant votre navigation sans modifier vos paramètres, vous acceptez l'utilisation de cookies susceptibles de réaliser des statistiques de visite. Cliquez ici pour plus d'informations