Bénéficiez des services de nos partenaires locaux soigneusement sélectionnés
pour vous accompagner dans votre parcours d'achat immobilier

Appartement 53 m² à Saint-Maurice

— Saint-Maurice 94410 —
279 900 €
53 m²
3 pièces
parking

Nos partenaires locaux
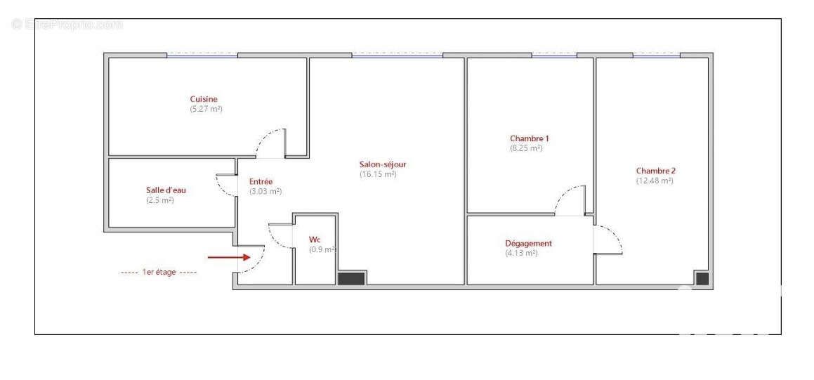
Iad France - Bilal Soudki vous propose : Situé dans la paisible commune de Saint-Maurice, dans une résidence face au Bois de Vincennes, cet appartement de 52.4 m² Carrez est situé au premier étage d'une résidence sécurisée. Vous aurez également accès à une station de bus au pied de la résidence qui mène au métro ligne 8 et au RER A, ainsi qu'une place de parking. En entrant dans cet appartement, l'espace de vie principal se compose d'un salon lumineux de 16 m² orienté EST, d'une cuisine séparée (possibilité d'ouverture), et de deux chambres. Puis d'un dégagement avec dressing, d'une salle d'eau et d'un WC séparé. Une vie dégagée sans vis à vis. Les charges sont à 200 euros par mois et elles comprennent l'eau froide, le chauffage collectif et le reste des charges de copropriété. Le diagnostic de performance énergétique est très bon : D. Double vitrage dans tout l'appartement. Les commerces et les écoles se trouvent à proximité. Les photos du séjour et des chambres sont des projections 3D. La presente annonce immobiliere vise 2 lots situés dans une copropriété de 98 lots au total et ne faisant l'objet d'aucune procédure en cours citée à l'article L. 721-1 du code de la construction et de l'habitation. Montant moyen mensuel de charges déclaré par le vendeur : 200¤ par mois (soit 2400 ¤ annuel). Honoraires d'agence à la charge du vendeur. Information d'affichage énergétique sur ce bien : classe ENERGIE D indice 192 et classe CLIMAT D indice 41. Les informations sur les risques auxquels ce bien est exposé, y compris l'obligation légale de débroussaillement, sont disponibles sur le site Géorisques : http://www.georisques.gouv.fr.La présente annonce immobilière a été rédigée sous la responsabilité éditoriale de M Bilal Soudki mandataire indépendant en immobilier (sans détention de fonds), agent commercial de la SAS I@D France immatriculé au RSAC de PARIS sous le numéro 892191453, titulaire de la carte de démarchage immobilier pour le compte de la société I@D France SAS.Informations LOI ALUR : Soumis au régime de copropriété. Nombre de lots : 98. Quote part annuelle(moyenne) : 2400 euros. Honoraires charge vendeur. (gedeon_6727_32771106)
Voir plus

Référence: 1955028
Bien en copropriété. Nombre de lots : 98. Charges de copropriété : 2400 €.
Honoraires à la charge du vendeur.
Barème des honoraires
DPE
A
B
C
D
E
F
G
GES
A
B
C
D
E
F
G
Photo 1 - Appartement à SAINT-MAURICE
Photo 1
Photo 2 - Appartement à SAINT-MAURICE
Photo 2
Photo 3 - Appartement à SAINT-MAURICE
Photo 3
Photo 4 - Appartement à SAINT-MAURICE
Photo 4
Photo 5 - Appartement à SAINT-MAURICE
Photo 5
Photo 6 - Appartement à SAINT-MAURICE
Photo 6
Photo 7 - Appartement à SAINT-MAURICE
Photo 7
Photo 8 - Appartement à SAINT-MAURICE
Photo 8
Photo 9 - Appartement à SAINT-MAURICE
Photo 9
Géorisques

Les informations sur les risques auxquels ce bien est exposé sont disponibles sur le site Géorisques : www.georisques.gouv.fr

Ce site est protégé par hCaptcha Politique de confidentialité et Conditions d’utilisation s’appliquent.

En poursuivant votre navigation sans modifier vos paramètres, vous acceptez l'utilisation de cookies susceptibles de réaliser des statistiques de visite. Cliquez ici pour plus d'informations