Bénéficiez des services de nos partenaires locaux soigneusement sélectionnés
pour vous accompagner dans votre parcours d'achat immobilier

Appartement 35 m² à Six-Fours-Les-Plages

— Six-Fours-Les-Plages 83140 —
215 000 €
35 m² / 7 m²
2 pièces
balcon/terrasse

Nos partenaires locaux
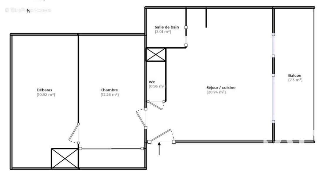
Iad France - Isabelle Tigien vous propose : Domaine de la Coudoulière - Au Calme -Je vous propose un certain art de vivre : au coeur d'un parc naturel de 32 hectares exceptionnel et unique sur le secteur, dans une résidence fermée et sécurisée, comprenant une infrastructure complète de loisirs, avec piscine olympique, mini golf, parc, boulodrome, jeux, tennis, lacs. et proche de toutes les commodités, commerces, transports en commun, piste cyclable. Voici un appartement prés à vous accueillir, situé à 200 mètres environ de la plage, composé d'une agréable pièce de vie avec cuisine équipée de 21 m² environ, ouvert sur un balcon de 7 m² sans vis-à-vis direct. La particularité de cet appartement est de bénéficier d'espaces supplémentaires telle qu'une pièce de 12 m² aménagée en chambre, contiguë à un espace de rangement / buanderie d'environ 10 m². L'appartement est en très bon état, prêt à vous accueillir pour une résidence principale ou envisager un investissement locatif de qualité. Informations supplémentaires : - chauffage électrique individuel- charges mensuelles : 100 Euro environ- salle d'eau rénovée avec fenêtreCe bien pourrait vous correspondre ? N'hésitez pas à me contacter, je me ferai un plaisir de vous le faire découvrir s'il correspond à votre projet. Je reste disponible 7 / 7. La presente annonce immobiliere vise 2 lots situés dans une copropriété de 15 lots au total et ne faisant l'objet d'aucune procédure en cours citée à l'article L. 721-1 du code de la construction et de l'habitation. Montant moyen mensuel de charges déclaré par le vendeur : 110¤ par mois (soit 1320 ¤ annuel). Honoraires d'agence à la charge du vendeur. Information d'affichage énergétique sur ce bien : classe ENERGIE D indice 232 et classe CLIMAT B indice 7. Les informations sur les risques auxquels ce bien est exposé, y compris l'obligation légale de débroussaillement, sont disponibles sur le site Géorisques : http://www.georisques.gouv.fr.La présente annonce immobilière a été rédigée sous la responsabilité éditoriale de Mme Isabelle Tigien mandataire indépendant en immobilier (sans détention de fonds), agent commercial de la SAS I@D France immatriculé au RSAC de Toulon sous le numéro 903515815, titulaire de la carte de démarchage immobilier pour le compte de la société I@D France SAS.Informations LOI ALUR : Soumis au régime de copropriété. Nombre de lots : 15. Quote part annuelle(moyenne) : 1320 euros. Honoraires charge vendeur. (gedeon_6727_32793825)
Voir plus

Référence: 1957271
Bien en copropriété. Nombre de lots : 15. Charges de copropriété : 1320 €.
Honoraires à la charge du vendeur.
Barème des honoraires
DPE
A
B
C
D
E
F
G
GES
A
B
C
D
E
F
G
Photo 1 - Appartement à SIX-FOURS-LES-PLAGES
Photo 1
Photo 2 - Appartement à SIX-FOURS-LES-PLAGES
Photo 2
Photo 3 - Appartement à SIX-FOURS-LES-PLAGES
Photo 3
Photo 4 - Appartement à SIX-FOURS-LES-PLAGES
Photo 4
Photo 5 - Appartement à SIX-FOURS-LES-PLAGES
Photo 5
Photo 6 - Appartement à SIX-FOURS-LES-PLAGES
Photo 6
Photo 7 - Appartement à SIX-FOURS-LES-PLAGES
Photo 7
Photo 8 - Appartement à SIX-FOURS-LES-PLAGES
Photo 8
Photo 9 - Appartement à SIX-FOURS-LES-PLAGES
Photo 9
Géorisques

Les informations sur les risques auxquels ce bien est exposé sont disponibles sur le site Géorisques : www.georisques.gouv.fr

Ce site est protégé par hCaptcha Politique de confidentialité et Conditions d’utilisation s’appliquent.

En poursuivant votre navigation sans modifier vos paramètres, vous acceptez l'utilisation de cookies susceptibles de réaliser des statistiques de visite. Cliquez ici pour plus d'informations