Bénéficiez des services de nos partenaires locaux soigneusement sélectionnés
pour vous accompagner dans votre parcours d'achat immobilier

Maison 202 m² à Le Rove

— Le Rove 13740 —
599 000 €
202 m²
6 pièces

Nos partenaires locaux
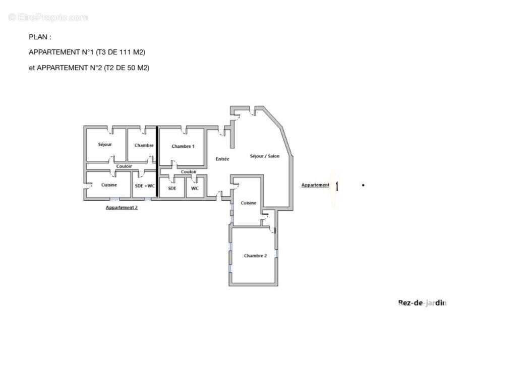
Iad France - Anne-Lise Lua vous propose : MAISON de 202 m² environ AU CALME proche des collines divisée en 3 APPARTEMENTS INDEPENDANTS + 1 GRAND GARAGE + JARDINCette maison en bon état de 202 m² environ a été divisée en 3 APPARTEMENTS INDEPENDANTS + 1 GRAND GARAGE. Elle peut être facilement modelée soit : - Une seule belle maison de 202 m² environ avec 4 ou 5 chambres avec terrasses, jardin et garage fermé.- Ou en un grand appartement de 160 m² environ au rez-de-chaussée puis un appartement au 1er étage de 42 m² environ, tous 2 avec une très belle terrasse plein sud.- Ou être REVENDUS INDEPENDAMMENT (3 appartements).Les 3 logements sont en bon état, climatisés et totalement indépendants (chacun possédant un bel extérieur) : - APPARTEMENT N°1 : Au rez-de-chaussée, T3 loué de 111 m² environ avec de très belles prestations, un salon de plus de 30 m² environ, une cuisine séparée équipée de 15 m² environ, une très belle suite parentale de 30 m² environ avec dressing, douche, baignoire et WC, une 2ème chambre de 13 m² environ, une salle d'eau et WC supplémentaires, et pour couronner le tout un très bel extérieur de 100 m² environ (Locatif : environ 1500 euros HC / mois / DPE : D et B)- APPARTEMENT N°2 : Au rez-de-chaussée, T2 libre de 50 m² environ, avec une grande cuisine séparée, un salon de 15 m² environ, une chambre de 12 m² environ tous 2 climatisés et une salle d'eau avec WC. Un bel extérieur de plus de 80 m² environ complète ce bien.(Locatif : 760 euros HC / mois environ / DPE : D et B). - APPARTEMENT N°3 : Au 1er étage (appartement libre) T2 / T3 de 42 m² environ comprenant un séjour avec cuisine ouverte de 20 m² environ donnant sur une belle terrasse de 40 m² environ, une salle de douche avec WC, et 2 chambres de 7,5 m² environ chacune avec rangements. Appartement climatisé avec store banne sur la terrasse.(Locatif : 700 euros HC / mois environ / DPE C et A)- GARAGE : Un Garage d'environ 50 m² environ complète cette maison (Création de lots de copropriété possible pour revente en 3 ou 4 lots) INVESTISSEURS, MARCHAND DE BIENS ou POUR Y LOGER en FAMILLE, tout est possible, n'hésitez plus et venez visiter ce bien d'exception ! Honoraires d'agence à la charge du vendeur. Information d'affichage énergétique sur ce bien : classe ENERGIE D indice 245 et classe CLIMAT B indice 7. Les informations sur les risques auxquels ce bien est exposé, y compris l'obligation légale de débroussaillement, sont disponibles sur le site Géorisques : http://www.georisques.gouv.fr.La présente annonce immobilière a été rédigée sous la responsabilité éditoriale de Mme Anne-Lise Lua mandataire indépendant en immobilier (sans détention de fonds), agent commercial de la SAS I@D France immatriculé au RSAC de AIX EN PROVENCE sous le numéro 918148396, titulaire de la carte de démarchage immobilier pour le compte de la société I@D France SAS.Informations LOI ALUR : Honoraires charge vendeur. (gedeon_6727_32806663)
Voir plus

Référence: 1962127
Honoraires à la charge du vendeur.
Barème des honoraires
DPE
A
B
C
D
E
F
G
GES
A
B
C
D
E
F
G
Photo 1 - Maison à LE ROVE
Photo 1
Photo 2 - Maison à LE ROVE
Photo 2
Photo 3 - Maison à LE ROVE
Photo 3
Photo 4 - Maison à LE ROVE
Photo 4
Photo 5 - Maison à LE ROVE
Photo 5
Géorisques

Les informations sur les risques auxquels ce bien est exposé sont disponibles sur le site Géorisques : www.georisques.gouv.fr

Ce site est protégé par hCaptcha Politique de confidentialité et Conditions d’utilisation s’appliquent.

En poursuivant votre navigation sans modifier vos paramètres, vous acceptez l'utilisation de cookies susceptibles de réaliser des statistiques de visite. Cliquez ici pour plus d'informations