Bénéficiez des services de nos partenaires locaux soigneusement sélectionnés
pour vous accompagner dans votre parcours d'achat immobilier

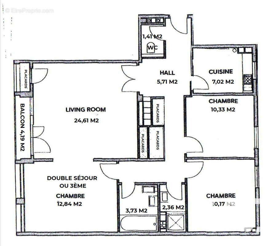
Appartement 85 m² à Boulogne-Billancourt

— Boulogne-Billancourt 92100 —
655 000 €
85 m²
4 pièces
balcon/terrasseascenseur

Nos partenaires locaux
Iad France - Sylvie Guffon vous propose : Boulogne-Billancourt - Hyper centre - F4 de 86 m² - Étage élevé - Balcon - Vue dégagée plein Sud En plein cOEur de Boulogne, à proximité immédiate du métro Jean Jaurès, découvrez ce 4 pièces lumineux situé au 6e étage avec ascenseur, offrant une double vue panoramique rare et une exposition plein Sud. Actuellement en double séjour (37 m²) avec possibilité d'y créer la 3ème chambre. L'appartement propose un très beau potentiel grâce à ses volumes, ses nombreux placards, son balcon ensoleillé et sa configuration modulable. Prévoir une rénovation complète, prix attractif de 655 000 ¤, déjà ajusté pour les travaux. Une opportunité idéale pour créer un intérieur qui vous ressemble dans l'un des quartiers les plus recherchés de la ville. Cave incluse. Pas de parking. Immeuble bien entretenu, transports, commerces et écoles au pied de l'immeuble. Pour plus d'informations ou organiser une visite, n'hésitez pas à me contacter. Pour l'organisation de la visite, en vertu de L'article L. 561-5 du code monétaire et financier, la présentation d'une pièce d'identité en cours de validité vous sera demandée. Une copie de ce document sera effectuée. La presente annonce immobiliere vise 2 lots situés dans une copropriété de 74 lots au total et ne faisant l'objet d'aucune procédure en cours citée à l'article L. 721-1 du code de la construction et de l'habitation. Montant moyen mensuel de charges déclaré par le vendeur : 416.67¤ par mois (soit 5000 ¤ annuel). Honoraires d'agence à la charge du vendeur. Information d'affichage énergétique sur ce bien : classe ENERGIE F indice 254 et classe CLIMAT F indice 79. Les informations sur les risques auxquels ce bien est exposé, y compris l'obligation légale de débroussaillement, sont disponibles sur le site Géorisques : http://www.georisques.gouv.fr.La présente annonce immobilière a été rédigée sous la responsabilité éditoriale de Mme Sylvie Guffon mandataire indépendant en immobilier (sans détention de fonds), agent commercial de la SAS I@D France immatriculé au RSAC de Bobigny sous le numéro 819239245, titulaire de la carte de démarchage immobilier pour le compte de la société I@D France SAS.Informations LOI ALUR : Soumis au régime de copropriété. Nombre de lots : 74. Quote part annuelle(moyenne) : 5000 euros. Honoraires charge vendeur. (gedeon_6727_32806798)
Voir plus

Référence: 1963033
Bien en copropriété. Nombre de lots : 74. Charges de copropriété : 5000 €.
Honoraires à la charge du vendeur.
Barème des honoraires
DPE
A
B
C
D
E
F
G
GES
A
B
C
D
E
F
G
Photo 1 - Appartement à BOULOGNE-BILLANCOURT
Photo 1
Photo 2 - Appartement à BOULOGNE-BILLANCOURT
Photo 2
Photo 3 - Appartement à BOULOGNE-BILLANCOURT
Photo 3
Photo 4 - Appartement à BOULOGNE-BILLANCOURT
Photo 4
Photo 5 - Appartement à BOULOGNE-BILLANCOURT
Photo 5
Photo 6 - Appartement à BOULOGNE-BILLANCOURT
Photo 6
Photo 7 - Appartement à BOULOGNE-BILLANCOURT
Photo 7
Photo 8 - Appartement à BOULOGNE-BILLANCOURT
Photo 8
Photo 9 - Appartement à BOULOGNE-BILLANCOURT
Photo 9
Géorisques

Les informations sur les risques auxquels ce bien est exposé sont disponibles sur le site Géorisques : www.georisques.gouv.fr

Ce site est protégé par hCaptcha Politique de confidentialité et Conditions d’utilisation s’appliquent.

En poursuivant votre navigation sans modifier vos paramètres, vous acceptez l'utilisation de cookies susceptibles de réaliser des statistiques de visite. Cliquez ici pour plus d'informations