Bénéficiez des services de nos partenaires locaux soigneusement sélectionnés
pour vous accompagner dans votre parcours d'achat immobilier

Maison 124 m² à Nanterre

— Nanterre 92000 —
549 000 €
124 m² / 125 m²
6 pièces
balcon/terrassejardin

Nos partenaires locaux
Iad France - Charlotte Cataldo vous propose : Idéal investisseur, maison type immeuble en toute propriété sur une parcelle de 125 m² avec garage, rooftop et balcons.

Un entresol indépendant type studio de plus de 20 m² avec salon / cuisine et salle-de-bains avec wc. Complété par une chaufferie et un débarras.
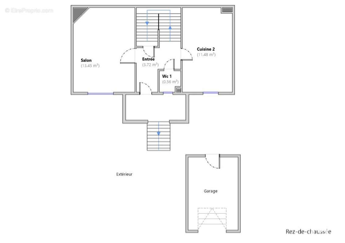
Au rez-de-chaussée surélevé un plateau de presque 30 m² avec une cuisine, une pièce et un wc.
Au 1er étage : plateau de 35 m² avec un palier, deux pièces avec balcons, un dégagement et une salle-de-bains avec wc.
Au 2ème étage : un plateau de 37 m² avec un palier, deux pièces avec balcons, un dégagement et une salle d'eau avec wc.
Au 3ème étage une terrasse rooftop de presque 19 m² avec vue à 360°

Un garage complète cette offre.

Les atouts :
- excellente rentabilité brute
- à 10min à pieds de la place de la Boule avec le futur métro grand paris
- proximité des commerces
- garage

N'attendez pas pour me contacter et organiser une visite. Consoeurs, confrères, je suis ouvert à l'inter-cabinet : si vous avez des acquéreurs, n'hésitez pas à me contacter également.

Honoraires d'agence à la charge du vendeur.
Information d'affichage énergétique sur ce bien : classe ENERGIE G indice 601 et classe CLIMAT G indice 151. Les informations sur les risques auxquels ce bien est exposé, y compris l'obligation légale de débroussaillement, sont disponibles sur le site Géorisques : http://www.georisques.gouv.fr.
La présente annonce immobilière a été rédigée sous la responsabilité éditoriale de Mme Charlotte Cataldo mandataire indépendant en immobilier (sans détention de fonds), agent commercial de la SAS I@D France immatriculé au RSAC de Nanterre sous le numéro 824407449, titulaire de la carte de démarchage immobilier pour le compte de la société I@D France SAS.Informations LOI ALUR : Honoraires charge vendeur. (gedeon_6727_32807042)
Voir plus

Référence: 1964039
Honoraires à la charge du vendeur.
Barème des honoraires
DPE
A
B
C
D
E
F
G
GES
A
B
C
D
E
F
G
Photo 1 - Maison à NANTERRE
Photo 1
Photo 2 - Maison à NANTERRE
Photo 2
Photo 3 - Maison à NANTERRE
Photo 3
Photo 4 - Maison à NANTERRE
Photo 4
Photo 5 - Maison à NANTERRE
Photo 5
Photo 6 - Maison à NANTERRE
Photo 6
Photo 7 - Maison à NANTERRE
Photo 7
Photo 8 - Maison à NANTERRE
Photo 8
Photo 9 - Maison à NANTERRE
Photo 9
Géorisques

Les informations sur les risques auxquels ce bien est exposé sont disponibles sur le site Géorisques : www.georisques.gouv.fr

Ce site est protégé par hCaptcha Politique de confidentialité et Conditions d’utilisation s’appliquent.

En poursuivant votre navigation sans modifier vos paramètres, vous acceptez l'utilisation de cookies susceptibles de réaliser des statistiques de visite. Cliquez ici pour plus d'informations