Bénéficiez des services de nos partenaires locaux soigneusement sélectionnés
pour vous accompagner dans votre parcours d'achat immobilier

Appartement 124 m² à Vienne

— Vienne 38200 —
139 000 €
124 m²
6 pièces

Nos partenaires locaux
Iad France - Cléa Marmonnier vous propose : * Fort potentiel * Grand appartement familial 124 m² *

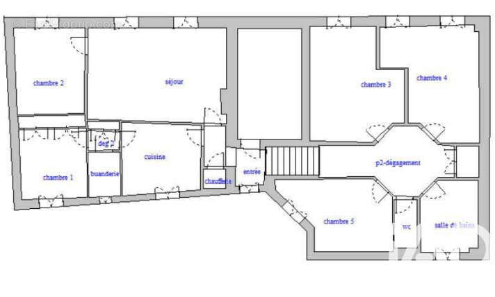
À deux pas du centre-ville de Vienne dans un immeuble ancien, découvrez ce spacieux appartement de 124 m², situé au 2e étage d'une petite copropriété.

Cet appartement se distingue par son potentiel exceptionnel pour un projet familial et offre de multiples possibilités.

L'appartement est actuellement composé de son côté droit par une entrée, un séjour lumineux, une cuisine séparée, une pièce d'eau et deux chambres.

Du coté gauche, un vaste espace pouvant devenir une pièce de vie, 3 chambres, une salle de bain et un sanitaire indépendant.

Au total, l'appartement dispose de 5 chambres, avec de nombreuses possibilité d'aménagement selon vos besoins.

Côté technique :
Menuiseries PVC double vitrage bois - Volets roulants manuel - Chaudière gaz récente

De plus, le logement dispose de 2 caves privatives.

Aménagement modulable selon vos projets.

* A VENIR DÉCOUVRIR SANS TARDER *

La presente annonce immobiliere vise 4 lots situés dans une copropriété de 23 lots au total et ne faisant l'objet d'aucune procédure en cours citée à l'article L. 721-1 du code de la construction et de l'habitation. Montant moyen mensuel de charges déclaré par le vendeur : 100¤ par mois (soit 1200 ¤ annuel). Honoraires d'agence à la charge du vendeur.
Information d'affichage énergétique sur ce bien : classe ENERGIE D indice 185 et classe CLIMAT D indice 40. Les informations sur les risques auxquels ce bien est exposé, y compris l'obligation légale de débroussaillement, sont disponibles sur le site Géorisques : http://www.georisques.gouv.fr.
La présente annonce immobilière a été rédigée sous la responsabilité éditoriale de Mme Cléa Marmonnier mandataire indépendant en immobilier (sans détention de fonds), agent commercial de la SAS I@D France immatriculé au RSAC de Saint Etienne sous le numéro 984629832, titulaire de la carte de démarchage immobilier pour le compte de la société I@D France SAS.Informations LOI ALUR : Soumis au régime de copropriété. Nombre de lots : 23. Quote part annuelle(moyenne) : 1200 euros. Honoraires charge vendeur. (gedeon_6727_32807045)
Voir plus

Référence: 1964065
Bien en copropriété. Nombre de lots : 23. Charges de copropriété : 1200 €.
Honoraires à la charge du vendeur.
Barème des honoraires
DPE
A
B
C
D
E
F
G
GES
A
B
C
D
E
F
G
Photo 1 - Appartement à VIENNE
Photo 1
Photo 2 - Appartement à VIENNE
Photo 2
Photo 3 - Appartement à VIENNE
Photo 3
Photo 4 - Appartement à VIENNE
Photo 4
Photo 5 - Appartement à VIENNE
Photo 5
Photo 6 - Appartement à VIENNE
Photo 6
Photo 7 - Appartement à VIENNE
Photo 7
Photo 8 - Appartement à VIENNE
Photo 8
Photo 9 - Appartement à VIENNE
Photo 9
Géorisques

Les informations sur les risques auxquels ce bien est exposé sont disponibles sur le site Géorisques : www.georisques.gouv.fr

Ce site est protégé par hCaptcha Politique de confidentialité et Conditions d’utilisation s’appliquent.

En poursuivant votre navigation sans modifier vos paramètres, vous acceptez l'utilisation de cookies susceptibles de réaliser des statistiques de visite. Cliquez ici pour plus d'informations