Bénéficiez des services de nos partenaires locaux soigneusement sélectionnés
pour vous accompagner dans votre parcours d'achat immobilier

Appartement 49 m² à Clichy

— Clichy 92110 —
392 000 €
49 m²
2 pièces
parkingbalcon/terrasseascenseur

Nos partenaires locaux
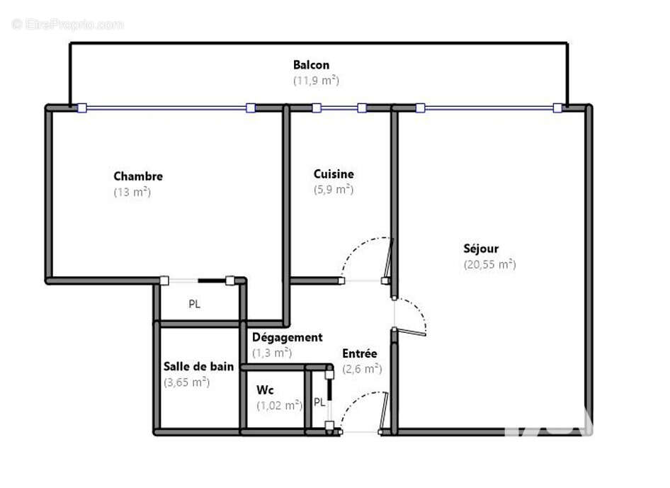
Iad France - Stéphanie BASILLE vous propose : Belle opportunité : T2 avec Balcon, Box et Cave - Vendu loué - Proche de la Ligne 14Au sein d'une résidence bien entretenue et sécurisée, cet appartement se compose : - d'une entrée, - d'un séjour donnant sur un balcon,- d'une cuisine séparée, - d'une chambre, - d'une salle de bain, - d'un WC et d'un dégagement. - Un box et une cave complètent ce bien. Idéalement situé, proche transports, métro ligne 14,13 et du train ligne L, à 10 minutes en transport de Saint-Lazare. De nombreux commences de proximités. Vendu avec un locataire déjà en place dont le bail se termine en juillet 2027, il offre un placement immédiat au sein d'une ville active. À découvrir rapidement. La presente annonce immobiliere vise 3 lots situés dans une copropriété de 243 lots au total et ne faisant l'objet d'aucune procédure en cours citée à l'article L. 721-1 du code de la construction et de l'habitation. Montant moyen mensuel de charges déclaré par le vendeur : 206.67¤ par mois (soit 2480 ¤ annuel). Honoraires d'agence à la charge du vendeur. Information d'affichage énergétique sur ce bien : classe ENERGIE D indice 186 et classe CLIMAT D indice 35. Les informations sur les risques auxquels ce bien est exposé, y compris l'obligation légale de débroussaillement, sont disponibles sur le site Géorisques : http://www.georisques.gouv.fr.La présente annonce immobilière a été rédigée sous la responsabilité éditoriale de Mme Stéphanie BASILLE mandataire indépendant en immobilier (sans détention de fonds), agent commercial de la SAS I@D France immatriculé au RSAC de nanterre sous le numéro 878479583, titulaire de la carte de démarchage immobilier pour le compte de la société I@D France SAS.Informations LOI ALUR : Soumis au régime de copropriété. Nombre de lots : 243. Quote part annuelle(moyenne) : 2480 euros. Honoraires charge vendeur. (gedeon_6727_32817699)
Voir plus

Référence: 1957957
Bien en copropriété. Nombre de lots : 243. Charges de copropriété : 2480 €.
Honoraires à la charge du vendeur.
Barème des honoraires
DPE
A
B
C
D
E
F
G
GES
A
B
C
D
E
F
G
Photo 1 - Appartement à CLICHY
Photo 1
Photo 2 - Appartement à CLICHY
Photo 2
Photo 3 - Appartement à CLICHY
Photo 3
Photo 4 - Appartement à CLICHY
Photo 4
Photo 5 - Appartement à CLICHY
Photo 5
Photo 6 - Appartement à CLICHY
Photo 6
Photo 7 - Appartement à CLICHY
Photo 7
Photo 8 - Appartement à CLICHY
Photo 8
Géorisques

Les informations sur les risques auxquels ce bien est exposé sont disponibles sur le site Géorisques : www.georisques.gouv.fr

Ce site est protégé par hCaptcha Politique de confidentialité et Conditions d’utilisation s’appliquent.

En poursuivant votre navigation sans modifier vos paramètres, vous acceptez l'utilisation de cookies susceptibles de réaliser des statistiques de visite. Cliquez ici pour plus d'informations