Bénéficiez des services de nos partenaires locaux soigneusement sélectionnés
pour vous accompagner dans votre parcours d'achat immobilier

Appartement 74 m² à Creteil

— Creteil 94000 —
339 000 €
74 m²
3 pièces
balcon/terrasseascenseur

Nos partenaires locaux
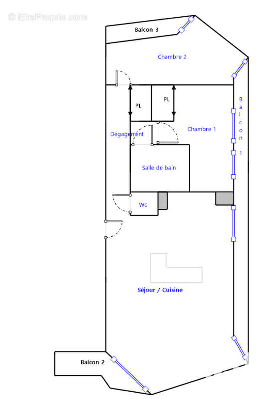
Iad France - Marie Barbin vous propose : RARE Au dernier étage, face au lac : un bien RARE. Idéalement situé à Créteil, à deux pas du lac, des transports et des commerces, ce 3 pièces entièrement rénové vous offre un cadre de vie aussi pratique qu'agréable. Vous serez immédiatement séduit par sa pièce de vie lumineuse avec cuisine ouverte, offrant un espace convivial et moderne, prolongé par un balcon avec vue sur le lac. L'appartement se compose d'une entrée, de deux chambres, d'une salle de bains et de WC séparés. Rénové avec soin il y a deux ans, il allie confort, fonctionnalité et belles prestations (double vitrage, consommation mensuelle 40 ¤ de chauffage collectif).Une cave et un box avec un LOCAL complètent ce bien. Un appartement où il fait bon vivre, à découvrir sans tarder. Honoraires d'agence à la charge du vendeur. Information d'affichage énergétique sur ce bien : classe ENERGIE E indice 252 et classe CLIMAT C indice 20. Les informations sur les risques auxquels ce bien est exposé, y compris l'obligation légale de débroussaillement, sont disponibles sur le site Géorisques : http://www.georisques.gouv.fr.La présente annonce immobilière a été rédigée sous la responsabilité éditoriale de Mme Marie Barbin mandataire indépendant en immobilier (sans détention de fonds), agent commercial de la SAS I@D France immatriculé au RSAC de CRETEIL sous le numéro 899953327, titulaire de la carte de démarchage immobilier pour le compte de la société I@D France SAS.Informations LOI ALUR : Honoraires charge vendeur. (gedeon_6727_32832989)
Voir plus

Référence: 1967941
Honoraires à la charge du vendeur.
Barème des honoraires
DPE
A
B
C
D
E
F
G
GES
A
B
C
D
E
F
G
Photo 1 - Appartement à CRETEIL
Photo 1
Photo 2 - Appartement à CRETEIL
Photo 2
Photo 3 - Appartement à CRETEIL
Photo 3
Photo 4 - Appartement à CRETEIL
Photo 4
Photo 5 - Appartement à CRETEIL
Photo 5
Photo 6 - Appartement à CRETEIL
Photo 6
Photo 7 - Appartement à CRETEIL
Photo 7
Photo 8 - Appartement à CRETEIL
Photo 8
Photo 9 - Appartement à CRETEIL
Photo 9
Géorisques

Les informations sur les risques auxquels ce bien est exposé sont disponibles sur le site Géorisques : www.georisques.gouv.fr

Ce site est protégé par hCaptcha Politique de confidentialité et Conditions d’utilisation s’appliquent.

En poursuivant votre navigation sans modifier vos paramètres, vous acceptez l'utilisation de cookies susceptibles de réaliser des statistiques de visite. Cliquez ici pour plus d'informations