Appartement 81 m² à Baillargues

— Baillargues 34670 —
409 000 €
81 m²
3 pièces
parkingbalcon/terrasseascenseur

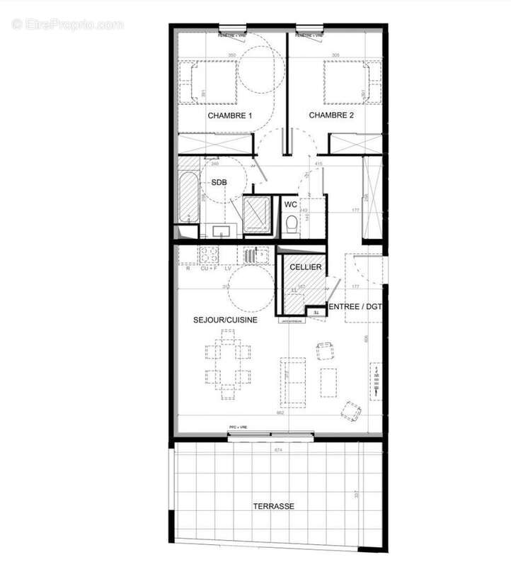
Iad France - Penelope Stoker ([Coordonnées masquées]) vous propose : Appartement T3 avec terrasse et places de parking - résidence de standing à BaillarguesÀ Baillargues, commune recherchée aux portes de Montpellier, découvrez cet appartement T3 situé au deuxième étage, au sein d'un environnement agréable à proximité du centre du village, des commerces, des écoles et de la gare TER permettant de rejoindre Montpellier rapidement. D'une surface de 80,5 m² environ habitables, l'appartement propose une belle pièce de vie avec séjour et cuisine ouverte de 32 m² environ, offrant un espace lumineux et convivial. Le séjour s'ouvre sur une terrasse de 21,9 m² environ exposée sud-ouest, idéale pour profiter pleinement de l'ensoleillement et des fins de journée. La partie nuit se compose de : Deux chambres, Une salle de bains, Un WC indépendant. Un cellier ainsi qu'un dégagement complètent l'agencement et apportent un confort supplémentaire au quotidien. Le bien est vendu avec deux places de parking sécurisées, un véritable atout pour le stationnement. Un appartement idéal pour une résidence principale ou un investissement, dans un cadre de vie recherché à quelques minutes de Montpellier. Pour plus de renseignements, n'hésitez pas à me contacter. Honoraires d'agence à la charge du vendeur. Bien non soumis au DPE. Les informations sur les risques auxquels ce bien est exposé sont disponibles sur le site Géorisques : www.georisques.gouv.fr. La présente annonce immobilière a été rédigée sous la responsabilité éditoriale de Mme Penelope Stoker EI (ID 83102), mandataire indépendant en immobilier (sans détention de fonds), agent commercial de la SAS I@D France immatriculé au RSAC de Paris sous le numéro 930194964, titulaire de la carte de démarchage immobilier pour le compte de la société I@D France SAS. Retrouvez tous nos biens sur notre site internet. www.iadfrance.fr.Informations LOI ALUR : Honoraires charge vendeur. (gedeon_6727_32859505)
Voir plus

Référence: 1903897-19
Honoraires à la charge du vendeur.
Barème des honoraires
Photo 1 - Appartement à BAILLARGUES
Photo 1
Photo 2 - Appartement à BAILLARGUES
Photo 2
Photo 3 - Appartement à BAILLARGUES
Photo 3
Photo 4 - Appartement à BAILLARGUES
Photo 4
Géorisques

Les informations sur les risques auxquels ce bien est exposé sont disponibles sur le site Géorisques : www.georisques.gouv.fr

Ce site est protégé par hCaptcha Politique de confidentialité et Conditions d’utilisation s’appliquent.

En poursuivant votre navigation sans modifier vos paramètres, vous acceptez l'utilisation de cookies susceptibles de réaliser des statistiques de visite. Cliquez ici pour plus d'informations