Appartement 79 m² à Uzes

— Uzes 30700 —
465 000 €
79 m²
3 pièces
parkingbalcon/terrasseascenseur

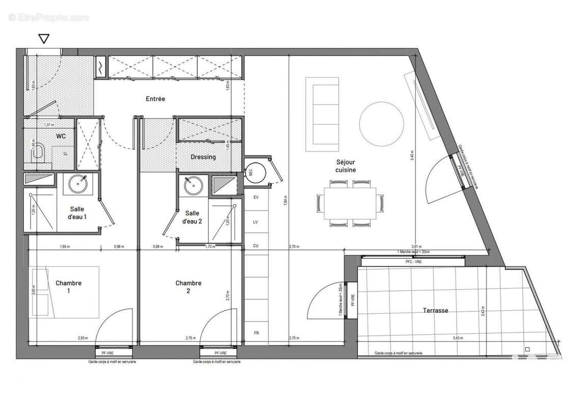
Iad France - Penelope Stoker ([Coordonnées masquées]) vous propose : Appartement T3 avec terrasse et parking à UzèsSitué au sein d'une résidence de standing à Uzès, cet appartement T3 d'une surface habitable de 79,2 m² environ offre un cadre de vie confortable et lumineux. L'appartement se compose d'une agréable pièce de vie avec séjour et cuisine ouverte de 36,3 m² environ, donnant accès à une terrasse de 11,7 m² environ, idéale pour profiter des beaux jours. L'espace nuit comprend : Une chambre avec dressing et salle d'eau privative, Une chambre, Une salle d'eau, Un WC indépendant. Situé au premier étage de la résidence, l'appartement bénéficie d'une exposition sud-ouest, assurant une belle luminosité. Une place de parking est incluse avec le bien. Le bien est situé à proximité des commerces, des commodités et du centre historique d'Uzès. Pour plus d'informations, merci de me contacter. Honoraires d'agence à la charge du vendeur. Bien non soumis au DPE. Les informations sur les risques auxquels ce bien est exposé sont disponibles sur le site Géorisques : www.georisques.gouv.fr. La présente annonce immobilière a été rédigée sous la responsabilité éditoriale de Mme Penelope Stoker EI (ID 83102), mandataire indépendant en immobilier (sans détention de fonds), agent commercial de la SAS I@D France immatriculé au RSAC de Paris sous le numéro 930194964, titulaire de la carte de démarchage immobilier pour le compte de la société I@D France SAS. Retrouvez tous nos biens sur notre site internet. www.iadfrance.fr.Informations LOI ALUR : Honoraires charge vendeur. (gedeon_6727_32862514)
Voir plus

Référence: 1906038-19
Honoraires à la charge du vendeur.
Barème des honoraires
Photo 1 - Appartement à UZES
Photo 1
Photo 2 - Appartement à UZES
Photo 2
Photo 3 - Appartement à UZES
Photo 3
Photo 4 - Appartement à UZES
Photo 4
Photo 5 - Appartement à UZES
Photo 5
Photo 6 - Appartement à UZES
Photo 6
Photo 7 - Appartement à UZES
Photo 7
Géorisques

Les informations sur les risques auxquels ce bien est exposé sont disponibles sur le site Géorisques : www.georisques.gouv.fr

Ce site est protégé par hCaptcha Politique de confidentialité et Conditions d’utilisation s’appliquent.

En poursuivant votre navigation sans modifier vos paramètres, vous acceptez l'utilisation de cookies susceptibles de réaliser des statistiques de visite. Cliquez ici pour plus d'informations