Appartement 48 m² à Uzes

— Uzes 30700 —
265 000 €
48 m²
2 pièces

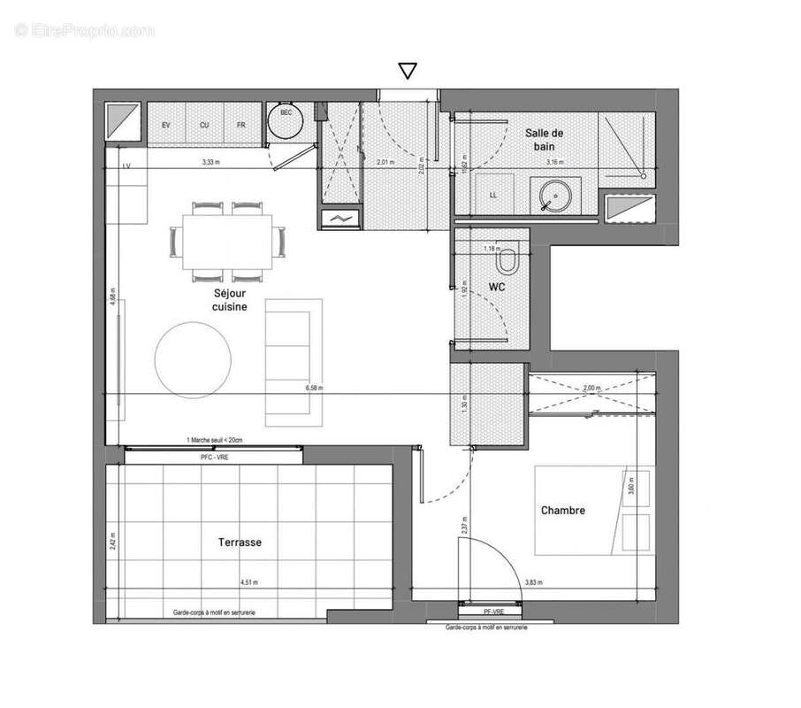
Iad France - Penelope Stoker ([Coordonnées masquées]) vous propose : Appartement T2 avec terrasse dans résidence de standing à UzèsSitué à Uzès, au sein d'une résidence de standing sécurisée, découvrez ce bel appartement T2 de 48,3 m² environ, situé au 1er étage, offrant un cadre de vie confortable et lumineux. L'appartement se compose d'une pièce de vie avec cuisine ouverte de 29,7 m² environ, donnant accès à une terrasse de 10,8 m² environ, exposée sud / ouest, idéale pour profiter des beaux jours. L'espace nuit comprend une chambre de 11,6 m² environ, une salle de bain ainsi que des WC séparés, offrant une distribution fonctionnelle et agréable. Implantée dans un environnement calme, la résidence bénéficie d'une situation privilégiée à Uzès, à proximité des commodités et du centre historique. Ce bien constitue une opportunité idéale pour une résidence principale, un pied-à-terre ou un investissement locatif. Il est vendu avec une place de parking sécurisée. Pour plus d'informations, merci de me contacter. Honoraires d'agence à la charge du vendeur. Bien non soumis au DPE. Les informations sur les risques auxquels ce bien est exposé sont disponibles sur le site Géorisques : www.georisques.gouv.fr. La présente annonce immobilière a été rédigée sous la responsabilité éditoriale de Mme Penelope Stoker EI (ID 83102), mandataire indépendant en immobilier (sans détention de fonds), agent commercial de la SAS I@D France immatriculé au RSAC de Paris sous le numéro 930194964, titulaire de la carte de démarchage immobilier pour le compte de la société I@D France SAS. Retrouvez tous nos biens sur notre site internet. www.iadfrance.fr.Informations LOI ALUR : Honoraires charge vendeur. (gedeon_6727_32862519)
Voir plus

Référence: 1906038-7
Honoraires à la charge du vendeur.
Barème des honoraires
Photo 1 - Appartement à UZES
Photo 1
Photo 2 - Appartement à UZES
Photo 2
Photo 3 - Appartement à UZES
Photo 3
Photo 4 - Appartement à UZES
Photo 4
Photo 5 - Appartement à UZES
Photo 5
Photo 6 - Appartement à UZES
Photo 6
Photo 7 - Appartement à UZES
Photo 7
Géorisques

Les informations sur les risques auxquels ce bien est exposé sont disponibles sur le site Géorisques : www.georisques.gouv.fr

Ce site est protégé par hCaptcha Politique de confidentialité et Conditions d’utilisation s’appliquent.

En poursuivant votre navigation sans modifier vos paramètres, vous acceptez l'utilisation de cookies susceptibles de réaliser des statistiques de visite. Cliquez ici pour plus d'informations