Terrain 2000 m² à Gensac

— Gensac 82120 —
48 000 €
2 000 m²

Iad France - Alexandre Gilles vous propose : Terrain constructible avec projet validé - Gensac (82)
-Situé sur la commune de Gensac, découvrez ce terrain constructible d'environ 2 000 m², offrant un cadre agréable pour concrétiser votre projet de construction.
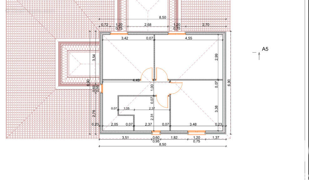
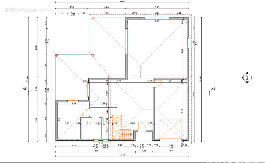
-Ce terrain bénéficie d'un projet déjà bien avancé, avec un permis de construire accepté et les plans de la future maison déjà réalisés. Un réel gain de temps pour les acquéreurs souhaitant démarrer rapidement leur projet.
-Sur place, le plateau de construction est déjà réalisé et les fondations sont en place, prêtes à accueillir la maison. Il ne reste plus qu'à poursuivre la construction.
-Les réseaux sont en bordure de route, facilitant ainsi les raccordements.
Une opportunité idéale pour un projet de construction rapide dans un environnement calme.
-Pour plus d'informations ou organiser une visite, contactez-moi.

Honoraires d'agence à la charge du vendeur.
Bien non soumis au DPE. Les informations sur les risques auxquels ce bien est exposé, y compris l'obligation légale de débroussaillement, sont disponibles sur le site Géorisques : http://www.georisques.gouv.fr.
La présente annonce immobilière a été rédigée sous la responsabilité éditoriale de M Alexandre Gilles mandataire indépendant en immobilier (sans détention de fonds), agent commercial de la SAS I@D France immatriculé au RSAC de MONTAUBAN sous le numéro 511037145, titulaire de la carte de démarchage immobilier pour le compte de la société I@D France SAS.Informations LOI ALUR : Honoraires charge vendeur. (gedeon_6727_32863470)
Voir plus

Référence: 1973221
Honoraires à la charge du vendeur.
Barème des honoraires
Photo 1 - Terrain à GENSAC
Photo 1
Photo 2 - Terrain à GENSAC
Photo 2
Photo 3 - Terrain à GENSAC
Photo 3
Photo 4 - Terrain à GENSAC
Photo 4
Photo 5 - Terrain à GENSAC
Photo 5
Géorisques

Les informations sur les risques auxquels ce bien est exposé sont disponibles sur le site Géorisques : www.georisques.gouv.fr

Ce site est protégé par hCaptcha Politique de confidentialité et Conditions d’utilisation s’appliquent.