Appartement 88 m² à Castelnau-Le-Lez

— Castelnau-Le-Lez 34170 —
690 000 €
88 m²
3 pièces
parkingbalcon/terrasseascenseur

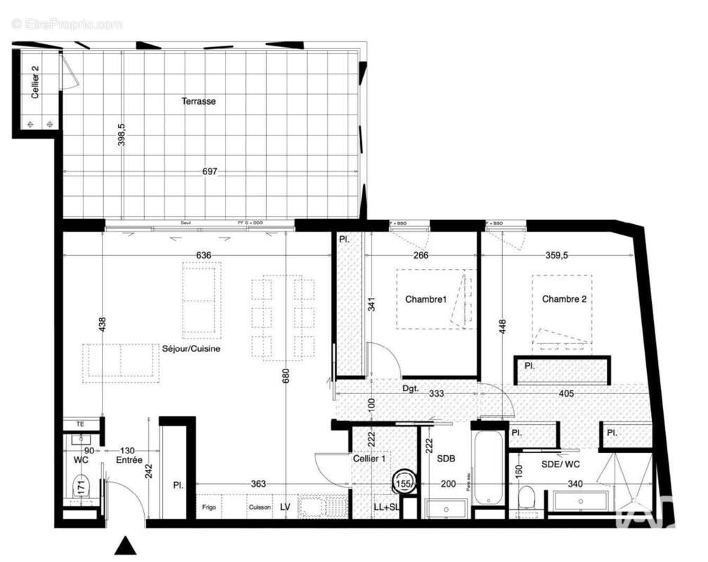
Iad France - Penelope Stoker ([Coordonnées masquées]) vous propose : Appartement T3 de standing avec terrasse et deux places de parking au centre de Castelneau-le-Lez Situé en plein cOEur de Castelnau-le-Lez, à proximité immédiate des commerces, du tramway et de toutes les commodités, découvrez cet élégant appartement T3 situé au premier étage d'une copropriété intimiste sécurisée. D'une surface habitable de 88 m² environ, l'appartement offre une distribution harmonieuse avec un séjour / cuisine de 36 m² environ, lumineux et ouvert sur une spacieuse terrasse de 29 m² environ, idéale pour profiter d'un véritable espace extérieur. L'espace nuit se compose : d'une chambre de 11 m² environ avec placards, une salle de bains, une suite de 18 m² environ avec placards et salle d'eau / WC privative, L'appartement dispose également de : un WC indépendantun cellierplusieurs espaces de rangement. Deux places de parking extérieures complètent ce bien. Au sein d'une résidence à taille humaine de seulement neuf lots, cet appartement bénéficie d'un emplacement particulièrement recherché dans le centre de Castelnau-le-Lez, à quelques minutes seulement de Montpellier. Pour plus de renseignements, merci de me contacter. Plan non contractuel - susceptibles de modifications. Honoraires d'agence à la charge du vendeur. Bien non soumis au DPE. Les informations sur les risques auxquels ce bien est exposé sont disponibles sur le site Géorisques : www.georisques.gouv.fr. La présente annonce immobilière a été rédigée sous la responsabilité éditoriale de Mme Penelope Stoker EI (ID 83102), mandataire indépendant en immobilier (sans détention de fonds), agent commercial de la SAS I@D France immatriculé au RSAC de Paris sous le numéro 930194964, titulaire de la carte de démarchage immobilier pour le compte de la société I@D France SAS. Retrouvez tous nos biens sur notre site internet. www.iadfrance.fr.Informations LOI ALUR : Honoraires charge vendeur. (gedeon_6727_32869078)
Voir plus

Référence: 1902788-1
Honoraires à la charge du vendeur.
Barème des honoraires
Photo 1 - Appartement à CASTELNAU-LE-LEZ
Photo 1
Photo 2 - Appartement à CASTELNAU-LE-LEZ
Photo 2
Photo 3 - Appartement à CASTELNAU-LE-LEZ
Photo 3
Géorisques

Les informations sur les risques auxquels ce bien est exposé sont disponibles sur le site Géorisques : www.georisques.gouv.fr

Ce site est protégé par hCaptcha Politique de confidentialité et Conditions d’utilisation s’appliquent.

En poursuivant votre navigation sans modifier vos paramètres, vous acceptez l'utilisation de cookies susceptibles de réaliser des statistiques de visite. Cliquez ici pour plus d'informations