Bénéficiez des services de nos partenaires locaux soigneusement sélectionnés
pour vous accompagner dans votre parcours d'achat immobilier

Appartement 92 m² à Ploumagoar

— Ploumagoar 22970 —
139 000 €
92 m²
4 pièces

Nos partenaires locaux
Iad France - Guillaume Huet vous propose : * PAS DE LOCATAIRE * PARKING ET CAVE * DERNIER ETAGE * PROCHE GARE ET COMMERCES *

A découvrir : Appartement T4 au dernier étage avec cave, à proximité des commodités et de la gare TGV de Guingamp.

Vendu libre de toute occupation.

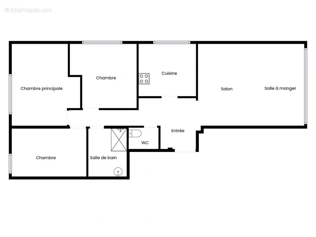
APPARTEMENT de 92 m² :
Entrée donnant sur un séjour très lumineux, cuisine, couloir desservant 3 chambres, 1 salle de douche et un WC séparé.
Exposition Est / Ouest
Chauffage Individuel : Chaudière Gaz (ramonage effectué en décembre 2025)

COPROPRIETE :
Copropriété de 20 lots dont 11 appartements.
Deux étages.
Grand parking devant l'immeuble.
Fibre

SURFACES en m² :
Séjour : 26,53
Cuisine : 8,68
Chambre 1 : 11,87
Chambre 2 : 15,46
Chambre 3 : 11,05
Salle de douche : 5,37
WC : 1,86
Entrée et Couloir : 11,24

DIAGNOSTICS :
Pas de plomb ni d'amiante.
DPE E
Parasitaire : Néant
Anomalies mineures sur l'électricité et le gaz
Audit énergétique en cours de réalisation.
Taxe foncière : 880¤

La presente annonce immobiliere vise 2 lots situés dans une copropriété de 20 lots au total et ne faisant l'objet d'aucune procédure en cours citée à l'article L. 721-1 du code de la construction et de l'habitation. Montant moyen mensuel de charges déclaré par le vendeur : 111.67¤ par mois (soit 1340 ¤ annuel). Honoraires d'agence à la charge du vendeur.
Information d'affichage énergétique sur ce bien : classe ENERGIE E indice 260 et classe CLIMAT E indice 55. Les informations sur les risques auxquels ce bien est exposé, y compris l'obligation légale de débroussaillement, sont disponibles sur le site Géorisques : http://www.georisques.gouv.fr.
La présente annonce immobilière a été rédigée sous la responsabilité éditoriale de M Guillaume Huet mandataire indépendant en immobilier (sans détention de fonds), agent commercial de la SAS I@D France immatriculé au RSAC de Saint-Brieuc sous le numéro 811014034, titulaire de la carte de démarchage immobilier pour le compte de la société I@D France SAS.Informations LOI ALUR : Soumis au régime de copropriété. Nombre de lots : 20. Quote part annuelle(moyenne) : 1340 euros. Honoraires charge vendeur. (gedeon_6727_32927202)
Voir plus

Référence: 1978161
Bien en copropriété. Nombre de lots : 20. Charges de copropriété : 1340 €.
Honoraires à la charge du vendeur.
Barème des honoraires
DPE
A
B
C
D
E
F
G
GES
A
B
C
D
E
F
G
Photo 1 - Appartement à PLOUMAGOAR
Photo 1
Photo 2 - Appartement à PLOUMAGOAR
Photo 2
Photo 3 - Appartement à PLOUMAGOAR
Photo 3
Photo 4 - Appartement à PLOUMAGOAR
Photo 4
Photo 5 - Appartement à PLOUMAGOAR
Photo 5
Photo 6 - Appartement à PLOUMAGOAR
Photo 6
Photo 7 - Appartement à PLOUMAGOAR
Photo 7
Photo 8 - Appartement à PLOUMAGOAR
Photo 8
Photo 9 - Appartement à PLOUMAGOAR
Photo 9
Géorisques

Les informations sur les risques auxquels ce bien est exposé sont disponibles sur le site Géorisques : www.georisques.gouv.fr

Ce site est protégé par hCaptcha Politique de confidentialité et Conditions d’utilisation s’appliquent.