Bénéficiez des services de nos partenaires locaux soigneusement sélectionnés
pour vous accompagner dans votre parcours d'achat immobilier

Appartement 42 m² à Vitry-Sur-Seine

— Vitry-Sur-Seine 94400 —
245 000 €
42 m²
2 pièces
balcon/terrasseascenseur

Nos partenaires locaux
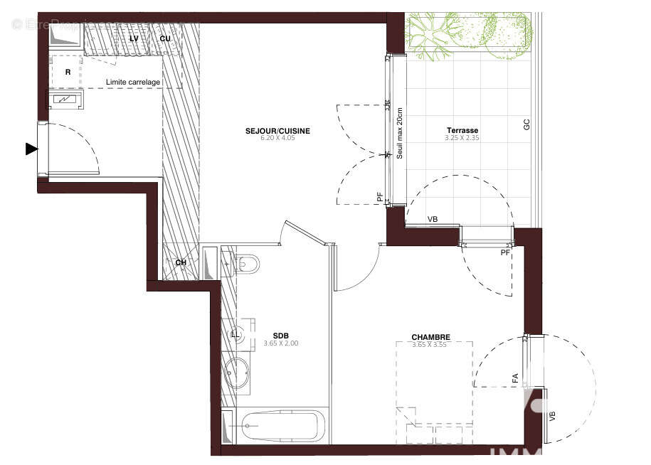
Iad France - Carlos Moreno vous propose : Proche de Paris, situé sur le quartier des malassis dans une petite résidence récente de 2025 à dix minutes du métro PVC Villejuif ligne 7 et à sept minutes du tram T9 station Beethoven. Bel appartement deux pièces avec terrasse bénéficiant d'une belle luminosité. Il offre une grande pièce de vie avec cuisine ouverte sur le séjour donnant accès sur la terrasse de 9 m². une grande chambre de 13 m², salle de bain avec wc. Logement bien agencé sans perte de place, immeuble sécurisé avec ascenseur, chauffage individuel au gaz. Le logement est vendu entièrement équipé. Il est donc idéal pour s'installer rapidement, pour un placement locatif en meublé ou un pied à terre. N'hésitez pas à me contacter pour plus d'informations. Professionnels de l'immobilier, ce bien est ouvert à un inter-cabinet. La presente annonce immobiliere vise 1 lot situé dans une copropriété de 100 lots au total et ne faisant l'objet d'aucune procédure en cours citée à l'article L. 721-1 du code de la construction et de l'habitation. Montant moyen mensuel de charges déclaré par le vendeur : 110¤ par mois (soit 1320 ¤ annuel). Honoraires d'agence à la charge du vendeur. Information d'affichage énergétique sur ce bien : classe ENERGIE C indice 80 et classe CLIMAT C indice 16. Les informations sur les risques auxquels ce bien est exposé, y compris l'obligation légale de débroussaillement, sont disponibles sur le site Géorisques : http://www.georisques.gouv.fr.La présente annonce immobilière a été rédigée sous la responsabilité éditoriale de M Carlos Moreno mandataire indépendant en immobilier (sans détention de fonds), agent commercial de la SAS I@D France immatriculé au RSAC de CRETEIL sous le numéro 439149410, titulaire de la carte de démarchage immobilier pour le compte de la société I@D France SAS.Informations LOI ALUR : Soumis au régime de copropriété. Nombre de lots : 100. Quote part annuelle(moyenne) : 1320 euros. Honoraires charge vendeur. (gedeon_6727_32984165)
Voir plus

Référence: 1985088
Bien en copropriété. Nombre de lots : 100. Charges de copropriété : 1320 €.
Honoraires à la charge du vendeur.
Barème des honoraires
DPE
A
B
C
D
E
F
G
GES
A
B
C
D
E
F
G
Photo 1 - Appartement à VITRY-SUR-SEINE
Photo 1
Photo 2 - Appartement à VITRY-SUR-SEINE
Photo 2
Photo 3 - Appartement à VITRY-SUR-SEINE
Photo 3
Photo 4 - Appartement à VITRY-SUR-SEINE
Photo 4
Photo 5 - Appartement à VITRY-SUR-SEINE
Photo 5
Photo 6 - Appartement à VITRY-SUR-SEINE
Photo 6
Photo 7 - Appartement à VITRY-SUR-SEINE
Photo 7
Photo 8 - Appartement à VITRY-SUR-SEINE
Photo 8
Géorisques

Les informations sur les risques auxquels ce bien est exposé sont disponibles sur le site Géorisques : www.georisques.gouv.fr

Ce site est protégé par hCaptcha Politique de confidentialité et Conditions d’utilisation s’appliquent.

En poursuivant votre navigation sans modifier vos paramètres, vous acceptez l'utilisation de cookies susceptibles de réaliser des statistiques de visite. Cliquez ici pour plus d'informations