Bénéficiez des services de nos partenaires locaux soigneusement sélectionnés
pour vous accompagner dans votre parcours d'achat immobilier

Appartement 45 m² à Paris-12e

— Paris-12e 75012 —
435 000 €
45 m²
2 pièces

Nos partenaires locaux
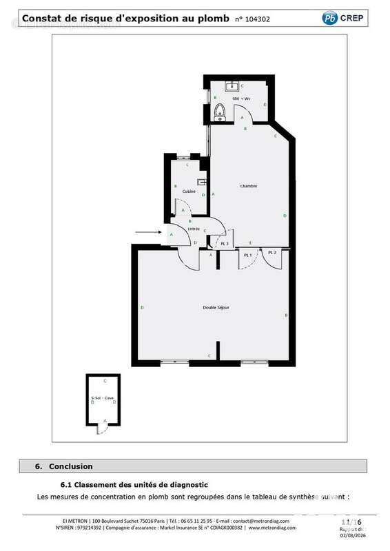
Iad France - Vincent Norbert vous propose : PARIS 12e - DUGOMMIER / DAUMESNILCHARME DE L'ANCIEN - CALME ABSOLU - BELLE LUMINOSITÉ EXCLUSIVITÉ - iad France : Idéalement situé à proximité immédiate de la place Daumesnil et du Parc de Reuilly, au sein d'un très bel immeuble bourgeois de 1910, venez découvrir cet appartement de 45 m², niché au 3e étage, offrant un cadre de vie à la fois paisible et recherché. Dès l'entrée, vous serez séduit par l'atmosphère chaleureuse du lieu, alliant le charme de l'ancien et un agencement parfaitement optimisé. L'appartement bénéficie d'un double séjour de 23 m², offrant un espace de vie confortable et modulable selon vos besoins, avec la possibilité d'aménager facilement une seconde chambre. La cuisine indépendante, aménagée et équipée, dispose d'une plaque à induction, d'un réfrigérateur et d'un lave-vaisselle, le tout bénéficiant d'une fenêtre, apportant luminosité et confort d'utilisation. La chambre principale, spacieuse et agréable, complète ce bien, ainsi qu'une salle de douche avec fenêtre, apportant un véritable confort au quotidien. Donnant entièrement sur cour, cet appartement bénéficie d'un calme rare en plein Paris, tout en conservant une belle luminosité grâce à son étage et à son exposition. Les prestations sont au rendez-vous avec notamment : - Parquet ancien- Double vitrage- Plan sans perte de place- Nombreux rangements- DPE classé D, gage d'un bon confort énergétiqueL'environnement est particulièrement apprécié pour sa qualité de vie, avec les commerces, les transports (métros Dugommier et Daumesnil), ainsi que les espaces verts à proximité immédiate.? Un bien idéal pour une résidence principale, un pied-à-terre ou un investissement patrimonial de qualité.? Pour toute information complémentaire ou organiser une visite : Vincent NORBERT - iad FranceLa presente annonce immobiliere vise 2 lots situés dans une copropriété de 52 lots au total et ne faisant l'objet d'aucune procédure en cours citée à l'article L. 721-1 du code de la construction et de l'habitation. Montant moyen mensuel de charges déclaré par le vendeur : 116.67¤ par mois (soit 1400 ¤ annuel). Honoraires d'agence à la charge du vendeur. Information d'affichage énergétique sur ce bien : classe ENERGIE D indice 205 et classe CLIMAT B indice 8. Les informations sur les risques auxquels ce bien est exposé, y compris l'obligation légale de débroussaillement, sont disponibles sur le site Géorisques : http://www.georisques.gouv.fr.La présente annonce immobilière a été rédigée sous la responsabilité éditoriale de M Vincent Norbert mandataire indépendant en immobilier (sans détention de fonds), agent commercial de la SAS I@D France immatriculé au RSAC de Rouen sous le numéro 831284278, titulaire de la carte de démarchage immobilier pour le compte de la société I@D France SAS.Informations LOI ALUR : Soumis au régime de copropriété. Nombre de lots : 52. Quote part annuelle(moyenne) : 1400 euros. Honoraires charge vendeur. (gedeon_6727_32993829)
Voir plus

Référence: 1986330
Bien en copropriété. Nombre de lots : 52. Charges de copropriété : 1400 €.
Honoraires à la charge du vendeur.
Barème des honoraires
DPE
A
B
C
D
E
F
G
GES
A
B
C
D
E
F
G
Photo 1 - Appartement à PARIS-12E
Photo 1
Photo 2 - Appartement à PARIS-12E
Photo 2
Photo 3 - Appartement à PARIS-12E
Photo 3
Photo 4 - Appartement à PARIS-12E
Photo 4
Photo 5 - Appartement à PARIS-12E
Photo 5
Photo 6 - Appartement à PARIS-12E
Photo 6
Photo 7 - Appartement à PARIS-12E
Photo 7
Photo 8 - Appartement à PARIS-12E
Photo 8
Photo 9 - Appartement à PARIS-12E
Photo 9
Géorisques

Les informations sur les risques auxquels ce bien est exposé sont disponibles sur le site Géorisques : www.georisques.gouv.fr

Ce site est protégé par hCaptcha Politique de confidentialité et Conditions d’utilisation s’appliquent.

En poursuivant votre navigation sans modifier vos paramètres, vous acceptez l'utilisation de cookies susceptibles de réaliser des statistiques de visite. Cliquez ici pour plus d'informations