Bénéficiez des services de nos partenaires locaux soigneusement sélectionnés
pour vous accompagner dans votre parcours d'achat immobilier

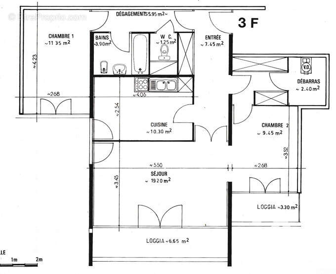
Appartement 75 m² à Vitry-Sur-Seine

— Vitry-Sur-Seine 94400 —
250 000 €
75 m²
3 pièces
parkingascenseur

Nos partenaires locaux
Iad France - Carlos Moreno vous propose : Dans une résidence avec gardien idéalement située, au pied du tram, de la future ligne de métro 15 et des commerces. Agréable trois pièces offrant de beaux volumes et un bel agencement. Il se compose d'une vaste entrée avec placard, cuisine pouvant être ouverte sur le séjour et sa loggia, deux belles chambres dont une avec loggia, salle de bains, wc séparé, dressing et cagibi. Des travaux sont à prévoir lui permettant au final un beau potentiel. La résidence est en parfaite état, les ascenseurs sont neufs et les travaux de rénovations énergétiques vont débuter (ils sont votés et payés). Parking sous-sol privatif et local vélo commun. La presente annonce immobiliere vise 301 lots situés dans une copropriété de 1100 lots au total et ne faisant l'objet d'aucune procédure en cours citée à l'article L. 721-1 du code de la construction et de l'habitation. Montant moyen mensuel de charges déclaré par le vendeur : 370¤ par mois (soit 4440 ¤ annuel). Honoraires d'agence à la charge du vendeur. Information d'affichage énergétique sur ce bien : classe ENERGIE E indice 321 et classe CLIMAT E indice 52. Les informations sur les risques auxquels ce bien est exposé, y compris l'obligation légale de débroussaillement, sont disponibles sur le site Géorisques : http://www.georisques.gouv.fr.La présente annonce immobilière a été rédigée sous la responsabilité éditoriale de M Carlos Moreno mandataire indépendant en immobilier (sans détention de fonds), agent commercial de la SAS I@D France immatriculé au RSAC de CRETEIL sous le numéro 439149410, titulaire de la carte de démarchage immobilier pour le compte de la société I@D France SAS.Informations LOI ALUR : Soumis au régime de copropriété. Nombre de lots : 1100. Quote part annuelle(moyenne) : 4440 euros. Honoraires charge vendeur. (gedeon_6727_32999389)
Voir plus

Référence: 1986941
Bien en copropriété. Nombre de lots : 1100. Charges de copropriété : 4440 €.
Honoraires à la charge du vendeur.
Barème des honoraires
DPE
A
B
C
D
E
F
G
GES
A
B
C
D
E
F
G
Photo 1 - Appartement à VITRY-SUR-SEINE
Photo 1
Photo 2 - Appartement à VITRY-SUR-SEINE
Photo 2
Photo 3 - Appartement à VITRY-SUR-SEINE
Photo 3
Photo 4 - Appartement à VITRY-SUR-SEINE
Photo 4
Photo 5 - Appartement à VITRY-SUR-SEINE
Photo 5
Géorisques

Les informations sur les risques auxquels ce bien est exposé sont disponibles sur le site Géorisques : www.georisques.gouv.fr

Ce site est protégé par hCaptcha Politique de confidentialité et Conditions d’utilisation s’appliquent.

En poursuivant votre navigation sans modifier vos paramètres, vous acceptez l'utilisation de cookies susceptibles de réaliser des statistiques de visite. Cliquez ici pour plus d'informations