Bénéficiez des services de nos partenaires locaux soigneusement sélectionnés
pour vous accompagner dans votre parcours d'achat immobilier

Lyon 7 garibaldi appartement type 4 en etage avec ascenseur 3 chambres balcon a vivre 2 parkings

— Lyon-7e 69007 —
320 000 €
86 m²
4 pièces
parkingbalcon/terrasse

Nos partenaires locaux
EXCLUSIVITE
Lyon 7ᵉ Quartier Garibaldi
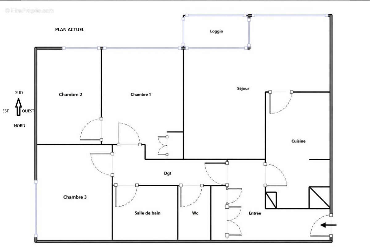
Au pied du métro Ligne D, dans une résidence sécurisée avec piscine et tennis, au 2ᵉ étage sur 12 avec ascenseur, venez découvrir ce spacieux T4 de 86 m2.
Il compraend un hall d'entrée avec grand placard desservant l'espace jour avec une cuisine et un séjour donnant sur un balcon à vivre. On peut ouvrir la cuisine sur le séjour et créer une belle pièce de vie de 35m2 exposée Sud (photo 1).
Un dégagement dessert l'espace nuit bien distinct avec 3 chambres de 10, 12 et 13m2 exposées Est et Sud, une salle de bains, et un wc séparé.
Les sols sont actuellement recouverts de lino (hors pièces d’eau), mais un beau parquet chevrons en excellent état est présent en dessous.
En annexes, il y a une cave en sous-sol et une place de parking extérieure et un grand local vélos. Possibilité d'acheter une 2ème place de parking en sus.
Les charges (300€/mois) comprennent l'eau froide, l'eau chaude, le chauffage (chauffage urbain écologique), le syndic, l'ascenseur, la piscine et le tennis et les deux gardiens.
La piscine et le tennis ont été refaits récemment. La piscine est accessible de juin à septembre sous la surveillance d'un maître nageur et le tennis toute l'année sur inscription.
Cet appartement est lumineux sans vis-à-vis bénéficiant d'une double exposition Sud et Est. Il bénéficie d'une climatisation réversible.
Possibilité professions libérales, médecins.
Emplacement recherché à proximité immédiate :

Métro Ligne D au pied de l’immeuble
Parc Blandan
Commerces de Saint-Louis et Monplaisir

* VISITE VIRTUELLE DISPONIBLE *
Son prix est de 320.000€.
Pour visiter et vous accompagner dans votre projet, contactez Christophe AVON, directeur d'agence au 0[Coordonnées masquées]. Agence Homicca www.homicca.fr
Voir plus

Bien en copropriété. Nombre de lots : 659.
Barème des honoraires
DPE
A
B
C
D
E
F
G
GES
A
B
C
D
E
F
G
Appartement à LYON-7E
Appartement à LYON-7E
Appartement à LYON-7E
Appartement à LYON-7E
Appartement à LYON-7E
Appartement à LYON-7E
Appartement à LYON-7E
Appartement à LYON-7E
Appartement à LYON-7E
Appartement à LYON-7E
Appartement à LYON-7E
Géorisques

Les informations sur les risques auxquels ce bien est exposé sont disponibles sur le site Géorisques : www.georisques.gouv.fr

Ce site est protégé par hCaptcha Politique de confidentialité et Conditions d’utilisation s’appliquent.

En poursuivant votre navigation sans modifier vos paramètres, vous acceptez l'utilisation de cookies susceptibles de réaliser des statistiques de visite. Cliquez ici pour plus d'informations