Bénéficiez des services de nos partenaires locaux soigneusement sélectionnés
pour vous accompagner dans votre parcours d'achat immobilier

Claire c'- exclusivité studio ou 2 pièces

— Paris-12e 75012 —
470 000 €
64 m²
2 pièces

Nos partenaires locaux
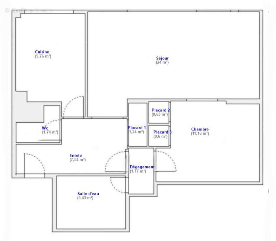
Paris 12e Rue de Charenton - Métro Daumesnil.En exclusivité, Claire C’Immobilier vous propose, dans un immeuble récent de 1970 avec gardien, un appartement de 2 pièces de 63,87 m2, situé au 1er étage avec ascenseur.
Ce bien se compose d’une vaste entrée avec rangements, ouvrant sur un séjour lumineux, exposé sud-ouest, agrémenté de grandes baies vitrées. La cuisine séparée, entièrement aménagée et équipée, offre de belles possibilités d’aménagement.La chambre (en second jour) est accompagnée d’une salle d’eau récemment rénovée, et des toilettes indépendantes complètent ce bien.
Aménagement modulable : possibilité de repenser l’espace en créant une cuisine américaine ouverte sur le séjour et en transformant la cuisine actuelle en chambre indépendante avec une grande fenêtre.
Un appartement calme et baigné de lumière, situé dans un quartier dynamique, bien desservi par les transports. Idéal pour un premier achat ou un très bon bien d'investissment. Une cave en sous-sol complète ce bien.
Possibilité de louer ou d’acquérir un parking ou un box dans l’immeuble.
Visuels non contractuels Home staging virtuel réalisé à titre indicatif grâce à l’IA
Voir plus

Bien en copropriété. Nombre de lots : 153. Charges de copropriété : 2165 €.
Barème des honoraires
DPE
A
B
C
D
E
F
G
GES
A
B
C
D
E
F
G
Appartement à PARIS-12E
Appartement à PARIS-12E
Appartement à PARIS-12E
Appartement à PARIS-12E
Appartement à PARIS-12E
Appartement à PARIS-12E
Appartement à PARIS-12E
Appartement à PARIS-12E
Appartement à PARIS-12E
Appartement à PARIS-12E
Appartement à PARIS-12E
Appartement à PARIS-12E
Géorisques

Les informations sur les risques auxquels ce bien est exposé sont disponibles sur le site Géorisques : www.georisques.gouv.fr

Ce site est protégé par hCaptcha Politique de confidentialité et Conditions d’utilisation s’appliquent.

En poursuivant votre navigation sans modifier vos paramètres, vous acceptez l'utilisation de cookies susceptibles de réaliser des statistiques de visite. Cliquez ici pour plus d'informations