Bénéficiez des services de nos partenaires locaux soigneusement sélectionnés
pour vous accompagner dans votre parcours d'achat immobilier

Rare à la vente - Maison lumineuse de 7 pièces, excellent état avec terrasse, Rue Pauly, Paris 14e

— Paris-14e 75014 —
1 870 000 €
146 m² / 146 m²
7 pièces
balcon/terrassejardin

Nos partenaires locaux
Hosman vous propose à la vente cette charmante maison individuelle située rue Pauly dans le 14ème arrondissement.
D'une surface habitable de 146m2, la maison, lumineuse, moderne et en excellent état, propose un agencement sur 4 niveaux. Le ravalement de la façade a été récemment effectué et l'ensemble de la maison est en excellent état. L'accès à la maison se fait par une cour pavée de 32m2.

Le rez-de-chaussée comprend un séjour spacieux, une salle à manger et une cuisine ouverte et équipée.
En entre-sol, une salle de télévision, une salle technique (buanderie, cellier) et une chambre/bureau. La continuité spatiale et fonctionnelle est assurée entre ces niveaux grâce à une conception adaptée.
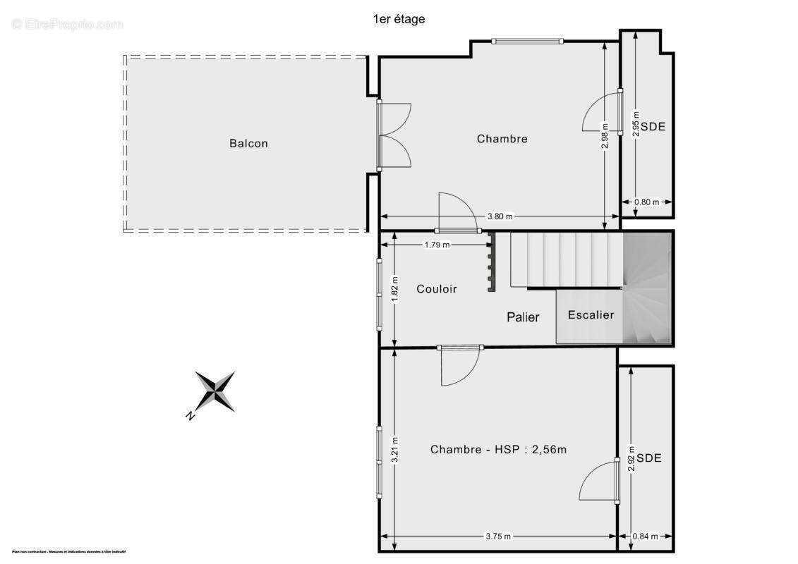
Le premier étage accueille deux chambres donnant chacune sur une salle d'eau. La seconde chambre s'ouvre également sur une terrasse de 10 m².
Au deuxième étage, se trouve la suite parentale donnant sur un grand dressing, une salle de bain comprenant baignoire, grande douche et toilettes séparées.

Les prestations techniques incluent un chauffage et une eau chaude fournis par un système individuel électrique. La maison est également raccordée aux eaux usées. La taxe foncière annuelle est de 2445 €.

La localisation offre plusieurs avantages. En termes de commodités, à proximité des commerces du quartier, des restaurants variés et des infrastructures culturelles telles que le Théâtre de la Cité Internationale. L'accès aux espaces verts est facilité par la proximité du parc Montsouris. Pour l'éducation, des établissements scolaires allant de l'école maternelle au lycée sont accessibles à pied. Les transports en commun sont facilement accessibles avec la station de métro Alésia (ligne 4) à moins de 10 minutes à pied.

Hosman s'efforce de réinventer l'agence immobilière en offrant un service innovant et transparent aux acheteurs et aux vendeurs. Nos frais d'agence sont de 39900 euros fixes à la charge du vendeur.

Si vous êtes un professionnel de l'immobilier (agent, mandataire ou chasseur immobilier), sachez que toutes les annonces Hosman sont ouvertes à la collaboration. N'hésitez pas à nous contacter pour en discuter.
Voir plus

Référence: 28df60
Honoraires à la charge du vendeur.
DPE
A
B
C
D
E
F
G
GES
A
B
C
D
E
F
G
Maison à PARIS-14E
Maison à PARIS-14E
Maison à PARIS-14E
Maison à PARIS-14E
Maison à PARIS-14E
Maison à PARIS-14E
Maison à PARIS-14E
Maison à PARIS-14E
Maison à PARIS-14E
Maison à PARIS-14E
Maison à PARIS-14E
Maison à PARIS-14E
Maison à PARIS-14E
Maison à PARIS-14E
Maison à PARIS-14E
Maison à PARIS-14E
Maison à PARIS-14E
Maison à PARIS-14E
Maison à PARIS-14E
Maison à PARIS-14E
Maison à PARIS-14E
Géorisques

Les informations sur les risques auxquels ce bien est exposé sont disponibles sur le site Géorisques : www.georisques.gouv.fr

Ce site est protégé par hCaptcha Politique de confidentialité et Conditions d’utilisation s’appliquent.

En poursuivant votre navigation sans modifier vos paramètres, vous acceptez l'utilisation de cookies susceptibles de réaliser des statistiques de visite. Cliquez ici pour plus d'informations