Maison 175 m² à Wattignies

— Wattignies 59139 —
388 500 €
175 m² / 816 m²
7 pièces
balcon/terrassejardin

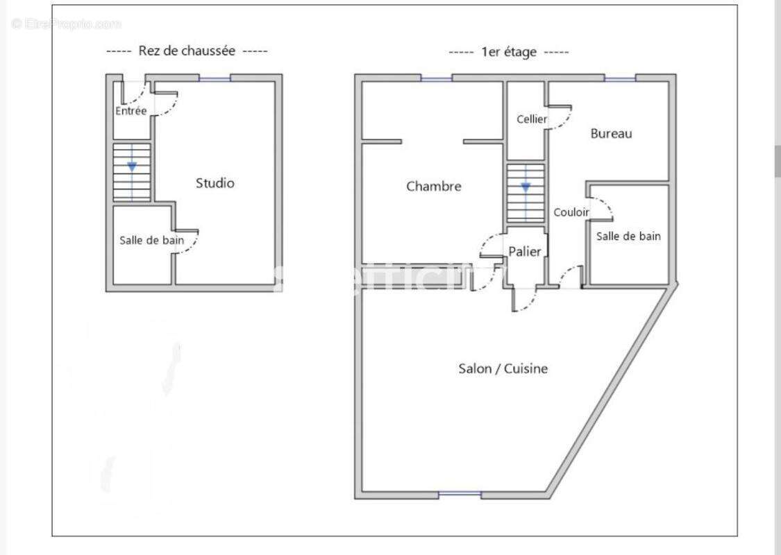
EFFICITY- 59139 – WATTIGNIES – MAISON SEMI-INDIVIDUELLE AVEC DEUX ENTRÉES DISTINCTES- UN BIEN AUX MULTIPLES PROJETS : MAISON FAMILIALE/CRÉATION DE PLUSIEURS LOGEMENTS/PROJET D'INVESTISSEMENT – 175,97 M² HABITABLES (Maison N°1 de 126,72 m² surface habitable et Maison N° 2 de 49,25 m² habitable) + GARAGE –PARCELLE 816 M²EXPOSE SUD OUEST - PRIX : 388 500 EUROS

Située sur la commune de Wattignies, à proximité immédiate des commodités et des grands axes, cette maison construite à la fin des années 60 offre de beaux volumes ainsi que de nombreuses possibilités d'aménagement.
Implantée sur une parcelle arborée de 816 m², exposée sud-ouest, elle conviendra aussi bien à une famille qu'à un investisseur à la recherche d'un bien à fort potentiel.
D'une surface habitable totale d'environ 176 m², la maison se distingue par ses deux accès indépendants, permettant facilement la création de deux logements distincts.

Habitation principale – environ 126,72 m²
•Spacieuse pièce de vie d'environ 50 m² comprenant salon, salle à manger et cuisine de 19,85 m², équipée d'un poêle à pellets et offrant un accès direct au jardin
•Salle de bain avec WC de 6,7 m²
•À l'étage : 3 chambres de 14,15 m² et 12,85 m², 13,2 m², dont une avec salle de douche privative
•Des Espaces complémentaires complètent ce bien : Un Sous-sol de 9,74 m² et un garage de 14,4 m² (1 voiture)
•DPE en C

Seconde Maison – environ 50 m² (potentiel locatif) Logement sans extérieur, idéal pour de la location ou une activité indépendante
•À l'étage : une pièce principale d'environ 15,87 m² sous pente avec salle de douche, une chambre de 9,11m² et WC et un Bureau 5,39 m²
•Au rez-de-chaussée : Un Studio de 8,11 plus une Salle de douche de 3,06
•DPE en D

Informations techniques
•Chauffage électrique (radiateurs) et ballon électrique
•Poêle à pellets dans l'habitation principale
•Deux compteurs électriques indépendants + sous-compteurs pour l'eau
•Menuiseries double vitrage
•Toiture avant refaite à neuf (sous garantie décennale), le reste vérifié par un professionnel
•Façade avant rénovée
•Porte d'entrée neuve (habitation principale)
•Taxe foncière : 1706 euros
•388 500 euros
Les informations sur les risques auxquels ce bien est exposé sont disponibles sur le site Georisque : georisques. gouv. fr
Émilie Libertini - EI - est Agent Commercial mandataire en immobilier, immatriculé au Registre Spécial des Agents Commerciaux du Tribunal de Commerce de Lille sous le n°894195593.
Siège social du mandant : effiCity, 48 avenue de Villiers - 75017 PARIS - Société par Actions Simplifiée, société au capital de 132 373,05 euros, immatriculée au RCS Paris 497 617 746 et titulaire de la Carte professionnelle CPI 75[Coordonnées masquées]02 025 - CCI Paris IDF - Caisse de Garantie : GALIAN Assurances 89 rue de la Boétie 75008 Paris
Voir plus

Référence: 212428
Honoraires d'agence de 5% à la charge de l'acquéreur
Barème des honoraires
DPE
A
B
C
D
E
F
G
GES
A
B
C
D
E
F
G
Maison à WATTIGNIES
Maison à WATTIGNIES
Maison à WATTIGNIES
Maison à WATTIGNIES
Maison à WATTIGNIES
Maison à WATTIGNIES
Maison à WATTIGNIES
Maison à WATTIGNIES
Maison à WATTIGNIES
Maison à WATTIGNIES
Maison à WATTIGNIES
Maison à WATTIGNIES
Maison à WATTIGNIES
Maison à WATTIGNIES
Maison à WATTIGNIES
Maison à WATTIGNIES
Maison à WATTIGNIES
Maison à WATTIGNIES
Maison à WATTIGNIES
Maison à WATTIGNIES
Géorisques

Les informations sur les risques auxquels ce bien est exposé sont disponibles sur le site Géorisques : www.georisques.gouv.fr

Ce site est protégé par hCaptcha Politique de confidentialité et Conditions d’utilisation s’appliquent.

En poursuivant votre navigation sans modifier vos paramètres, vous acceptez l'utilisation de cookies susceptibles de réaliser des statistiques de visite. Cliquez ici pour plus d'informations