Bénéficiez des services de nos partenaires locaux soigneusement sélectionnés
pour vous accompagner dans votre parcours d'achat immobilier

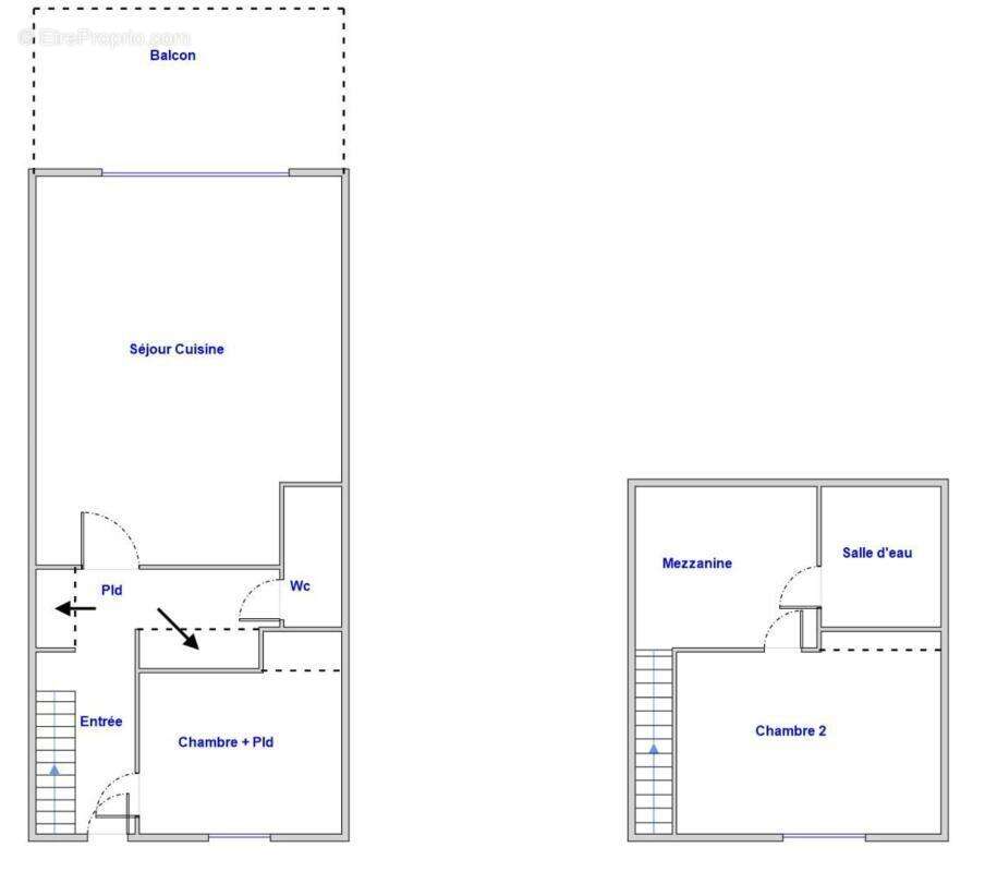
Appartement à rénover

— Capbreton 40150 —
295 000 €
44 m²
3 pièces
parkingbalcon/terrassepiscine

Nos partenaires locaux
Appartement T3 à rénover – Dernier étage – Vue spectaculaire – Balcon 8 m² – Résidence avec piscine et tennis

Dans le très recherché quartier Notre-Dame à Capbreton, à la frontière immédiate de Hossegor, ce T3 situé au dernier étage d'une résidence avec piscine et tennis offre une opportunité rare sur la côte landaise.

Dès l'arrivée, le regard est capté par la vue exceptionnelle sur l'entrée du port et le chenal du Port de Capbreton. Le spectacle change au fil des heures : animation des bateaux en journée, lumières du port le soir… un panorama vivant et fascinant.
Par temps clair, la vue s'étend même jusqu'à la chaîne majestueuse des Pyrénées, offrant un horizon rare pour un appartement situé à proximité immédiate de l'océan.

L'appartement s'ouvre sur un balcon de 8 m², véritable prolongement extérieur idéal pour profiter de cette vue unique, prendre un café au lever du soleil ou admirer les lumières du port à la tombée de la nuit.

Situé au dernier étage, le bien bénéficie d'une atmosphère particulièrement calme et lumineuse, tout en restant à distance piétonne de tout ce qui fait la renommée du secteur :
- les plages de l'Atlantique,
- le centre de Hossegor, ses commerces et restaurants,
- les promenades autour du port et du canal.

L'appartement nécessite une rénovation, offrant ainsi la possibilité de concevoir un intérieur totalement personnalisé et de valoriser pleinement ce bien grâce à son emplacement et à sa vue.

Ce type de bien séduit particulièrement les acquéreurs recherchant :
- un pied-à-terre sur la côte landaise,
- une résidence secondaire avec vue,
- ou un investissement patrimonial dans un secteur très recherché.

Les atouts majeurs :
- Dernier étage
- Balcon de 8 m² avec vue panoramique
- Vue sur l'entrée du port et le chenal
- Vue jusqu'aux Pyrénées par beau temps
- Résidence avec piscine et tennis
- Quartier Notre-Dame, très recherché
- Hossegor centre et plages accessibles à pied
- Fort potentiel après rénovation

Un bien rare pour les amateurs de vues spectaculaires, d'océan et d'art de vivre landais.

Une visite virtuelle est disponible sur demande.

Chers confrères, l'inter-cabinet est le bienvenu : ouvert au partage dans l'intérêt de nos clients et de la réussite de la transaction.
Les informations sur les risques auxquels ce bien est exposé sont disponibles sur le site Georisque : georisques. gouv. fr
Jacques Doassans-Bernard - EI - est Agent Commercial mandataire en immobilier, immatriculé au Registre Spécial des Agents Commerciaux du Tribunal de Commerce de None sous le n°411784986.
Siège social du mandant : effiCity, 48 avenue de Villiers - 75017 PARIS - Société par Actions Simplifiée, société au capital de 132 373,05 euros, immatriculée au RCS Paris 497 617 746 et titulaire de la Carte professionnelle CPI 75[Coordonnées masquées]02 025 - CCI Paris IDF - Caisse de Garantie : GALIAN Assurances 89 rue de la Boétie 75008 Paris
Voir plus

Référence: 209535
Bien en copropriété. Nombre de lots : 521. Charges de copropriété : 127 €.
Honoraires à la charge du vendeur.
Barème des honoraires
DPE
A
B
C
D
E
F
G
GES
A
B
C
D
E
F
G
Appartement à CAPBRETON
Appartement à CAPBRETON
Appartement à CAPBRETON
Appartement à CAPBRETON
Appartement à CAPBRETON
Appartement à CAPBRETON
Appartement à CAPBRETON
Appartement à CAPBRETON
Appartement à CAPBRETON
Appartement à CAPBRETON
Appartement à CAPBRETON
Appartement à CAPBRETON
Appartement à CAPBRETON
Appartement à CAPBRETON
Appartement à CAPBRETON
Appartement à CAPBRETON
Géorisques

Les informations sur les risques auxquels ce bien est exposé sont disponibles sur le site Géorisques : www.georisques.gouv.fr

Ce site est protégé par hCaptcha Politique de confidentialité et Conditions d’utilisation s’appliquent.

En poursuivant votre navigation sans modifier vos paramètres, vous acceptez l'utilisation de cookies susceptibles de réaliser des statistiques de visite. Cliquez ici pour plus d'informations