Bénéficiez des services de nos partenaires locaux soigneusement sélectionnés
pour vous accompagner dans votre parcours d'achat immobilier

Voir tous les partenaires locaux

Appartement Rennes Sud - T4 - 73 m2 - Balcon et cave

— Rennes 35000 —
149 990 €
73 m²
4 pièces
balcon/terrasseascenseur

Nos partenaires locaux
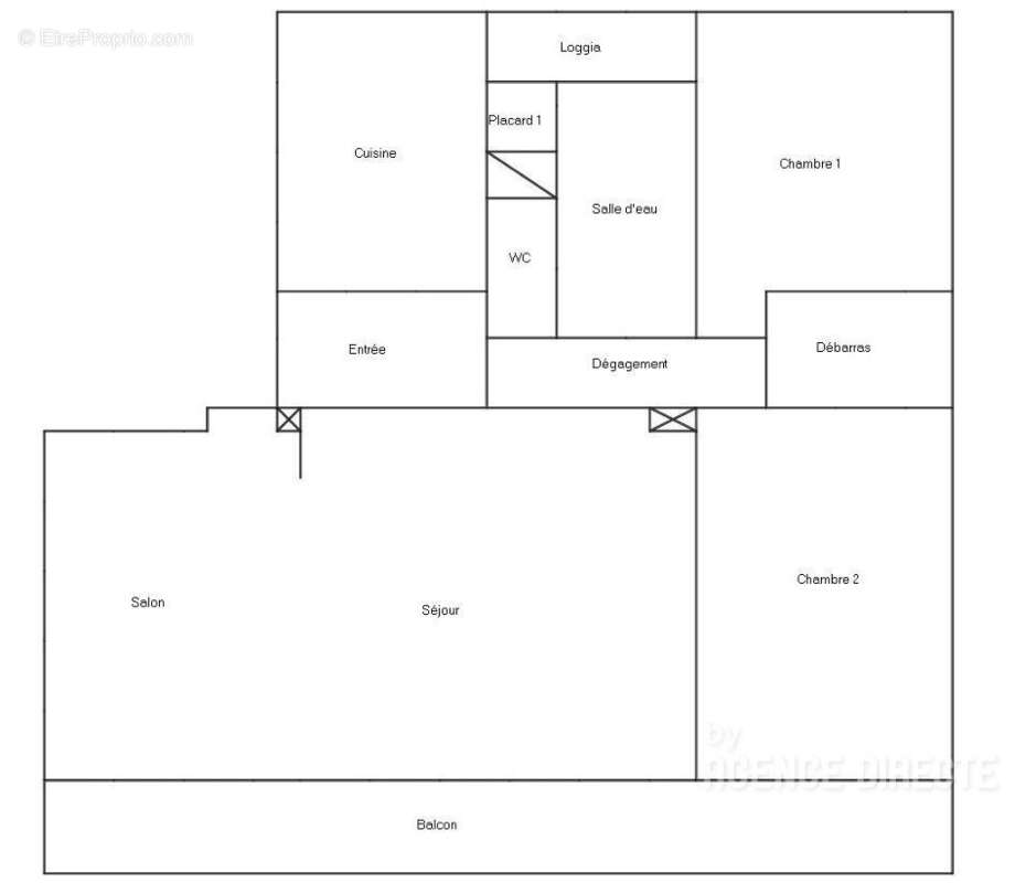
AGENCE DIRECTE l''immobilier à Frais Réduits ! Rennes sud - Hôpital sud - Avenue de Pologne Au 1er étage dans une petite copropriété avec ascenseur : Appartement T4 d'environ 73m² avec grand balcon comprenant: Entrée, double salon-séjour d'environ 30m² idéalement exposé avec double accès au balcon, cuisine aménagée et équipée, un espace buanderie/Arrière-cuisine, deux chambres dont une avec accès balcon, un espace dressing/rangement, une salle d'eau avec douche et un W.C séparé. Possibilité de créer une 3ème chambre / bureau... En complément : - Une grande cave privative en sous-sol avec accès sécurisé. - Un local vélo commun avec accès sécurisé Commerces, Métro et bus à proximité - Accès rapide à la rocade. Le prix de ce bien est Frais d'Agence Inclus. Visite virtuelle 3D immersive et prise de rendez-vous en ligne sur notre site Agencedirecte com . AGENCE DIRECTE estime gratuitement votre bien. Diagnostics Immobiliers remboursés en cas de vente par notre intermédiaire pour tout mandat simple ou exclusif contracté avant le 31/12/2026 Offre réservée aux vendeurs nous contactant spontanément (offre non cumulable - conditions en agence) "AGENCE DIRECTE RENNES Sud, Fréville, Bréquigny, Clémenceau, Rue de Nantes, Landry, Poterie, Sacré-Coeur, Ste-Thérèse" (4.52 % honoraires TTC à la charge de l'acquéreur.)
Voir plus

Référence: 14721
Bien en copropriété. Charges de copropriété : 2160 €.
Honoraires d'agence de 4.52% à la charge de l'acquéreur
DPE
A
B
C
D
E
F
G
GES
A
B
C
D
E
F
G
Appartement à RENNES
Appartement à RENNES
Appartement à RENNES
Appartement à RENNES
Appartement à RENNES
Appartement à RENNES
Appartement à RENNES
Appartement à RENNES
Appartement à RENNES
Appartement à RENNES
Appartement à RENNES
Appartement à RENNES
Appartement à RENNES
Géorisques

Les informations sur les risques auxquels ce bien est exposé sont disponibles sur le site Géorisques : www.georisques.gouv.fr

Ce site est protégé par hCaptcha Politique de confidentialité et Conditions d’utilisation s’appliquent.

En poursuivant votre navigation sans modifier vos paramètres, vous acceptez l'utilisation de cookies susceptibles de réaliser des statistiques de visite. Cliquez ici pour plus d'informations