Bénéficiez des services de nos partenaires locaux soigneusement sélectionnés
pour vous accompagner dans votre parcours d'achat immobilier

A vendre, appartement, esprit maison de ville, 164 m2, 5 pièces NOGENT SUR MARNE (94), avec Cour intérieure et box 1 voiture

— Nogent-Sur-Marne 94130 —
830 000 €
163 m²
5 pièces
parking

Nos partenaires locaux
Vente à prix progressif pour cet appartement coup de cœur, rue Manessier à Nogent-sur-Marne.
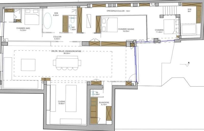
Ce Bien atypique, esprit loft, maison de ville, de 164 m2, en excellent état, au calme, situé au fond d'une petite copropriété de 4 lots, combine le confort d'une maison avec la praticité d'un appartement.
L'espace central de vie de 61 m² constitue le véritable cœur du logement, autour duquel s'organisent toutes les pièces.
La cuisine ouverte de 19,5 m² prolonge naturellement le séjour et la salle à manger, créant un volume fluide et convivial qui favorise la vie de famille.
La disposition des pièces et les volumes généreux offrent une circulation harmonieuse et un confort optimal au quotidien.
Le coin nuit comprend trois chambres très confortables, dont une suite parentale de 21,5 m² donnant sur la cour avec dressing et salle d'eau privative. Les deux autres chambres sont parfaitement aménagées mais ne donnent pas sur la cour. Une grande salle de bain familiale complète l'espace nuit.
Une buanderie indépendante, très fonctionnelle et incluant un toilette supplémentaire, complète le logement.
Le confort est présent à tous les niveaux, avec de beaux volumes, des espaces optimisés et un système de chauffage de grande qualité.
Atout non négligeable, les charges de copropriété sont très faibles et parfaitement maîtrisées.
La cour intérieure exposée ouest permet de profiter d'un extérieur abrité des regards, lumineux et ensoleillé.
Le bien est vendu avec un box privatif (achat possible d'un second box).
La localisation est idéale pour une vie de famille pratique et agréable : commerces, services et écoles accessibles à pied, maternelles, primaires et établissements privés réputés (Collèges-lycées Montalembert et Albert de Mun) à proximité et gare RER A de Nogent-sur-Marne à moins de 15 minutes à pied.
Ce bien constitue une opportunité rare pour une famille à la recherche d'un logement atypique, spacieux et confortable, combinant le charme et le confort d'une maison avec la praticité de la vie citadine, en ayant plus que les meubles à poser.
Je me tiens à votre écoute pour vous faire découvrir ce bien et vous accompagner dans cette vente à prix progressif.
Nombre de lots de la copropriété : 4, Montant moyen annuel de la quote-part de charges (budget prévisionnel) : 1300€ soit 108€ par mois. Les honoraires sont à la charge du vendeur.

Ce bien est proposé à la vente via un APPEL D'OFFRES INTERACTIF À PRIX PROGRESSIF : les offres d'achat seront reçues en ligne sur la plateforme Immofit. fr, jusqu'au 01/07/2026 à 00h00 (Europe/Paris). Le prix affiché sur la présente annonce correspond à un prix de première offre possible et les participants pourront soumettre leurs offres par paliers progressifs minimums de 10 000 €, jusqu'à la date de clôture de l'appel d'offres interactif précisé ci-avant. La participation à l'appel d'offres est soumise à agrément préalable. Toutes les offres d'achat seront transmises au vendeur, lequel restera libre dans la sélection de l'offre à laquelle il souhaitera donner suite. Une offre d'achat en ligne pendant l'appel d'offres interactif ne constitue pas une offre ferme et précise au sens de l'article 1114 du Code civil.

Les informations sur les risques auxquels ce bien est exposé sont disponibles sur le site Géorisques : www. georisques. gouv. fr.

Réseau Immobilier CAPIFRANCE - Votre agent commercial (RSAC N°452 571 805 - Greffe de CRETEIL) Virginie VINCENT Entrepreneur Individuel [Coordonnées masquées] - Réf.949680
Voir plus

Référence: 340935794304
Bien en copropriété. Nombre de lots : 4. Charges de copropriété : 108 €.
Honoraires à la charge du vendeur.
DPE
A
B
C
D
E
F
G
GES
A
B
C
D
E
F
G
Appartement à NOGENT-SUR-MARNE
Appartement à NOGENT-SUR-MARNE
Appartement à NOGENT-SUR-MARNE
Appartement à NOGENT-SUR-MARNE
Appartement à NOGENT-SUR-MARNE
Appartement à NOGENT-SUR-MARNE
Appartement à NOGENT-SUR-MARNE
Appartement à NOGENT-SUR-MARNE
Appartement à NOGENT-SUR-MARNE
Appartement à NOGENT-SUR-MARNE
Appartement à NOGENT-SUR-MARNE
Appartement à NOGENT-SUR-MARNE
Appartement à NOGENT-SUR-MARNE
Appartement à NOGENT-SUR-MARNE
Appartement à NOGENT-SUR-MARNE
Appartement à NOGENT-SUR-MARNE
Appartement à NOGENT-SUR-MARNE
Appartement à NOGENT-SUR-MARNE
Appartement à NOGENT-SUR-MARNE
Appartement à NOGENT-SUR-MARNE
Appartement à NOGENT-SUR-MARNE
Appartement à NOGENT-SUR-MARNE
Appartement à NOGENT-SUR-MARNE
Appartement à NOGENT-SUR-MARNE
Appartement à NOGENT-SUR-MARNE
Appartement à NOGENT-SUR-MARNE
Appartement à NOGENT-SUR-MARNE
Géorisques

Les informations sur les risques auxquels ce bien est exposé sont disponibles sur le site Géorisques : www.georisques.gouv.fr

Ce site est protégé par hCaptcha Politique de confidentialité et Conditions d’utilisation s’appliquent.

En poursuivant votre navigation sans modifier vos paramètres, vous acceptez l'utilisation de cookies susceptibles de réaliser des statistiques de visite. Cliquez ici pour plus d'informations