Bénéficiez des services de nos partenaires locaux soigneusement sélectionnés
pour vous accompagner dans votre parcours d'achat immobilier

TRAVET - Maison de charme sur 1014 m² de terrain

— Castres 81100 —
435 000 €
253 m² / 1 014 m²
10 pièces
parkingbalcon/terrassejardin

Nos partenaires locaux
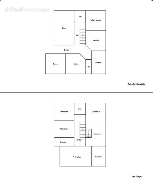
PACFA Immobilier vous propose à la vente en exclusivité cette élégante maison de caractère sur un sous-sol complet idéalement située sur le secteur recherché du Travet, quartier résidentiel, à 700 mètres de la place Pierre Fabre, à proximité immédiate des écoles, commerces et services.

Dès l’entrée vous serez séduit par un spacieux salon baigné de lumière offrant un cadre de vie chaleureux et convivial.
La maison dispose également d’une cuisine indépendante avec espace repas parfaitement adapté à la vie de famille.

La partie nuit se compose de 5 chambres confortables complétées par 2 salles d’eau, 1 bureau et une salle de jeux permettent d’accueillir aisément.

Avec ses 260 m² habitables répartis sur 10 pièces, ce bien vous offre des volumes remarquables, de beaux parquets authentiques, des hauteurs sous plafond et de grandes ouvertures laissant entrer une agréable lumière naturelle.

Un bien rare sur le secteur.

La visite virtuelle est disponible sur notre site.
Voir plus

Référence: 4096
Barème des honoraires
DPE
A
B
C
D
E
F
G
GES
A
B
C
D
E
F
G
Maison à CASTRES
Maison à CASTRES
Maison à CASTRES
Maison à CASTRES
Maison à CASTRES
Maison à CASTRES
Maison à CASTRES
Maison à CASTRES
Maison à CASTRES
Maison à CASTRES
Maison à CASTRES
Maison à CASTRES
Maison à CASTRES
Maison à CASTRES
Maison à CASTRES
Géorisques

Les informations sur les risques auxquels ce bien est exposé sont disponibles sur le site Géorisques : www.georisques.gouv.fr

Ce site est protégé par hCaptcha Politique de confidentialité et Conditions d’utilisation s’appliquent.

En poursuivant votre navigation sans modifier vos paramètres, vous acceptez l'utilisation de cookies susceptibles de réaliser des statistiques de visite. Cliquez ici pour plus d'informations