Bénéficiez des services de nos partenaires locaux soigneusement sélectionnés
pour vous accompagner dans votre parcours d'achat immobilier

Appartement de 2 pièces de 44 m² à Saint-Ouen-l'Aumône

— Saint-Ouen-L'aumone 95310 —
167 500 €
44 m²
2 pièces
parkingbalcon/terrasseascenseur

Nos partenaires locaux
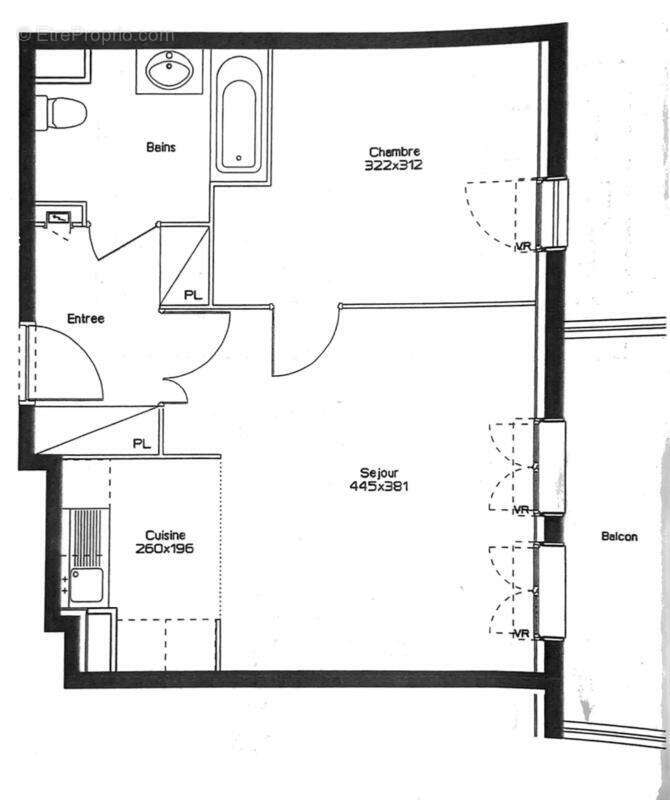
Situé à Saint-Ouen-l'Aumône, cet appartement de 2 pièces de 44 m2 carrez se trouve au 1er étage d'un immeuble récent de 2015 bien entretenu.

La pièce de vie de 23m2 bénéficie d'un accès direct au balcon de 7m2, la cuisine ouverte reste à équiper. L'entrée dispose de deux dressing et la chambre de 11m2 a des volets électrique. Une place de stationnement en sous sol avec accès par l'ascenseur complète ce bien. Cet appartement constitue un cadre de vie fonctionnel et agréable pour un premier achat, un pied-à-terre ou un investissement.

Situé au centre centre ville , vous bénéficiez de l'ensemble des commodités et la gare de Saint-Ouen-l'Aumône se trouve à environ 100 m, facilitant les déplacements quotidiens.

Les familles apprécieront la proximité de l'École Élémentaire La Prairie à environ 300 m, ainsi que des écoles maternelles La Prairie et Matisse situées à environ 300 m et 300 m.

Pour les moments de détente, plusieurs espaces verts sont aisément accessibles : le parc AS à environ 300 m, le parc du Château à environ 500 m et le parc Le Nôtre à environ 700 m. La gare de Pontoise est également accessible à 15 minutes à pied.

Caractéristiques techniques
- Taxe foncière : 1070 €
- DPE : C - 107
- GES : C - 19
- Chauffage : Collectif Gaz
- Distribution eau chaude : Combiné au système de chauffage

Les informations sur les risques auxquels ce bien est exposé sont disponibles sur le site Géorisques : (http://www.georisques.gouv.fr/)

Intéressés ? Contactez Zefir pour visiter ce bien.
Voir plus

Référence: 3d8f22f3-0faa-4565-940e-3a31cc
Bien en copropriété.
Honoraires à la charge du vendeur.
DPE
A
B
C
D
E
F
G
GES
A
B
C
D
E
F
G
Appartement à SAINT-OUEN-L'AUMONE
Appartement à SAINT-OUEN-L'AUMONE
Appartement à SAINT-OUEN-L'AUMONE
Appartement à SAINT-OUEN-L'AUMONE
Appartement à SAINT-OUEN-L'AUMONE
Appartement à SAINT-OUEN-L'AUMONE
Appartement à SAINT-OUEN-L'AUMONE
Appartement à SAINT-OUEN-L'AUMONE
Appartement à SAINT-OUEN-L'AUMONE
Appartement à SAINT-OUEN-L'AUMONE
Appartement à SAINT-OUEN-L'AUMONE
Appartement à SAINT-OUEN-L'AUMONE
Appartement à SAINT-OUEN-L'AUMONE
Appartement à SAINT-OUEN-L'AUMONE
Géorisques

Les informations sur les risques auxquels ce bien est exposé sont disponibles sur le site Géorisques : www.georisques.gouv.fr

Ce site est protégé par hCaptcha Politique de confidentialité et Conditions d’utilisation s’appliquent.

En poursuivant votre navigation sans modifier vos paramètres, vous acceptez l'utilisation de cookies susceptibles de réaliser des statistiques de visite. Cliquez ici pour plus d'informations