Bénéficiez des services de nos partenaires locaux soigneusement sélectionnés
pour vous accompagner dans votre parcours d'achat immobilier

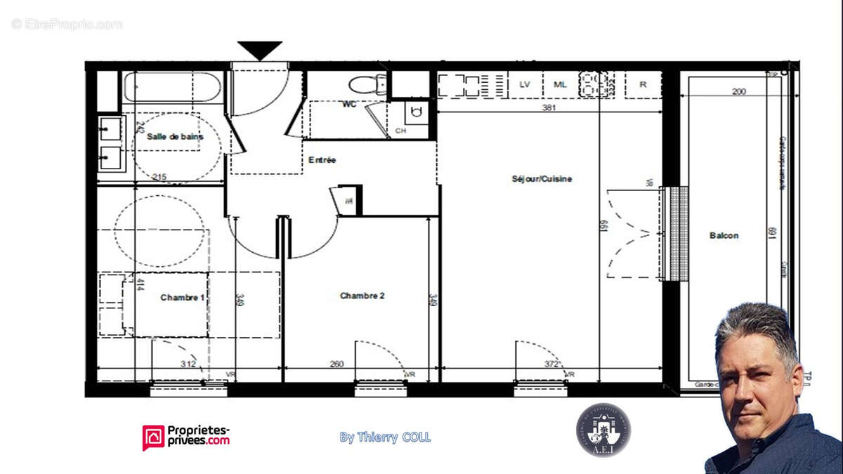
Appartement t3 rillieux la pape de 60.74 m2 premier étage

— Rillieux-La-Pape 69140 —
292 500 €
60 m²
3 pièces
parkingascenseur

Nos partenaires locaux
Je vous propose sur RILLIEUX LA PAPE (69140) un appartement T3 de 60.74 m² avec un balcon de 13.06 M² ainsi que 1 place de parking en sous-sol.
L'appartement se situe au deuxième étage avec ascenseur et orienté EST dans une résidence arborée située au centre de la commune.
Avec des volumes optimisés, des pièces lumineuses et un chez-soi agréable à vivre.
La cuisine ouverte sur le salon de 24.81 M² donnant lui-même sur le balcon de 13.77m².
Deux chambres de 9.07 M² et 12.29 M² .
Belle salle de bain de 4.79 m² et un WC séparé de 2.52 M².
3 locaux vélos au premier niveau de sous-sol totalisant plus de 92 m²
Produit unique et très rare sur le secteur.
Mandat n° 438006
DPE ; B
Investissement Principal, Secondaire ou Locatif -
Prix de vente : 292.500 euros
appartement neuf - livraison immédiate et frais de notaire réduits
Lot : D15 premier étage
Informations, réservations auprès de votre conseiller commercialisateur Coll Thierry pour ineuf-com au [Coordonnées masquées] ou par courriel à [Coordonnées masquées] agissant sous le statut d'agent en portage salarial auprès de la SAS PROPRIETES PRIVEES ? ZAC du chêne ferré - 44 allée des cinq continents 44120 VERTOU, Carte professionnelle CPI 44[Coordonnées masquées]10 388 CCI Nantes-Saint Nazaire. RCS NANTES 487 624 777, Le professionnel vous conseille, garantit et sécurise votre projet immobilier.
*voir conditions auprès de votre conseiller.
Copropriété de 100 lots.
Voir plus

Référence: 1004TC438006TCL
Bien en copropriété. Nombre de lots : 100.
Honoraires à la charge du vendeur.
DPE
A
B
C
D
E
F
G
Appartement à RILLIEUX-LA-PAPE
Appartement à RILLIEUX-LA-PAPE
Appartement à RILLIEUX-LA-PAPE
Appartement à RILLIEUX-LA-PAPE
Appartement à RILLIEUX-LA-PAPE
Appartement à RILLIEUX-LA-PAPE
Appartement à RILLIEUX-LA-PAPE
Appartement à RILLIEUX-LA-PAPE
Appartement à RILLIEUX-LA-PAPE
Appartement à RILLIEUX-LA-PAPE
Appartement à RILLIEUX-LA-PAPE
Appartement à RILLIEUX-LA-PAPE
Appartement à RILLIEUX-LA-PAPE
Appartement à RILLIEUX-LA-PAPE
Appartement à RILLIEUX-LA-PAPE
Appartement à RILLIEUX-LA-PAPE
Appartement à RILLIEUX-LA-PAPE
Appartement à RILLIEUX-LA-PAPE
Géorisques

Les informations sur les risques auxquels ce bien est exposé sont disponibles sur le site Géorisques : www.georisques.gouv.fr

Ce site est protégé par hCaptcha Politique de confidentialité et Conditions d’utilisation s’appliquent.

En poursuivant votre navigation sans modifier vos paramètres, vous acceptez l'utilisation de cookies susceptibles de réaliser des statistiques de visite. Cliquez ici pour plus d'informations