Bénéficiez des services de nos partenaires locaux soigneusement sélectionnés
pour vous accompagner dans votre parcours d'achat immobilier

Appartement toussieu 2 chambres

— Toussieu 69780 —
289 000 €
62 m²
3 pièces
parkingbalcon/terrassejardin

Nos partenaires locaux
Offrez-vous l'appartement de vos rêves, idéalement située à proximité des commerces, avec le calme unique d'un village aux portes de Lyon.

(69780) Toussieu, Je vous propose, dans un village plein de charme, animé de commerces et entouré de nature, un appartement de 62.20 m² , avec possibilité d'un garage box fermé en SUS pour 15.000 euros. Lot 4103 et lot 74
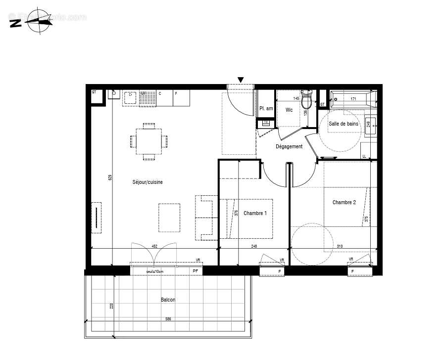
Dans l'appartement au premier étage exposé OUEST, vous disposerez d'un séjour/cuisine de 32,05 m² donnant sur le balcon de 12,90 M² ce qui apporte un maximum de luminosité à votre intérieur.
Vous trouverez également deux belles chambres de 9.2 M² et 11.50 M² , une belle salle de bain de 4.95 m² et un WC séparé.

Produit unique et très rare sur le secteur.
Livraison : 3ème trimestre 2026 (frais de notaire réduits)
DPE non requis
Prix de vente : 289.000 euros
Mandat réf: 439125
Informations, réservations auprès de votre conseiller commercialisateur Coll Thierry pour ineuf-com au [Coordonnées masquées].
Pour visiter et vous accompagner dans votre projet, contactez Thierry Coll, agissant sous le statut conseiller immobilier indépendant auprès de la SAS Propriétés Privées au
[Coordonnées masquées] ou par courriel à [Coordonnées masquées].
RCS 487 624 777 - Le professionnel vous conseille, garantit et sécurise votre projet immobilier.
Cette présente annonce a été rédigée sous la responsabilité éditoriale de Coll Thierry agissant sous le statut d'agent commercial immatriculé au RSAC BREST 878921915 auprès de la SAS PROPRIETES PRIVEES, Réseau national immobilier, au capital de 40000 euros, 44 ALLÉE DES CINQ CONTINENTS - ZAC LE CHÊNE FERRÉ, 44120 VERTOU, RCS Nantes n° 487 624 777 00040,
Copropriété de 35 lots - dont 35 lots habitation.
Voir plus

Référence: 1004TC439125TCL
Bien en copropriété. Nombre de lots : 35.
Honoraires à la charge du vendeur.
Appartement à TOUSSIEU
Appartement à TOUSSIEU
Appartement à TOUSSIEU
Appartement à TOUSSIEU
Appartement à TOUSSIEU
Géorisques

Les informations sur les risques auxquels ce bien est exposé sont disponibles sur le site Géorisques : www.georisques.gouv.fr

Ce site est protégé par hCaptcha Politique de confidentialité et Conditions d’utilisation s’appliquent.

En poursuivant votre navigation sans modifier vos paramètres, vous acceptez l'utilisation de cookies susceptibles de réaliser des statistiques de visite. Cliquez ici pour plus d'informations