Bénéficiez des services de nos partenaires locaux soigneusement sélectionnés
pour vous accompagner dans votre parcours d'achat immobilier

Voir tous les partenaires locaux

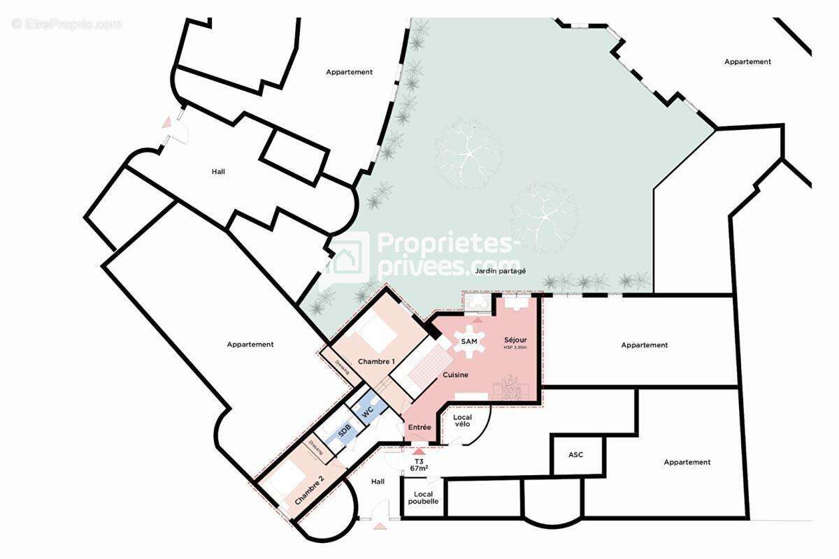
75015 PARIS Javel - Appartement T3 avec jardin - 67m2 - Proximité Beaugrenelle, Tour Eiffel, Seine

— Paris-15e 75015 —
572 000 €
67 m²
3 pièces

Nos partenaires locaux
Un appartement aux volumes exceptionnels et ouvert sur la nature :
En rez-de-jardin, ce 3 pièces de 67,4 m² séduit par sa hauteur sous plafond impressionnante et rare de 3,35 m.

A proximité immédiate de la Seine, de la Tour Eiffel et de Beaugrenelle, découvrez ce bien rare niché au calme absolu, au sein d'un ensemble architectural emblématique des années 1990 .

- Au Rez-de-jardin, à proximité immédiaté du hall d'entrée et du local vélo
- Un séjour lumineux avec cuisine ouverte et espace salle à manger de 30m2
- Une distribution optimisée avec un coin nuit distinct :
- Deux chambres (12m2 et 15m2) équipées d'un dressing intégré portes coulissantes
- Une cave au-sous complète ce bien
- Local vélo à proximité

Le séjour s'ouvre sur un jardin de copropriété arboré, prolongé par une agréable terrasse en bois, véritable pièce de vie extérieure. Accessible par une porte-fenêtre.
L'exposition Est et les arbres apportent une atmosphère paisible, intime et verdoyante.

- Charges annuelles: 2700 euros
- Taxe foncière: 1 509 euros
- Pas de procédure en cours

Sols :
- Séjour : Parquet chêne massif mozaïque
- Chambres : Parquet
- Cuisine, Salle de bain, WC - Carrelage

Equipements :
- Cuisine équipée : Frigo, Congélateur, Lave-vaisselle, Evier, Four, Plaques, Hotte
- Porte d'entrée sécurisée
- Volets-roulants méchaniques sur toutes les fenêtres
- Volets eléctriques sur la porte-fenêtre

Transports :
- Métro Javel Ligne 10 (3min)
- RER C Javel (3min)
- Métro Félix Faure Ligne 8 (15min)
- Station Vélib (1min)

Espaces verts :
- Parc André Citroën - Ballon de Paris (4min)
-Île aux cygnes (15min)
- Parc Sainte-Périne (15min)

Commerces etc :
- Galeries Lafayette Beaugrenelle (15min)
- Hôpital Européen Georges Pompidou (9min)
- Radio France (15min)

Les atouts :
- Extérieur rare à Paris
- Calme absolu
- Volumes exceptionnels
- Résidence de standing avec façade en céramique typique
- Adresse recherchée à proximité immédiate des transports et commodités
- Parfait pour profession libérale

Un bien singulier, alliant nature, lumière et emplacement premium, idéal pour un cadre de vie unique au coeur de la capitale.

Prix de vente 572 000 euros dont 4,00 % honoraire inclus à la charge de l'acquéreur soit prix net vendeur 550 000 euros.

DPE E GES C
Montant estimé des dépenses annuelles d'énergie pour un usage standard entre 1770 et 2410 euros indexées aux années 2021, 2022 et 2023.

Mandat référence 445140

Pour visiter et vous accompagner dans votre projet, contactez Sarah ASLANI, au [Coordonnées masquées] ou, par courriel à [Coordonnées masquées].
Selon l'article L.561.5 du Code Monétaire et Financier, pour l'organisation de la visite, la présentation d'une pièce d'identité vous sera demandée.
Cette présente annonce a été rédigée sous la responsabilité éditoriale de Sarah ASLANI agissant sous le statut d'agent commercial immatriculé au RSAC PARIS 934159542 auprès de SAS PROPRIETES PRIVEES, au capital de 44 920 euros, ZAC LE CHÊNE FERRÉ - 44 ALLÉE DES CINQ CONTINENTS 44120 VERTOU; SIRET 487 624 777 00040, RCS Nantes. Carte Professionnelle Transactions sur immeubles et fonds de commerce (T) et Gestion immobilière (G) n°CPI 44[Coordonnées masquées]10 388 délivrée par la CCI Nantes - Saint Nazaire. Compte séquestre n°3[Coordonnées masquées] BPA SAINT-SEBASTIEN-SUR-LOIRE (44230). Garantie GALIAN-SMABTP - 89 rue de la Boétie, 75008 Paris - n°28137 J pour 2 000 000 euros pour T et 120 000 euros pour G. Assurance responsabilité civile professionnelle par GALIAN-SMABTP n° de police 28137.J
(4.00 % honoraires TTC à la charge de l'acquéreur.)
Copropriété de 318 lots.

Charges annuelles : 2700 euros.
Sarah ASLANI (EI) Agent Commercial - Numéro RSAC : PARIS 934159542 - .
Les informations sur les risques auxquels ce bien est exposé sont disponibles sur le site Géorisques : www. georisques. gouv. fr
Voir plus

Référence: 445140SARZ
Bien en copropriété. Nombre de lots : 318. Charges de copropriété : 225 €.
Honoraires d'agence de 4% à la charge de l'acquéreur
DPE
A
B
C
D
E
F
G
GES
A
B
C
D
E
F
G
Appartement à PARIS-15E
Appartement à PARIS-15E
Appartement à PARIS-15E
Appartement à PARIS-15E
Appartement à PARIS-15E
Appartement à PARIS-15E
Appartement à PARIS-15E
Appartement à PARIS-15E
Appartement à PARIS-15E
Géorisques

Les informations sur les risques auxquels ce bien est exposé sont disponibles sur le site Géorisques : www.georisques.gouv.fr

Ce site est protégé par hCaptcha Politique de confidentialité et Conditions d’utilisation s’appliquent.

En poursuivant votre navigation sans modifier vos paramètres, vous acceptez l'utilisation de cookies susceptibles de réaliser des statistiques de visite. Cliquez ici pour plus d'informations