Bénéficiez des services de nos partenaires locaux soigneusement sélectionnés
pour vous accompagner dans votre parcours d'achat immobilier

Rueil Bords de Seine - 3 pièces de 70 m2

— Rueil-Malmaison 92500 —
340 000 €
70 m²
3 pièces
parking

Nos partenaires locaux
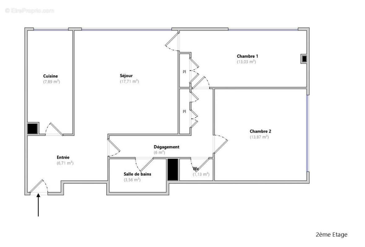
L'Agence de l'Empereur vous présente cet agréable appartement de 3 pièces, 70 m2, situé à deux pas des bords de Seine, au deuxième étage sur quatre avec ascenseur, dans une petite résidence de 1972, très calme ! Dans son écrin de verdure en bord de Seine, une adresse paisible à seulement 10 min à pied du RER A.
L'entrée de 6,70 m2 forme un carré propice à l’installation d’un petit bureau, d'un piano ou de rangements. Elle dessert une cuisine de 8 m2, décloisonnable sur le séjour de 17,70 m2, créant ainsi une pièce de vie de 26 m2 orientée principalement Sud. La partie nuit, séparée par une porte, se compose d'un dégagement avec de grands placards intégrés et de deux grandes chambres orientées Sud-Ouest : une première de près de 14 m2, dont les grandes fenêtres offrent un aperçu sur la Seine, et la seconde de 13 m2 environ avec son placard intégré. Toilettes séparées et salle de bains de 3,55 m2.
L'appartement est entièrement à rénover pour le remettre au goût du jour. Vous apprécierez l'adresse très agréable en bord de Seine, la luminosité, l'organisation des pièces avec une partie nuit bien définie et la possibilité d'ouvrir la cuisine sur le séjour. Le double vitrage est récent.
Chauffage, eau chaude et froide collectifs, inclus dans les charges qui s'élèvent à 260 €/mois environ. Une cave et un emplacement de stationnement extérieur complètent ce bien.
Voir plus

Référence: 8536
Bien en copropriété. Nombre de lots : 98. Charges de copropriété : 3200 €.
Honoraires d'agence de 4.1% à la charge de l'acquéreur
Barème des honoraires
DPE
A
B
C
D
E
F
G
GES
A
B
C
D
E
F
G
Appartement à RUEIL-MALMAISON
Appartement à RUEIL-MALMAISON
Appartement à RUEIL-MALMAISON
Appartement à RUEIL-MALMAISON
Appartement à RUEIL-MALMAISON
Appartement à RUEIL-MALMAISON
Appartement à RUEIL-MALMAISON
Appartement à RUEIL-MALMAISON
Appartement à RUEIL-MALMAISON
Appartement à RUEIL-MALMAISON
Appartement à RUEIL-MALMAISON
Appartement à RUEIL-MALMAISON
Appartement à RUEIL-MALMAISON
Appartement à RUEIL-MALMAISON
Appartement à RUEIL-MALMAISON
Appartement à RUEIL-MALMAISON
Appartement à RUEIL-MALMAISON
Géorisques

Les informations sur les risques auxquels ce bien est exposé sont disponibles sur le site Géorisques : www.georisques.gouv.fr

Ce site est protégé par hCaptcha Politique de confidentialité et Conditions d’utilisation s’appliquent.

En poursuivant votre navigation sans modifier vos paramètres, vous acceptez l'utilisation de cookies susceptibles de réaliser des statistiques de visite. Cliquez ici pour plus d'informations