VAR - COGOLIN aux portes de SAINT TROPEZ - résidence au calme avec piscine - appartement 2 pièces avec jardin privatif

— Cogolin 83310 —
235 000 €
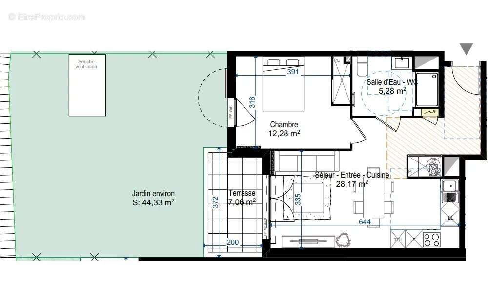
46 m² / 44 m²
2 pièces
jardinascenseurpiscineaccès handicapé

VAR
COGOLIN à quelques minutes de SAINT TROPEZ
Village provençale de caractère
Dans un environnement calme et verdoyant, tout en étant relié au coeur de village et aux commodités.
Résidence contemporaine avec piscine.
Prestations confortables.
Appartement 2 pièces avec terrasse et jardin.
Grande pièce de vie lumineuse et fonctionnelle.
Grande chambre avec placard.
Salle de douche avec WC.
Allotement obligatoire d'un stationnement privatif en complément du prix pour une valeur de 12 000€
Possibilité prêt à zéro
Frais de notaire bas
Idéal résidence principale jeune actif, saisonnier, retraité, pied à terre, résidence secondaire, investissement locatif...
Contactez sans tarder notre équipe dédiée.
Voir plus

Référence: 86907561
Barème des honoraires
DPE
A
B
C
D
E
F
G
Appartement à COGOLIN
Appartement à COGOLIN
Appartement à COGOLIN
Appartement à COGOLIN
Appartement à COGOLIN
Appartement à COGOLIN
Géorisques

Les informations sur les risques auxquels ce bien est exposé sont disponibles sur le site Géorisques : www.georisques.gouv.fr

Ce site est protégé par hCaptcha Politique de confidentialité et Conditions d’utilisation s’appliquent.

En poursuivant votre navigation sans modifier vos paramètres, vous acceptez l'utilisation de cookies susceptibles de réaliser des statistiques de visite. Cliquez ici pour plus d'informations