Bénéficiez des services de nos partenaires locaux soigneusement sélectionnés
pour vous accompagner dans votre parcours d'achat immobilier

Maison 97 m² à Tourouzelle

— Tourouzelle 11200 —
290 000 €
97 m² / 1 156 m²
4 pièces
parkingbalcon/terrassejardinpiscineaccès handicapé

Nos partenaires locaux
Villa de plain-pied (97 m²) avec vue dégagée, 3 chambres, 1 salle de bain, climatisation, piscine, garage et jardin (1156 m²) à Tourouzelle (11200 - Aude)

Cette villa (année 2004) avec piscine et un magnifique jardin aux essences méditerranéennes offrant une intimité totale, est située sur une vaste parcelle en bordure du paisible village de Tourouzelle, à proximité de la rivière Aude et du Canal du Midi. La maison est en bon état et offre des possibilités intéressantes pour transformer l'espace de vie complémentaire (58 m²) et augmenter considérablement la surface habitable.

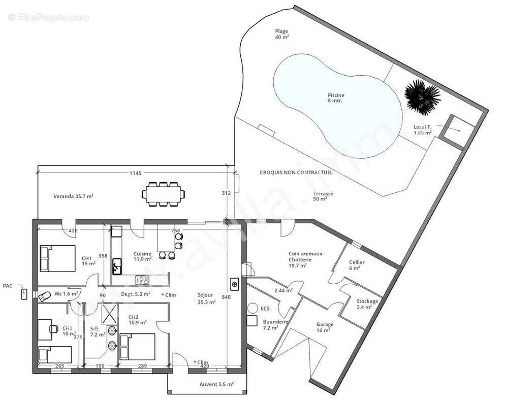
Rez-de-chaussée :
L'entrée par le porche couvert (5.5 m²) mène directement au salon (35.3 m²) équipé de la climatisation, d'un poêle à granulés et d'une baie vitrée coulissante en aluminium avec volet roulant manuel ouvrant sur la véranda. La cuisine ouverte (11.9 m²) avec bar est équipée de tous les appareils modernes, dont un lave-vaisselle, un four, un micro-ondes et un combiné réfrigérateur-congélateur indépendant. Attenant au salon, un espace de vie complémentaire (58 m²) actuellement divisé en plusieurs volumes, dont un garage (16 m²) et une buanderie (7.2 m²) avec branchement pour lave-linge, chauffe-eau (200 Ltr) et système d'aspiration centralisée. La première chambre (10.9 m²) est directement accessible depuis le salon. Le dégagement (5.3 m²) climatisé dessert les deux autres chambres (15 m², 10 m²), le WC (1.6 m²) et la salle de bain (7.2 m²) avec grande douche et double vasque.

Extérieur :
Les terrasses et la véranda (36 m²) offrent une magnifique vue dégagée avec la Serre d'Oupia à l'horizon. La piscine en forme de haricot (8 m, profondeur 150 cm) avec un revêtement en PVC armé (2025), est entourée de terrasses bien exposées (90 m²) et sécurisée par une clôture avec portillon verrouillable. Il y a également un local technique (2 m²) pour la pompe et le système de filtration à sable. Le terrain est entièrement clôturé et divisé en plusieurs parties. Entre le portail d'entrée et le garage, un parking privé permet de stationner deux voitures.

Divers :
La maison bénéficie d'une isolation optimale avec carrelage ou parquet stratifié. Fenêtres PVC double vitrage (16 mm), volets bois traditionnels. Gouttières en aluminium, tout-à-l'égout, internet par fibre optique et antenne satellite. VMC et système d'aspiration centralisée pour plus de confort.

Environnement :
Tourouzelle est un village charmant de près de 500 habitants situé dans l'Aude (Occitanie), entre les vignobles du Minervois et des Corbières. Les paysages vallonnés offrent un cadre paisible. On y trouve un bar-restaurant avec dépôt de pain, un court de tennis, une poste et une école primaire. À Homps (3 km) : lac pour baignade/sports nautiques, supermarché, Canal du Midi et nombreux restaurants. Olonzac (5 km) dispose d'un marché hebdomadaire réputé. À Lézignan-Corbières (10 km) : supermarchés, collèges/lycées, hôpital, gare et autoroute A61.

Charges :
Taxes Foncières : 1861 € par an

Honoraires charge vendeur.

« Les informations sur les risques auxquels ce bien est exposé sont disponibles sur le site Géorisques : www.georisques.gouv.fr »

AV TRANSACTION
Théodorus HARBERS
[Coordonnées masquées]
Votre agent commercial et conseiller(e) spécialiste en immobilier
RSAC N° 507 815 215 (EI)
Ville du greffe : Narbonne

Plus d'informations sur notre site av-transaction immo - Référence: 7501821427
Le réseau AV Transaction recrute des agents commerciaux dans toute la France. Percevez 100% de vos commissions. avtransaction-recrutement fr.

Voir plus

Référence: 7501821427
Honoraires à la charge du vendeur.
Barème des honoraires
DPE
A
B
C
D
E
F
G
GES
A
B
C
D
E
F
G
Maison à TOUROUZELLE
Maison à TOUROUZELLE
Maison à TOUROUZELLE
Maison à TOUROUZELLE
Maison à TOUROUZELLE
Maison à TOUROUZELLE
Maison à TOUROUZELLE
Maison à TOUROUZELLE
Maison à TOUROUZELLE
Maison à TOUROUZELLE
Maison à TOUROUZELLE
Maison à TOUROUZELLE
Maison à TOUROUZELLE
Maison à TOUROUZELLE
Maison à TOUROUZELLE
Maison à TOUROUZELLE
Maison à TOUROUZELLE
Maison à TOUROUZELLE
Géorisques

Les informations sur les risques auxquels ce bien est exposé sont disponibles sur le site Géorisques : www.georisques.gouv.fr

Ce site est protégé par hCaptcha Politique de confidentialité et Conditions d’utilisation s’appliquent.