Bénéficiez des services de nos partenaires locaux soigneusement sélectionnés
pour vous accompagner dans votre parcours d'achat immobilier

Vente Appartement Compiegne(60200) 220 000ᅵ

— Compiegne 60200 —
220 000 €
59 m²
3 pièces

Nos partenaires locaux
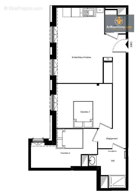
Appartement compiègne compiègne, a quelques minutes du centre ville et de la gare, situé dans une résidence sécurisée avec ascenseur. cet appartement vous offre une entrée sur le séjour ainsi qu'une cuisine à aménager ouverte, un dégagement, deux chambres, une salle d'eau et un wc. il dispose également deux places de parking privatives en sous-sol et d'un local à vélos. la gare de compiègne permettant de rejoindre la gare du nord (paris) en 40 minutes, et le centre-ville sont accessibles en quelques minutes. le quartier dispose de nombreux commerces et services, et d'établissements scolaires aux alentours.
Voir plus

Référence: 86896205
DPE
A
B
C
D
E
F
G
GES
A
B
C
D
E
F
G
Appartement à COMPIEGNE
Appartement à COMPIEGNE
Appartement à COMPIEGNE
Appartement à COMPIEGNE
Appartement à COMPIEGNE
Appartement à COMPIEGNE
Appartement à COMPIEGNE
Géorisques

Les informations sur les risques auxquels ce bien est exposé sont disponibles sur le site Géorisques : www.georisques.gouv.fr

Ce site est protégé par hCaptcha Politique de confidentialité et Conditions d’utilisation s’appliquent.

En poursuivant votre navigation sans modifier vos paramètres, vous acceptez l'utilisation de cookies susceptibles de réaliser des statistiques de visite. Cliquez ici pour plus d'informations