Bénéficiez des services de nos partenaires locaux soigneusement sélectionnés
pour vous accompagner dans votre parcours d'achat immobilier

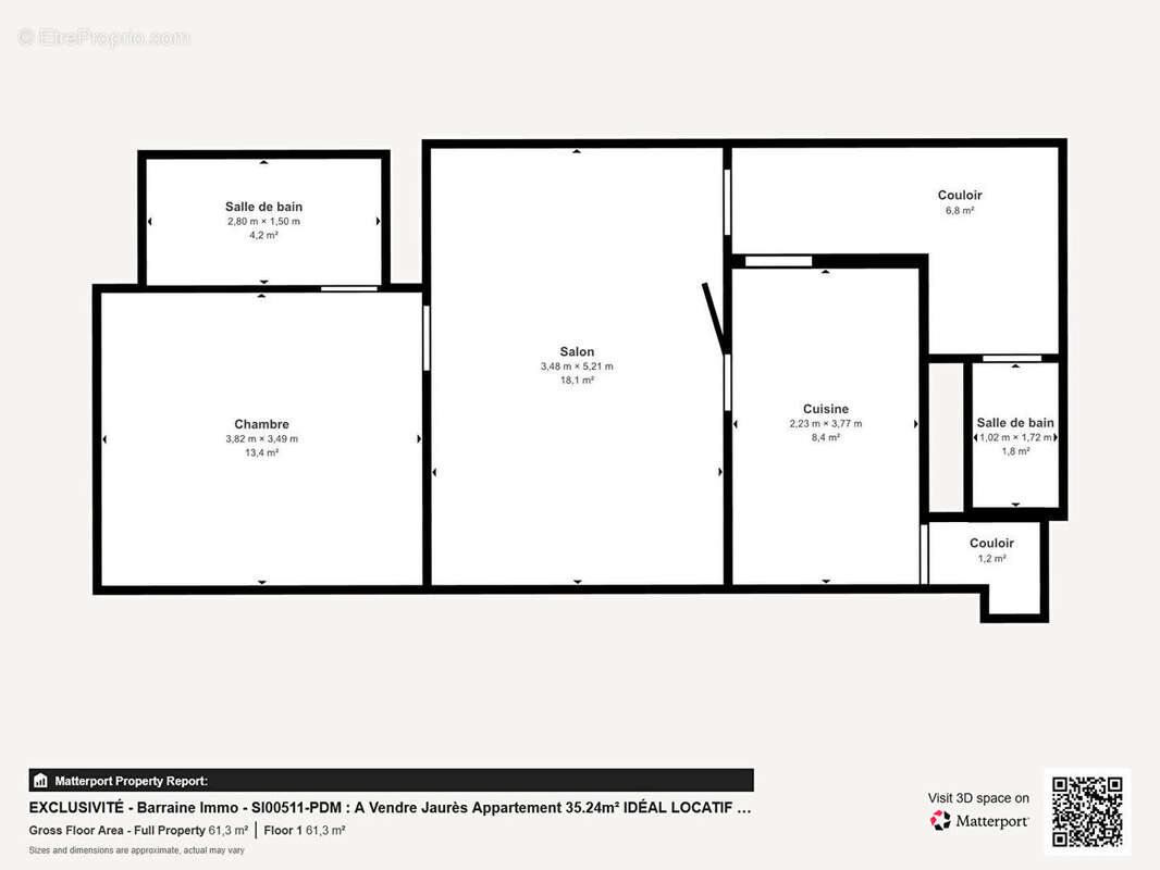
Exclusivité brest centre-ville appartement t2 53,24 m² habitables idéal locatif ou premier achat

— Brest 29200 —
128 400 €
53 m²
2 pièces
ascenseur

Nos partenaires locaux
EXCLUSIVITÉ- BREST - CENTRE-VILLE. Réf : SI00511-PDM Venez découvrir ce charmant appartement T2, situé au 1er étage d'un immeuble de 5 étages. D'une surface de 53,24 m², ce bien en bon état général est parfaitement adapté pour un premier achat ou un investissement locatif. Il se compose d'une pièce de vie lumineuse de 18,80 m² bénéficiant d'un parquet massif, une cuisine aménagée et équipée avec loggia attenante, ainsi que d'une chambre confortable de 13,24 m² avec salle d'eau. WC indépendants et rangements. Côté confort, le logement dispose de menuiseries en PVC double vitrage, d'un chauffage individuel électrique et d'une production d'eau chaude par ballon électrique. Son emplacement constitue un véritable atout : tramway et bus à 1 minute à pied, écoles à proximité immédiate, nombreux commerces, services et commodités accessibles à pied. Concernant la performance énergétique, le logement est classé DPE : C. Le montant estimé des dépenses annuelles d'énergie pour un usage standard est compris entre 500 euros et 690 euros par an, selon les prix moyens des énergies indexés au 1er janvier 2021 (abonnement compris) Ce bien vous est proposé par Barraine IMMO - Brest Siam. Une opportunité idéale pour vivre ou investir en centre-ville ! (7.00 % honoraires TTC à la charge de l'acquéreur.) Copropriété de 10 lots - dont 6 lots habitation. Charges annuelles : 720 euros.
Voir plus

Référence: SI00511-PDM
Bien en copropriété. Nombre de lots : 10. Charges de copropriété : 720 €.
Honoraires d'agence de 7% à la charge de l'acquéreur
Barème des honoraires
DPE
A
B
C
D
E
F
G
GES
A
B
C
D
E
F
G
Appartement à BREST
Appartement à BREST
Appartement à BREST
Appartement à BREST
Appartement à BREST
Appartement à BREST
Appartement à BREST
Appartement à BREST
Appartement à BREST
Appartement à BREST
Appartement à BREST
Appartement à BREST
Appartement à BREST
Appartement à BREST
Appartement à BREST
Géorisques

Les informations sur les risques auxquels ce bien est exposé sont disponibles sur le site Géorisques : www.georisques.gouv.fr

Ce site est protégé par hCaptcha Politique de confidentialité et Conditions d’utilisation s’appliquent.

En poursuivant votre navigation sans modifier vos paramètres, vous acceptez l'utilisation de cookies susceptibles de réaliser des statistiques de visite. Cliquez ici pour plus d'informations