Bénéficiez des services de nos partenaires locaux soigneusement sélectionnés
pour vous accompagner dans votre parcours d'achat immobilier

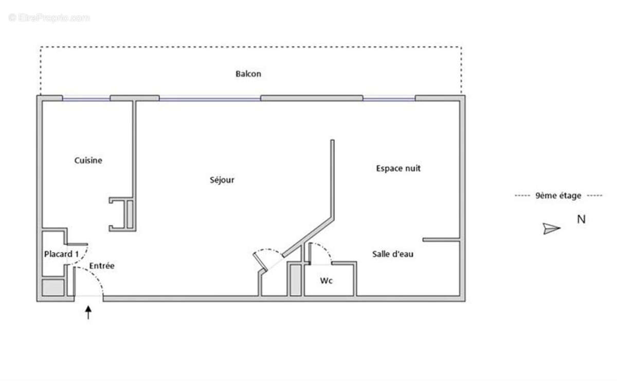
Appartement Paris 2 pièce(s) 45 m2 Vue Exceptionnelle

— Paris-20e 75020 —
525 000 €
45 m²
2 pièces
parkingascenseur

Nos partenaires locaux
Vue Panoramique Léon immobilier vous propose en exclusivité, Rue du télégraphe, Situé au dernier étage d'un immeuble bien entretenu, cet appartement offre un cadre de vie exceptionnel au coeur du 20e arrondissement. En excellent état, il séduit immédiatement par sa luminosité et sa vue dégagée, avec un panorama rare incluant la Tour Eiffel. Idéalement localisé rue du Télégraphe, au pied de la ligne 11, il bénéficie d'une accessibilité optimale tout en profitant d'un environnement vivant et recherché. L'appartement se compose d'un espace de vie agréable, parfaitement agencé, avec des prestations de qualité et aucun travaux à prévoir, une cuisine séparé, une chambre avec sa salle d'eau et wc séparé Le dernier étage garantit calme, intimité et ensoleillement tout au long de la journée, faisant de ce bien une opportunité rare sur le secteur. Une cave et un parking complète ce bien. Un bien coup de coeur, idéal pour une résidence principale ou un investissement de qualité. (5.00 % honoraires TTC à la charge de l'acquéreur.) Copropriété de 36 lots. Charges annuelles : 3240 euros.
Voir plus

Référence: 141
Bien en copropriété. Nombre de lots : 36. Charges de copropriété : 3240 €.
Honoraires d'agence de 5% à la charge de l'acquéreur
DPE
A
B
C
D
E
F
G
GES
A
B
C
D
E
F
G
Appartement à PARIS-20E
Appartement à PARIS-20E
Appartement à PARIS-20E
Appartement à PARIS-20E
Appartement à PARIS-20E
Appartement à PARIS-20E
Appartement à PARIS-20E
Appartement à PARIS-20E
Appartement à PARIS-20E
Géorisques

Les informations sur les risques auxquels ce bien est exposé sont disponibles sur le site Géorisques : www.georisques.gouv.fr

Ce site est protégé par hCaptcha Politique de confidentialité et Conditions d’utilisation s’appliquent.

En poursuivant votre navigation sans modifier vos paramètres, vous acceptez l'utilisation de cookies susceptibles de réaliser des statistiques de visite. Cliquez ici pour plus d'informations