Bénéficiez des services de nos partenaires locaux soigneusement sélectionnés
pour vous accompagner dans votre parcours d'achat immobilier

Appartement Franconville - Dernier étage - Centre-Ville - Lumineux et bien agencé

— Franconville 95130 —
129 500 €
32 m²
1 pièce
ascenseur

Nos partenaires locaux
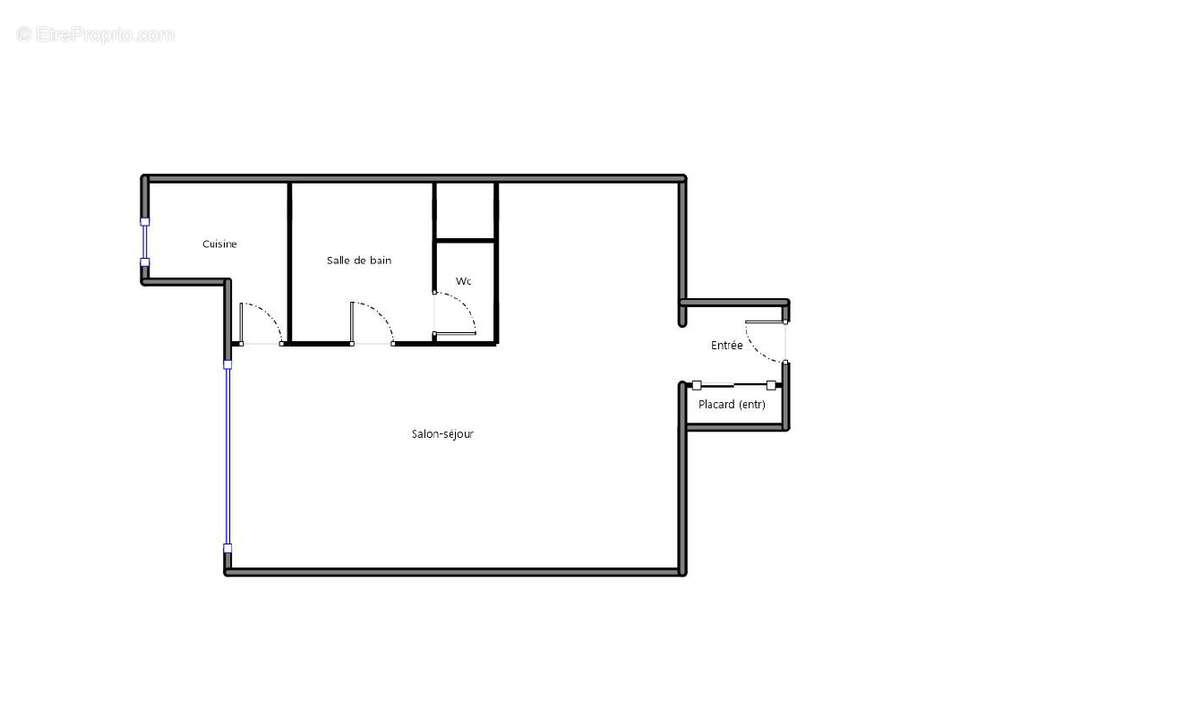
Découvrez ce charmant studio lumineux de 32 m², situé au 8e et dernier étage d'une résidence avec ascenseur, en plein coeur du centre-ville de Franconville. Idéalement placé, vous profiterez d'un cadre de vie pratique avec tous les commerces à deux pas. Ce bien se compose d'une entrée avec placard, d'un séjour agréable avec coin nuit, d'une cuisine indépendante, ainsi que d'une salle de bains avec coin WC. Sa position en étage élevé vous offre une belle luminosité tout au long de la journée ainsi qu'une vue dégagée, sans aucun vis-à-vis. Fonctionnel et bien agencé, ce studio représente une excellente opportunité pour un premier achat. N'hésitez plus et contactez-nous pour une visite ! Classe énergie : E. Honoraires d'agence à la charge vendeur. Achat, vente, location, gestion : contactez votre agence NESTENN FRANCONVILLE au [Coordonnées masquées].
Voir plus

Référence: 26-8967
Bien en copropriété. Nombre de lots : 155. Charges de copropriété : 1384 €.
Honoraires à la charge du vendeur.
Barème des honoraires
DPE
A
B
C
D
E
F
G
GES
A
B
C
D
E
F
G
Appartement à FRANCONVILLE
Appartement à FRANCONVILLE
Appartement à FRANCONVILLE
Appartement à FRANCONVILLE
Appartement à FRANCONVILLE
Appartement à FRANCONVILLE
Appartement à FRANCONVILLE
Appartement à FRANCONVILLE
Appartement à FRANCONVILLE
Appartement à FRANCONVILLE
Appartement à FRANCONVILLE
Appartement à FRANCONVILLE
Géorisques

Les informations sur les risques auxquels ce bien est exposé sont disponibles sur le site Géorisques : www.georisques.gouv.fr

Ce site est protégé par hCaptcha Politique de confidentialité et Conditions d’utilisation s’appliquent.

En poursuivant votre navigation sans modifier vos paramètres, vous acceptez l'utilisation de cookies susceptibles de réaliser des statistiques de visite. Cliquez ici pour plus d'informations