Bénéficiez des services de nos partenaires locaux soigneusement sélectionnés
pour vous accompagner dans votre parcours d'achat immobilier

Appartement T4 d'Exception au Dernier Étage : Vivez La Londe-les-Maures 83250

— La Londe-Les-Maures 83250 —
509 000 €
82 m²
4 pièces
balcon/terrasse

Nos partenaires locaux
La Londe-les-Maures, Le Var, La Côte d'Azur... Entre le bleu de la Méditerranée et le vert du massif des Maures, idéalement situé entre Hyères et Bormes-les-Mimosas. C'est ici, au sein de la résidence conviviale Villa Florine, que nous vous proposons de devenir propriétaire d'un appartement rare qui combine confort urbain et esprit "vacances toute l'année"

Un Emplacement Stratégique : Tout à Pied et à Vélo
Située rue de Verdun, votre future adresse vous place à deux pas du centre village.
Quotidien facilité : Écoles, commerces, services médicaux ...
Mobilité douce : Accès direct à la Promenade des Annamites. Cette voie ombragée vous mène en toute sécurité, à pied ou à vélo, jusqu'aux plages de l'Argentière et de Tamaris.
Loisirs en famille : En chemin, profitez du parc de la Brûlade : 6 hectares de détente avec aire de pique-nique, jeux pour enfants et parcours de santé.

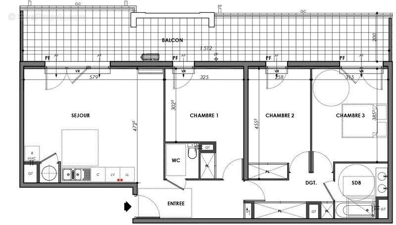
Focus Appartement : Le Prestige du R+3 Découvrez ce T4 traversant de 82,32 m² habitables , situé au 3ème et dernier étage. Un bien pensé pour la lumière et les volumes :Espace de vie : Un vaste séjour/cuisine de 26,59 m² baigné de lumière grâce à ses grandes baies vitrées.
Côté nuit : 3 belles chambres spacieuses :Chambre 1 : 12,29 m² Chambre 2 : 11,45 m² Chambre 3 : 12,50 m² Le "Plus" Extérieur : Un balcon exceptionnel de 31,28 m². Véritable pièce supplémentaire.
Aménagement "Toute Hauteur" : Optimisez votre surface utile avec des rangements du sol au plafond.
Confort & Sécurité : Stationnements en sous-sol, local à vélo et résidence sécurisée ouverte sur un cœur d'îlot fleuri.
Qualité de vie : Un logement certifié avec des prestations modernes (climatisation monosplit prévue , salle de bain équipée)
Découvrez cet appartement T4 de 82m² au dernier étage à La Londe-les-Maures. Grande terrasse de 31m² avec 2 parkings en sous-sol. Proche centre et plages via la promenade des Annamites.
Contactez moi !
Les informations sur les risques auxquels ce bien est exposé sont disponibles sur le site Géorisques : www. georisques. gouv. fr.

Contactez Valérie CODRETTO Entrepreneur Individuel, Agent commercial OptimHome (RSAC N°503 106 916 Greffe de TOULON) [Coordonnées masquées] (réf. 210937 )
Voir plus

Référence: 830033407218
Bien en copropriété.
Honoraires à la charge du vendeur.
Appartement à LA LONDE-LES-MAURES
Appartement à LA LONDE-LES-MAURES
Appartement à LA LONDE-LES-MAURES
Appartement à LA LONDE-LES-MAURES
Appartement à LA LONDE-LES-MAURES
Appartement à LA LONDE-LES-MAURES
Appartement à LA LONDE-LES-MAURES
Appartement à LA LONDE-LES-MAURES
Appartement à LA LONDE-LES-MAURES
Appartement à LA LONDE-LES-MAURES
Appartement à LA LONDE-LES-MAURES
Appartement à LA LONDE-LES-MAURES
Géorisques

Les informations sur les risques auxquels ce bien est exposé sont disponibles sur le site Géorisques : www.georisques.gouv.fr

Ce site est protégé par hCaptcha Politique de confidentialité et Conditions d’utilisation s’appliquent.

En poursuivant votre navigation sans modifier vos paramètres, vous acceptez l'utilisation de cookies susceptibles de réaliser des statistiques de visite. Cliquez ici pour plus d'informations