Bénéficiez des services de nos partenaires locaux soigneusement sélectionnés
pour vous accompagner dans votre parcours d'achat immobilier

Maison à vendre à Noisy Le Roi

— Noisy-Le-Roi 78590 —
275 000 €
50 m² / 90 m²
3 pièces
parkingjardin

Nos partenaires locaux
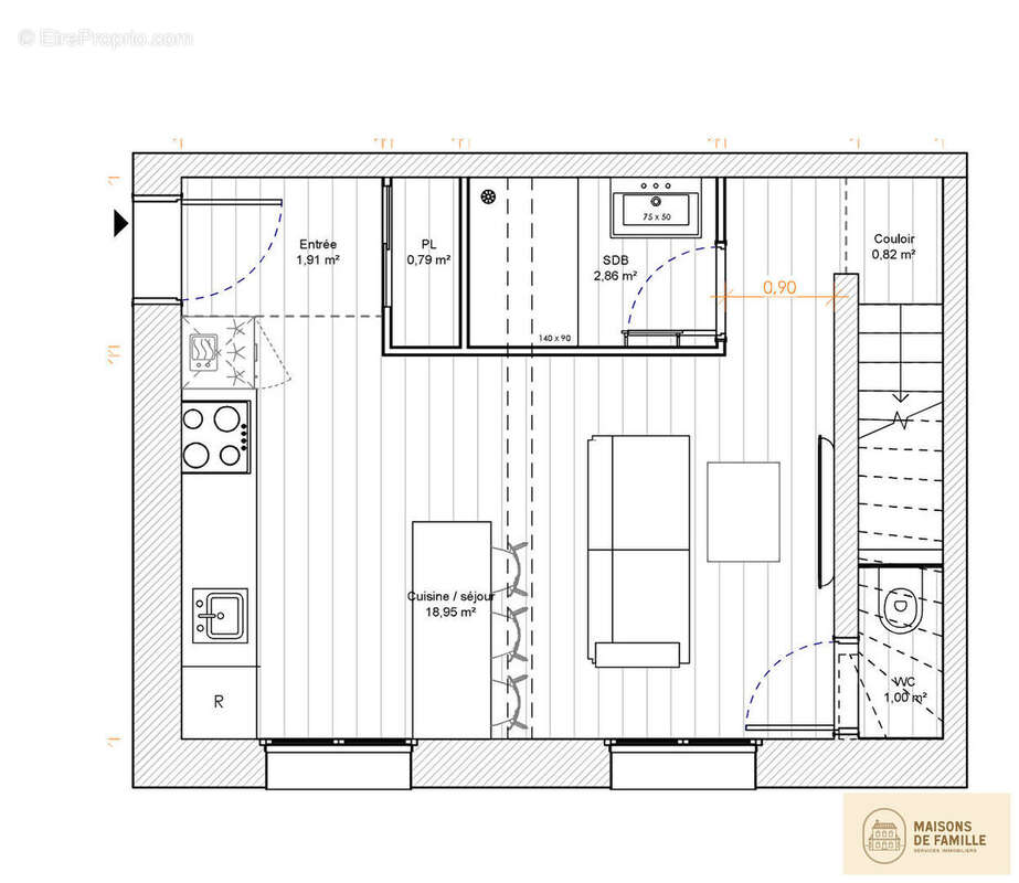
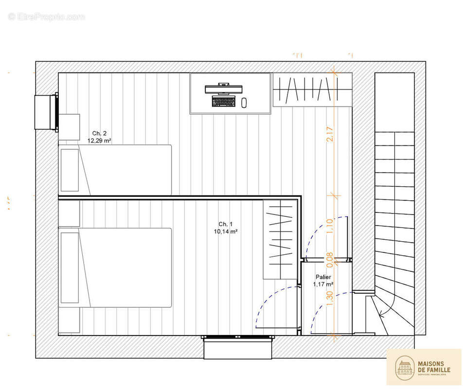
EXCLUSIVITE - Maisons de Famille Immobilier, l'expert de la vente de Maisons dans l'ouest parisien NOISY-LE-ROI - EN PLEIN COEUR DU VIEUX VILLAGE - Une maison accessible au prix d'un appartement. A deux pas des commerces et de la gare, datant de 1800, de 3 pièces en plein coeur du centre ville, à rénover, de 50m2 habitable avec possibilité de créer 2 chambres. Elle bénéficie d'un emplacement de parkings dans votre cour privative. Idéal pour les investisseurs ou les primo-accédants. La maison se compose au rez-de-chaussée: une entrée donnant directement sur la cuisine ouverte sur le un séjour, un wc séparé et une salle d'eau. Au 1er étage: une chambre avec possibilité de créer 2 chambres. Un emplacement de parking dans votre cour privative Chauffage individuel Gaz Double vitrage et chaudière gaz récente Proximité immédiate de tous les commerces, écoles et commodités. Accès rapide au TRAM13 (12 minutes à pied) pour rejoindre facilement Saint-Cyr-l'École (RER C, lignes N et U), Saint-Nom-la-Bretèche (ligne L) et Saint-Germain-en-Laye (RER A). Les autoroutes A12 et A13 sont faciles d'accès pour vos déplacements vers Paris et ses environs. Contact direct 7/7 Edouard DANVY [Coordonnées masquées] (5.77 % honoraires TTC à la charge de l'acquéreur.)
Voir plus

Référence: ED-1642-1-cpy
Honoraires d'agence de 5.77% à la charge de l'acquéreur
DPE
A
B
C
D
E
F
G
GES
A
B
C
D
E
F
G
Maison à NOISY-LE-ROI
Maison à NOISY-LE-ROI
Maison à NOISY-LE-ROI
Maison à NOISY-LE-ROI
Maison à NOISY-LE-ROI
Maison à NOISY-LE-ROI
Maison à NOISY-LE-ROI
Maison à NOISY-LE-ROI
Maison à NOISY-LE-ROI
Géorisques

Les informations sur les risques auxquels ce bien est exposé sont disponibles sur le site Géorisques : www.georisques.gouv.fr

Ce site est protégé par hCaptcha Politique de confidentialité et Conditions d’utilisation s’appliquent.

En poursuivant votre navigation sans modifier vos paramètres, vous acceptez l'utilisation de cookies susceptibles de réaliser des statistiques de visite. Cliquez ici pour plus d'informations