Bénéficiez des services de nos partenaires locaux soigneusement sélectionnés
pour vous accompagner dans votre parcours d'achat immobilier

Appartement T3 Saint Grégoire

— Saint-Gregoire 35760 —
164 501 €
60 m²
3 pièces
ascenseur

Nos partenaires locaux
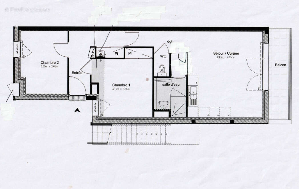
NOUVEAU et SEULEMENT CHEZ KEREDES, à Saint-Grégoire... A deux pas du Canal et à 12 minutes à pieds du centre-ville, dans une petite copropriété édifiée en 2022. Charmant T3 de 60,15 m² au 1er étage sur 2 composé d'une entrée, un salon orienté plein Sud avec balcon de plus de 6m², une cuisine aménagée et équipée ouverte, deux chambres dont une avec placard, une salle de douche avec wc, un dégagement avec placard. En extérieur sous carport, une place de parking privatif complète l'ensemble. Pour résidence principale exclusivement. Pas de procédure en cours. Prix 164501 euros dont 4791 euros d'honoraires agence à la charge des acquéreurs. (3.00 % honoraires TTC à la charge de l'acquéreur.) Copropriété de 51 lots.
Voir plus

Référence: 1587
Bien en copropriété. Nombre de lots : 51.
Honoraires d'agence de 3% à la charge de l'acquéreur
Barème des honoraires
DPE
A
B
C
D
E
F
G
GES
A
B
C
D
E
F
G
Appartement à SAINT-GREGOIRE
Appartement à SAINT-GREGOIRE
Appartement à SAINT-GREGOIRE
Appartement à SAINT-GREGOIRE
Appartement à SAINT-GREGOIRE
Appartement à SAINT-GREGOIRE
Appartement à SAINT-GREGOIRE
Appartement à SAINT-GREGOIRE
Appartement à SAINT-GREGOIRE
Appartement à SAINT-GREGOIRE
Géorisques

Les informations sur les risques auxquels ce bien est exposé sont disponibles sur le site Géorisques : www.georisques.gouv.fr

Ce site est protégé par hCaptcha Politique de confidentialité et Conditions d’utilisation s’appliquent.

En poursuivant votre navigation sans modifier vos paramètres, vous acceptez l'utilisation de cookies susceptibles de réaliser des statistiques de visite. Cliquez ici pour plus d'informations